建筑占地面積:17.5m*20.3m;
建筑層數:三層;
建筑高度:14.4米(含屋頂)尖屋頂;
設計功能:
首層:雙車庫、門廊、花池、玄關、儲物間、酒庫、餐廳、廚房、前廳、3間衛生間、更衣間、客房、客廳、陽臺、工人房;
二層:2個陽臺、3間臥室、門廊上空、玄關上空、3間更衣間、3間衛生間、書房/茶室、起居室、梯井中空、客廳上空;
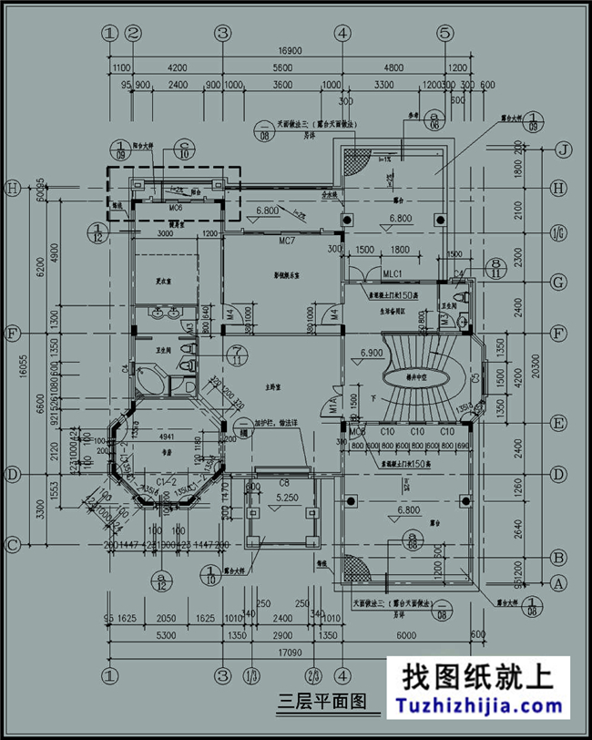
三層:2個露臺、梯井中空、書房、主臥室、2間衛生間、生活備用區、影視娛樂室、更衣室、健身室、陽臺。
圖紙目錄:
首層平面圖、二層平面圖、三層平面圖、屋頂平面圖、塔樓11.2米標高平面圖、1-1剖面圖、南立面圖、北立面圖、東立面圖、西立面圖、樓梯首層平面圖、樓梯二層平面圖、樓梯三層平面圖、樓梯起步網格平面圖、樓梯1-1剖面圖、陽臺平面、正陽臺立面、水泥花大樣圖、水泥花側立面圖、陽臺立面、墻身大樣、門樓平面、門樓正立面、陽臺大樣、入口門樓剖面大樣、衛生間沉箱剖面大樣、陽臺玻璃攔河外立面、立柱側立面詳圖、不銹鋼槽型固定片立面、不銹鋼檐詳圖、坡屋頂與墻體交接大樣、鋼管扶手入墻做法、花架1平面圖、花架2平面圖、花架1立面圖、花架2立面圖、2-2剖面圖、門窗表、門窗大樣、門窗套大樣、建筑圖紙目錄、建筑設計說明、2張效果圖。
本工程為三層別墅,總高14.400m,其中一層3.600m,二層3.300m,三層3.300m,屋頂為坡屋面,屋脊高度分別為:1.626m,1.395m,12.918m,12.180m,14.400m,檐口高度10.200M,結構形式:框架結構,填充墻:外墻 、梯間墻、車庫墻采用Mu10蒸壓加氣混凝土砌塊(M5混合砂漿砌筑),內墻采用Mu5輕骨料混凝土砌塊(Mb5專用砂漿砌筑),本工程(1)工程等級:二級;(2)耐火等級:二級;(3)坡屋面防水等


































































































