開間:10.84米 進深:11.24米
占地面積:110平米
建筑面積:437平米
造價預算:50萬
設計功能:
半地下室:車庫、廚房、餐廳、休閑廳、活動室、衛(wèi)生間;
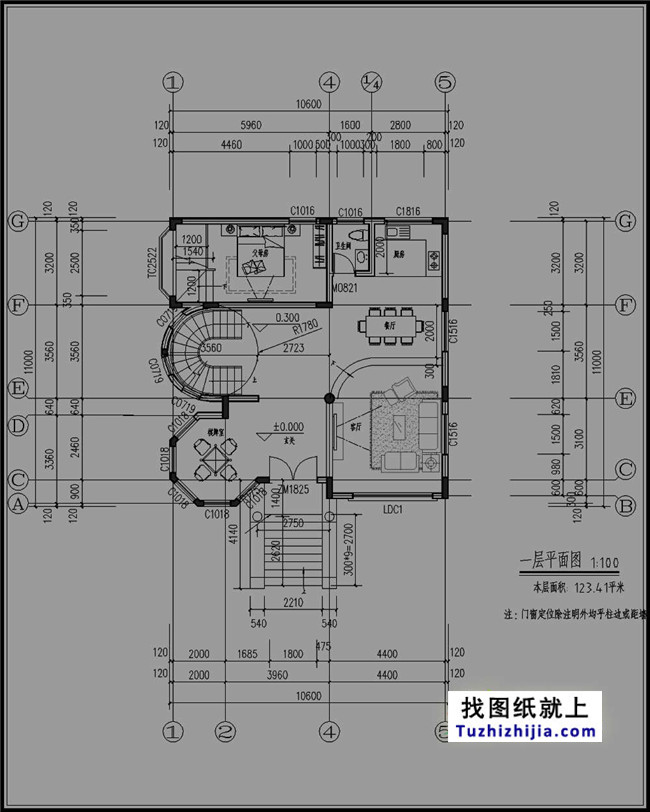
一層:客廳、玄關(guān)、棋牌室、父母房、廚房、餐廳、衛(wèi)生間;
二層:臥室x2、衛(wèi)生間x2、客廳上空、起居室、衣帽間、陽臺x2、露臺。
三層:臥室x2、佛堂、衛(wèi)生間x2、衣帽間、陽臺、露臺。
圖紙詳情:
建施:建筑設計總說明、門窗表、半地下室平面圖、一層平面圖、二層平面圖、三 層平面圖、東立面圖、南立面圖、西立面圖、北立面圖、剖面圖、樓梯平面 圖、剖面圖、門窗大樣圖、天溝大樣圖;
結(jié)施:結(jié)構(gòu)設計總說明、基礎(chǔ)平面布置圖、基礎(chǔ)大樣圖、地下室及以下柱定位及配 筋圖、一層拄定位及配筋圖、二層拄定位及配筋圖、三層拄定位及配筋圖、 屋面拄定位及配筋圖、基礎(chǔ)梁配筋圖、一層梁配筋圖、一層板配筋圖、二層 梁配筋圖、二層板配筋圖、三層梁配筋圖、三層板配筋圖、屋面梁配筋圖、 屋面板配筋圖、樓梯配筋圖;
水施:給排水設計說明、 半地下室給排水平面圖' 一層給排水平面圖、二層給排水 平面圖、屋頂給排水平面圖、衛(wèi)生間大樣圖、給排水系統(tǒng)圖;
電施:電氣設計說明及圖例、半地下室照明平面圖、一層照明平面圖、二層照明平 面圖、三層照明平面圖、半地下室插座平面圖、一層插座平面圖、二層插座 平面圖、三層插座平面圖、半地下室接地及弱電平面圖、一層接地及弱電平 面圖、二層弱電平面圖、三層弱電平面圖、屋頂防雷裝置平面圖、配電系統(tǒng) 圖、衛(wèi)生間局部等電位聯(lián)接示怠詳圖、弱電系統(tǒng)圖。






































































































