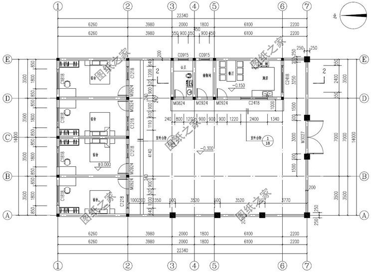
占地面積:22.34m*14m,130.48平方米左右;
建筑層高:一層;
建筑高度:5.938米(含屋頂);
設計功能:
一層戶型:儲藏間、臥室x4、衛生間;





占地面積:22.34m*14m,130.48平方米左右;
建筑層高:一層;
建筑高度:5.938米(含屋頂);
設計功能:
一層戶型:儲藏間、臥室x4、衛生間;












一、圖紙均為高清藍圖,包含全套設計圖,交給施工隊可直接建造;
二、圖紙每個數據都是環環相扣的,修改工作量大,還容易出錯,不支持修改服務;
三、如果您對圖紙的尺寸、戶型不滿意,我們可以按您的要求進行定制;
四、圖紙通俗易懂,只需按圖施工即可1比1還原效果圖,我們還提供在線指導服務。
15×12米一層農村寶藏戶型,適合養老房,看完鄰居直接要圖紙!
造價:15萬
一層新中式三合院設計,建好城里大平層都不香了
造價:25萬
一層帶閣樓農村別墅設計圖,多得一層可變空間,太值了!
造價:14萬
七字型設計新中式一層別墅設計圖,類合院風格
造價:22萬
農村一層中式三合院太香了!白墻黛瓦,有院有景超宜居
造價:29萬
回老家蓋房就選這款新中式一層設計,16乘8米大小正合適
造價:11萬
給爸媽建養老房?100 平人字坡一層房太合適!簡約低調還實用
造價:8萬
開間14米!農村養老一層別墅神戶型,爸媽住得安心,施工隊狂贊太
造價:14萬
一層三間別墅設計圖,經濟實用 + 好看不貴,養老自住都適配
造價:10萬
爆火農村養老房設計:16 米面寬一層戶型,自住養老全拿捏
造價:15萬
15米面寬田園風一層別墅!戶型新穎太吸睛,看過都想建
造價:13萬
農村自建房就選它!一層新中式設計,日常居住需求全搞定
造價:12萬
一層農村自建房設計圖,造型美觀大氣,占地150平
造價:15萬
農村一層四開間養老別墅設計圖,造型美布局佳
造價:14萬
新農村一層小別墅設計方案,四臥二廳耐看實用,方便打掃更便捷
造價:12萬
最實用一層小別墅設計方案,造價不高顏值高,家家都喜歡!
造價:11萬
150平米一層7字型別墅設計方案,功能齊全舒適簡約,設計感十足
造價:12萬
超實用的農村一層別墅設計圖,經濟實惠養老自住都不錯,
造價:10萬
帶柴火房農村一層自建房設計圖,戶型布局接地氣
造價:10萬
18米寬一層中式小院設計圖,三合院戶型布局寬敞大氣
造價:19萬
最實用中式一層三合院別墅設計圖,簡約精致布局實用
造價:13萬
面寬17米農村一層平房設計圖,簡約空間敞亮
造價:14萬
簡簡單單一層農村自建別墅方案,布局緊湊又不擁擠
造價:11萬
四開間一層自建房設計圖,四臥二廳+棋牌室+書房
造價:14萬
精致簡歐一層別墅設計圖,經典大氣百看不厭
造價:11萬
最漂亮五間一層自建別墅設計圖,布局實用顏值高!
造價:15萬
面寬20米農村自建房設計圖一層設計圖,五開間養老戶型
造價:19萬
帶土灶房一層四開間別墅設計方案,溫馨舒適的雅舍
造價:13萬
15萬左右一層農村自建房設計圖,一家住剛剛好
造價:10萬
人字坡房屋一層別墅設計圖,簡約低調超實用,、
造價:8萬
造價15萬經濟美觀一層農村別墅設計圖,占地150平米
造價:10-15萬
一層半小別墅設計圖帶效果圖,農村自建帶閣樓一層半方案
造價:18萬左右
時尚一層別墅圖,一層這樣蓋房最漂亮
造價:10萬左右
農村一層四間平房設計圖方案,含外觀圖片,預算10萬
造價:10萬左右
農村10萬元一層小別墅平房設計圖大全,含效果圖
造價:10萬左右
一層鄉村自建別墅設計方案推薦,含外觀圖片
造價:18萬
最漂亮的一層平房圖片,全套設計圖+高清效果圖
造價:10萬左右
農村現代新中式三合院設計圖及效果圖片,外觀好看極了
造價:35萬左右
140平一層平房別墅設計圖,兩客廳兩衛四臥室
造價:15萬以內
一層鄉村別墅設計戶型圖,占地100平左右,外觀很時尚
造價:10萬
農村一層半房屋設計圖,帶外觀效果圖,外觀時尚
造價:15萬以內
一層中式四合院別墅設計方案圖,含外觀效果圖
造價:20~23萬
農村10萬元一層小別墅設計圖紙,戶型實用又合理
造價:10萬
經濟型實用歐式一層小樓房別墅平房設計圖,11X10米
造價:15萬左右
農村三合院設計圖及效果圖,自建三合院圖紙
造價:34~42萬
鄉下建房一層戶型圖,一層住宅設計圖紙,誰說一層平房不能叫別
造價:15萬-20萬
農村蓋平房設計大全圖,鄉下建房一層戶型圖及效果圖
造價:15萬左右
一層半房屋別墅設計圖,帶閣樓圖、帶露臺,外觀新穎時尚
造價:20~24萬
新款現代一層小別墅設計圖,農村自建平房推薦戶型
造價:11萬
農村10萬自建一層平房設計圖,占地面積120平米
造價:10萬
20萬農村一層半小洋樓圖,自建別墅設計方案推薦
造價:20萬-25萬
簡單平房農村自建一層別墅設計圖,時尚大氣,造價經濟
造價:10萬
新農村一層平屋頂簡單自建房別墅設計圖紙,全套設計
造價:10萬
120平方米農村一層平房別墅設計圖紙,含外觀效果圖
造價:10萬
農村10萬元一層小別墅設計圖,農村一層自建房屋設計圖
造價:10萬
一層農村房子設計圖,含外觀效果圖,自建推薦戶型
造價:12萬左右
大面積農村一層房子設計圖,戶型實用、合理
造價:18萬左右
一層半復式帶閣樓別墅設計圖,含外觀圖片
造價:15萬以內
農村200平一層別墅房屋設計圖,外觀圖片時尚、漂亮
造價:15萬左右
農村一層房屋設計圖,自建一層房子圖紙推薦
造價:16萬左右
農村小別墅一層設計圖紙,全套施工圖兩款戶型可選
占地:多種戶型可選
大戶型美觀一層平房自建房設計圖,面寬19米左右
占地:245.1平方米
鄉村一層房屋設計圖,養老還是一層好,多臥室的設計
占地:195平方米
新農村一層小別墅設計方案,四臥二廳耐看實用,方便打掃更便捷
占地:153.55平方米
爆款農村一層別墅圖紙設計,看過的都說漂亮實用
占地:144.91平方米
農村一層養老別墅設計圖,14.8x17.9米,戶型對稱,實用布局
占地:193平方米
農村現代新中式三合院設計圖及效果圖片,外觀好看極了
占地:多戶型可選
一層農村自建房別墅設計方案,左右對稱布局好
占地:154平方米
新中式一層合院別墅圖,15米×15.8米,主體造價低至15萬
占地:183.08平方米
適合回鄉建的三合院平房設計圖,舒適又接地氣
占地:213.96平方米
農村一層四間平房設計圖方案,含外觀圖片,預算10萬
占地:190平方米
100平左右農村一層平房小洋樓建筑設計圖紙,14米×8米
占地:98平方米
一層中式三合院農村自建別墅圖,面寬18米帶堂屋設計
占地:165.72平方米
90平-100平小戶型一層三間平房農村別墅設計圖方案戶型
占地:多戶型可選
農村帶閣樓一層房屋設計施工圖,13X9米
占地:102平方米
開間14米!農村養老一層別墅神戶型,爸媽住得安心,施工隊狂贊太
占地:160.86平方米
農村自建房就選它!一層新中式設計,日常居住需求全搞定
占地:128.45平方米
新農村一層平屋頂簡單自建房別墅設計圖紙,全套設計
占地:130平方米
鄉村一層平房設計圖,面寬13米平面圖及造型圖
占地:170平方米
最新12x9米一層平房別墅設計圖,好看不貴居住舒適!
占地:108平方米
