
|
大方者,廣博自在,舒怡持穩,高品深德。 客之大方,因人之性。 和美滿者,自大方。 本項目為三層別墅,除去居住的各項功能,雍容大方的裝飾主義給空間以更多優美與幸福感。濃郁色彩搭配高品質地,家,成為主人向外展示自我內心的最好器物表達。
浪漫唯美的妝點,美式的大氣舒適、托斯卡納的異域陽光,家充滿歡樂與對美好未來的期許。
一餐一飯,家人們歡聚一處,廳堂即分割獨立又相互相通的功能設置,給生活更多便捷。
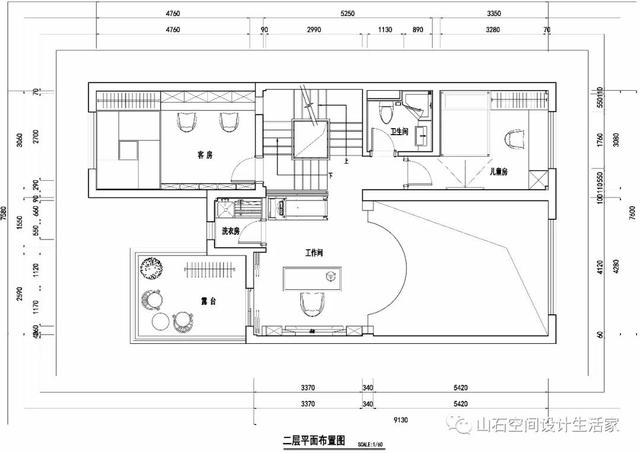
老人房
工作區 針對個人生活習慣需求,二樓的工作區是一家人更為私密卻又彼此能夠更好交流的公共休閑區域。
兒臥
客臥
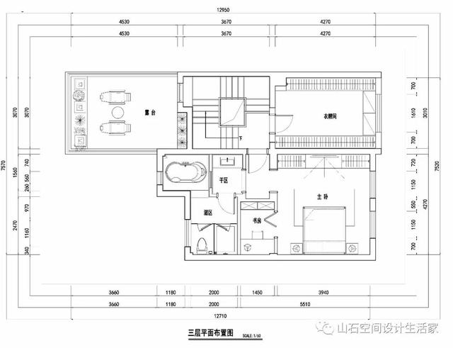
主臥及配套化妝間衣帽間
露臺 當我們的生活有足夠的空間,有更多富足的物質內容,如何提升生活的質量便成為關鍵。健康、良性、有序、和諧的共同成長,是幸福的基礎。 我們對空間的設計,不僅僅是一種裝飾,不僅僅是去詮釋所謂的“富麗堂皇”,更是對生活本質的挖掘與探尋,成就更好的空間,是為了成就更好的生活。 轉載請注明出自別墅設計網:http://m.bjcyqiyejia.com/ 千套別墅設計帶別墅圖片 |
倆兄弟蓋房子的雙拼設計圖,小宅基地設計方案
占地:151.91平方米
一層半房屋別墅設計圖,帶閣樓圖、帶露臺,外觀新穎時尚
占地:130平方米
中式三層新農村房子別墅設計圖,看了那么久,還是中式最有韻味
占地:97.2平方米
高端大氣三層雙拼自建房設計圖,外觀漂亮,240平左右
占地:240平方米
農村10萬元一層小別墅平房設計圖大全,含效果圖
占地:120平方米
135平方米新農村三層別墅設計圖紙,外觀效果圖很漂亮
占地:134平方米
農村三層樓房設計圖三層別墅圖片,占地面積135平米
占地:135平方米
農村建房兄弟雙拼兩層住宅設計圖,單戶150平米左右
占地:300平方米
110平方米新農村三層別墅設計圖,含外觀效果圖
占地:109平方米
造價30萬左右的三層樓房設計圖,占地120平米左右
占地:120平方米
3款挑空客廳的二層小樓房設計圖,款款漂亮
閱讀次數:48516次
立邦油漆哪個系列好?小編一一對比分析
閱讀次數:31501次
2024十大環保油漆,中國十大環保油漆排名榜
閱讀次數:11505次
手上的油漆怎么洗-快速洗掉油漆小竅門
閱讀次數:7981次
無味油漆到底對人有沒有害?真實曝光
閱讀次數:7922次
8款不同風格樓梯設計效果圖,我最喜歡第8款
閱讀次數:7024次
立邦油漆價格表,立邦油漆一般多少錢一桶?
閱讀次數:6809次
為大家分享一套兩層農村自建房裝修案例,15萬搞定裝修
閱讀次數:6111次
2024年紫荊花油漆價格一般是多少錢一桶?品牌怎么樣
閱讀次數:6012次
嘉寶莉油漆價格一般是多少錢一桶?
閱讀次數:5765次
