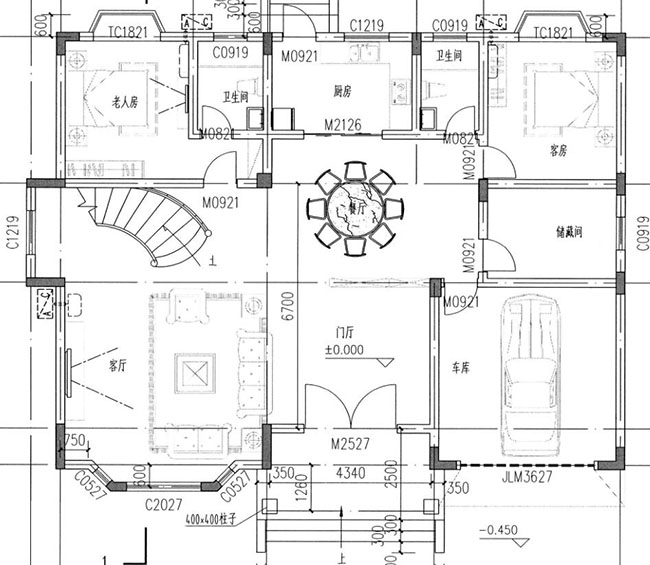
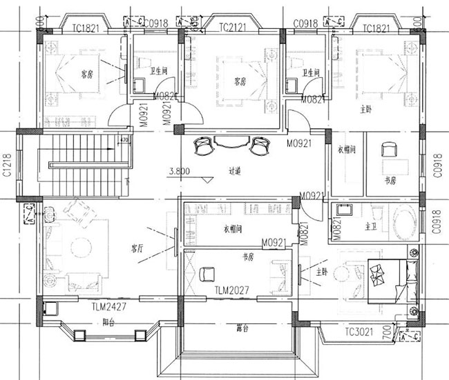
建筑層數:二層
占地尺寸:面寬15.8米x進深11.7米
占地面積:180平方
造價預算:43萬
造價預算:43萬
建筑總面積/總層高:360平米(不含入戶平臺、陽臺、露臺)/總高8.5米,屋檐口高6.6米
施工圖(建施圖、結施圖、給排水圖、電氣圖)+效果圖。
建施圖指(建筑說明、每層平面圖、各面立面施工圖、以及剖面圖、門窗、節點詳圖等)12張
結施圖指(結構說明、基礎圖、柱配筋、板配筋、梁配筋等與鋼筋結構有關的圖紙)10張
水施圖指(水路說明、給水系統、排水系統、給排水詳細布置等)7張
電施圖指(電路說明、電路系統、強弱電位置/線路布置、燈控照明、防雷系統等)9張
全套A3設計圖+效果圖,拿到即可施工。





【戶型都可左右鏡像】
如果沒找到您喜歡的風格,或尺寸和布局不符合實際建房需求,可以掃一掃左側二維碼加微信量身定制,設計到滿意為止。







圖紙說明
一、圖紙均為高清藍圖,包含全套設計圖,交給施工隊可直接建造;
二、圖紙每個數據都是環環相扣的,修改工作量大,還容易出錯,不支持修改服務;
三、如果您對圖紙的尺寸、戶型不滿意,我們可以按您的要求進行定制;
四、圖紙通俗易懂,只需按圖施工即可1比1還原效果圖,我們還提供在線指導服務。
公司介紹
圖紙之家是國內口碑最好的自建房設計公司,深耕建筑設計18年,擅長設計農村自建房/別墅/合院/臨街門臉/民宿等,提供從建筑主體、室內裝修、庭院景觀、造價預算全流程一站式服務,集合國內200余名專業設計師,均有6年以上設計經驗,我們既提供經過落地驗證的成品設計圖紙(覆蓋不同風格、不同面積10萬余款),還提供1對1專屬設計服務。
圖紙推薦
------分隔線----------------------------


















































































