
|
轉眼已經到了下半年,農村建房的潮流也要開始了,下半年要建房的朋友也開始在網上尋找自己的中意的戶型,下面漢晨君精選了8款各地業主為建房準備好的別墅戶型,喜歡的可以參考著蓋哦!
大理石外墻,整面落地窗裝飾,上面有陽臺露臺和煙囪裝飾,讓戶型更趨向完整。
別墅平面功能亮點: 小開間的三層戶型,廚房有土灶設計,一層有臥室方便老人 二三層一樣的布局,開放式的家庭廳和挑空的客廳相互映襯,更顯大氣。
非常有層次感的一個外觀設計,同樣有歐式風格的經典元素。
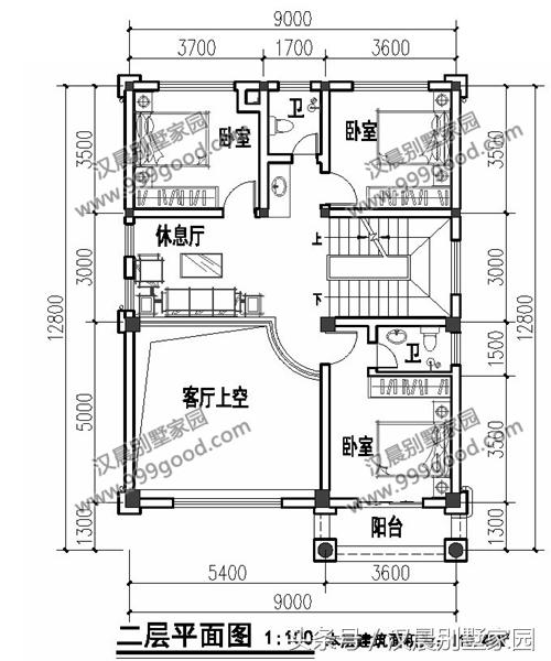
背面有小門出行,戶型南北通透,多功能性的設計既美觀又實用。
平面功能: 入戶堂屋,旋轉樓梯,一層有臥室帶獨衛。二層上三層旋轉樓梯和直角樓梯的完美切換,自然時尚。
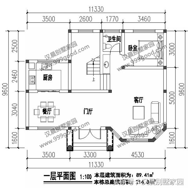
走廊設計,符合農村自建房的傳統理念,低調的外觀配色,層層遞減錯落有致
平面功能亮點: 棋牌室在一層,非常適合農村自建,畢竟一層是農村主要的活動區域。 二層有書房、茶室客廳和臥室衛生間,功能性已達到最優化。
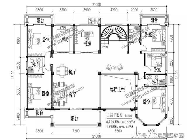
平面功能說明: 進門客廳,入戶便能感受到室內的熱鬧。 臥室都帶有獨衛,每層盡量以三間臥室為標準,三跑樓梯非常洋氣。
建房率超高的一款戶型,很多中外觀裝修風格,這款其中容納了多顏色多材料,展現別墅不同的面貌,新穎不落俗套。
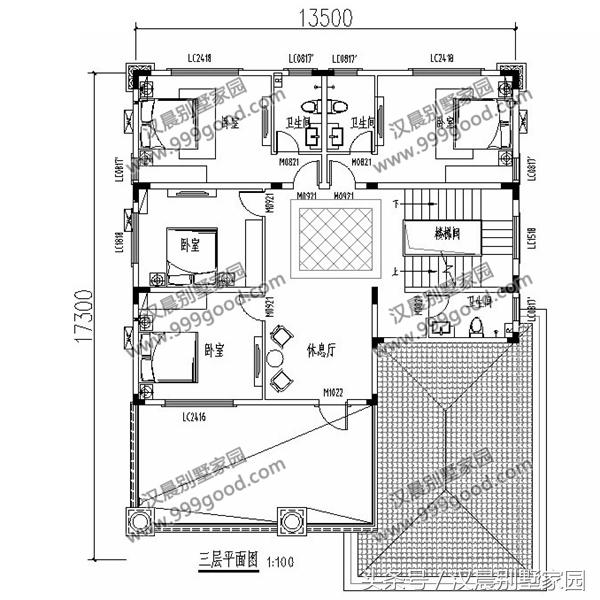
平面功能說明: 室內樓梯設計特別,私密性也是極好的。二三層都有露臺設計。 每層一個衛生間,經濟接地氣。功能區間不算多,居住起來寬敞也舒適。
戶型的八角落地窗,戶型的陽臺,非常雋秀的一款戶型,典型的歐式風格。
平面功能說明: 有堂屋有茶室、室內闊度超大。樓梯圍繞衛生間而建,省空間同時設計手法考究。 平時居住得少,所以沒有設置公衛,每間臥室都帶有獨衛。
這款別墅的設計非常大氣,沒有大的宅地根本蓋不了這樣的戶型,造型是美的。
看一下背面,花得錢應該也是很多的,比如這兩面落地窗。
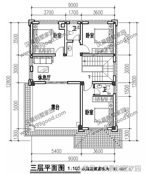
平面圖說明: 入戶堂屋,室內旋轉樓梯完美呈現現代農村住宅的美觀和實用并存。 臥室分布均勻,客廳挑空,頂層娛樂室和露臺,作為休息的地方。
傳統的四開間設計,卻不是簡單的對稱形式,坡頂和尖頂相結合。
門窗的設計別具一格,不單調不張揚,根據實際需要的效果互相結合。
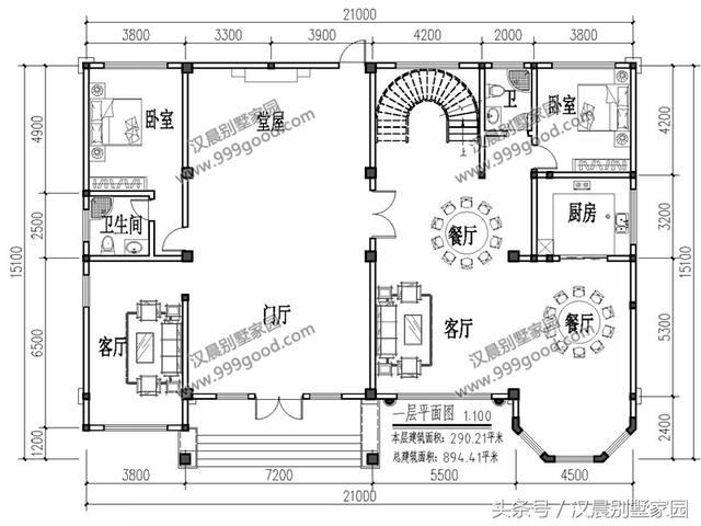
平面圖說明 按照農村當地的風俗,堂屋單獨直通到底,后面不要設計其他區間。 右側一個套間,有廚房、餐廳、客廳臥室和衛生間。 每層都有小廚房和小餐廳,可以作為另類的雙拼別墅。
圖紙之家-專注農村別墅/自建房設計18年,集合國內200余位經驗豐富的設計師,被評為口碑最好的農村建筑設計公司! |

二層門面房自建小樓設計圖紙及效果圖,占地150平
占地:151.83平方米
農村現代新中式三合院設計圖及效果圖片,外觀好看極了
占地:多戶型可選
二層簡歐別墅設計圖挑空客廳+旋轉樓梯,看過的人都說氣派
占地:154.699平方米
帶地下室一層別墅設計方案,功能布局齊全實用
占地:256.5平方米
一層農村必蓋戶型設計方案,養老自住兩相宜,經濟實惠又耐用!
占地:150.36平方米
五十萬二層半鄉村別墅,客廳挑空設計,占地200平米左右
占地:200平方米
新農村小戶型4層自建房三層半別墅設計圖,平屋頂設計
占地:95平方米
120平方三層房子設計圖,漂亮實用農村自建小別墅設計圖
占地:120平方米
50萬左右農村豪華二層別墅設計圖 ,大廳中空,外觀精美
占地:210平方米
開間8米的小戶型二層別墅設計圖,2開間占地不到60平
占地:56平方米左右
140平方米新農村四層房屋設計圖紙,農村自建推薦
占地:140平方米
歐式獨棟二層小別墅設計圖,客廳中空,占地126平米
占地:120平方米
農村自建二層半樓房效果圖,美觀大氣布局合理,很適合農村人自
占地:160.11平方米
農村25萬元二層小樓圖,經典大氣建成20年不過時
占地:150平方米
95平米二層別墅必蓋戶型圖,造型洋氣,布局接地氣,趕緊回村建
占地:95.38平方米
戶型好的三層帶獨立車庫的樓房設計圖,含外觀效果圖
占地:148平方米
大氣農村一層自建別墅方案,絕對讓人羨慕的“平房”
占地:158.39平方米
雙戶168平方米小戶型新農村雙拼樓房設計建筑圖紙帶外觀圖
占地:168平方米
農村一層中式三合院太香了!白墻黛瓦,有院有景超宜居
占地:364.72平方米
中式兄弟雙拼別墅設計圖紙,類似合院造型,美爆了
占地:221.9平方米
推薦:10套新農村自建房設計圖,2026年最新設計
閱讀次數:4825737次
100套鄉村別墅圖片大全,2026年最新設計
閱讀次數:2492203次
6款農村蓋一層平房的設計圖,10萬元就能建起來
閱讀次數:1852637次
這11個一層農村自建房別墅火爆了朋友圈!我最喜歡戶型十!你呢
閱讀次數:750268次
農村6萬元建一層小別墅圖,你敢相信嗎
閱讀次數:567686次
農村5萬塊就能自建房,6套普通房子設計圖分享,你沒看錯!
閱讀次數:419410次
8套農村漂亮三間平房圖片,非常適合在農村修建!
閱讀次數:411197次
農村自建房化糞池怎么做?附方案及施工過程
閱讀次數:391783次
農村一層三間平房設計圖,告別土氣養老房,讓人忍不住點贊
閱讀次數:350581次
新農村二層樓房圖片造價12萬,挑一套回家建房吧!
閱讀次數:349126次
