
|
總的來說,現在在農村蓋一棟房子,好處真的比強行在城里貸款買房要劃算太多了。從價格來講,農村地區二三十萬可以建一棟大氣美觀的別墅,同樣的價格在三四線城市也只能買個相當局促的戶型。
而且國家現在對農村發展政策支持,尤其對于咱們節能環保的輕鋼別墅有更多的支持。另一方面,農村地區生活環境舒適,生活節奏慢,對于人的身體健康也是有諸多好處,健康比什么都重要。
在大家擔心的教育、醫療方面,現在農村學校很多都是城里來的老師,教學質量并不會比城里學校差,農村地區相對于城市的鋼鐵森林,也能提供給孩子更加豐富的童年。
農村現在道路村村通,到市里大醫院也不需要太久,還能享受農村合作醫療。如果你有個二三十萬,你會在環境優美的老家建棟小別墅還是在城里付首付買房呢? 今天給大家推薦的戶型靈感正來自于咱們最經典的戶型——地中海。
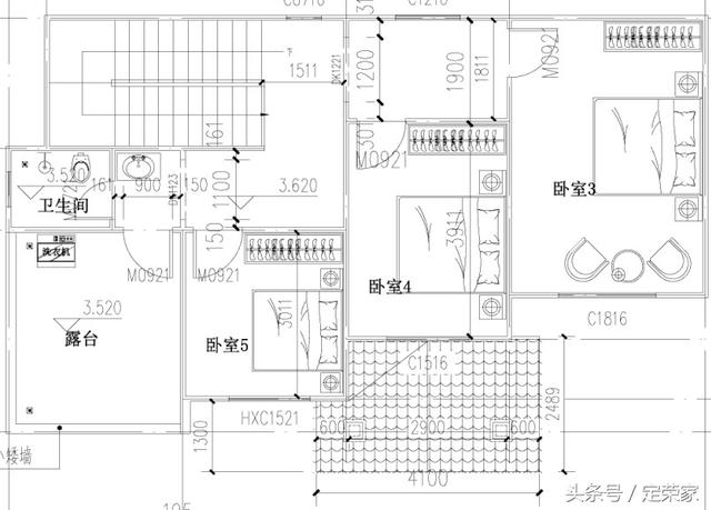
項目名稱:廣東中山地中海mini戶型 基本信息:二層 建筑層高: 一層3m,二層3m 項目面積:162.86㎡ 占地尺寸:12.889?7.689 室內布局:五室二廳二衛 外墻材料:水泥纖維掛板,文化石,質感涂料 屋頂材料:歐式瀝青瓦
此戶型為經典戶型地中海系列162㎡精煉版,百變地中海中戶型最精致利用率最高的一款。一層二室二廳一衛一廚,滿足家中老人生活日常所需。二層三室一露臺一衛,滿足主人家家庭居住的需求。
該戶型完美保留地中海256平外觀造型,在面積更加緊湊,布局科學,濃縮的精華。
農村建房好處多多,如果您之前就中意咱們的地中海標準戶型,卻又因為戶型太大或者經濟方面的原因暫時放棄的話,這次的地中海迷你戶型可千萬不要錯過哦~ 圖紙之家-專注農村別墅/自建房設計18年,集合國內200余位經驗豐富的設計師,被評為口碑最好的農村建筑設計公司! |

小型四合院二層別墅設計圖方案,對稱設計,頂層大露臺
占地:114平方米
預算20萬左右三層別墅設計圖紙,新農村自建房推薦
占地:118平方米
農村中式一層合院別墅設計圖,帶小院子規劃設計
占地:202平方米左右
大氣、簡約三層雙拼別墅設計圖,適合和父母同住,既相互關照又
占地:260平方米
18×15米新中式高檔農村三層別墅設計圖,低調奢華又實用
占地:195.91平方米
2026年獨棟三層雙拼別墅戶型圖,總占地面積300平方米左右
占地:300平方米
最好看的農村三層樓房設計圖,占地113平米,小平米大格局
占地:110平方米
好看又簡單的二層小樓設計圖,農村自建20萬元左右
占地:130平方米
小戶型三層別墅房屋設計圖紙,占地80多平米,麻雀雖小五臟俱全
占地:80平方米
新中式小戶型二層別墅效果圖及全套施工設計圖,造價經濟實惠
占地:108平方米
農村2026新式好看又簡單的二層樓房設計圖,外形美觀,家用足夠
占地:200平方米
平屋頂現代風格三層蓋別墅設計圖紙,面寬18米
占地:235.34平方米
120平方米新農村全套二層施工設計圖紙大全11X11米
占地:120平方米
歐式三層別墅設計圖,低調奢華,實用布局,好設計不容錯過
占地:134.1平方米
鄉村一層平房設計圖,面寬13米平面圖及造型圖
占地:170平方米
農村三室二廳一層小平房設計圖,簡單實用型
占地:113.4平方米
偏徽派風格民居三層農村住宅設計圖,白墻黛瓦的古雅簡潔
占地:101.01平方米
二層復式農村別墅設計圖,進深12米,戶型堪稱完美
占地:193.2平方米
170平方米新農村實用的三層雙拼設計圖紙,帶公用堂屋!
占地:173.62平方米
小型農村二層自建樓房設計圖,面寬10米小占地經濟
占地:78.54平方米
推薦:10套新農村自建房設計圖,2026年最新設計
閱讀次數:4825737次
100套鄉村別墅圖片大全,2026年最新設計
閱讀次數:2492203次
6款農村蓋一層平房的設計圖,10萬元就能建起來
閱讀次數:1852637次
這11個一層農村自建房別墅火爆了朋友圈!我最喜歡戶型十!你呢
閱讀次數:750268次
農村6萬元建一層小別墅圖,你敢相信嗎
閱讀次數:567686次
農村5萬塊就能自建房,6套普通房子設計圖分享,你沒看錯!
閱讀次數:419410次
8套農村漂亮三間平房圖片,非常適合在農村修建!
閱讀次數:411197次
農村自建房化糞池怎么做?附方案及施工過程
閱讀次數:391783次
農村一層三間平房設計圖,告別土氣養老房,讓人忍不住點贊
閱讀次數:350581次
新農村二層樓房圖片造價12萬,挑一套回家建房吧!
閱讀次數:349126次
