
|
九月即將過去,本月有不少受歡迎的戶型,小編今天給大家挑選了這款,是簡單實用的戶型,農村很多家庭會比較青睞這種簡約型的圖紙,一起來看看這款35萬三層10×13米帶車庫+套房農村房屋全套CAD施工效果圖。 圖紙詳情 層數: 三層 結構形式: 磚混結構 主體造價: 35萬 開間: 9.96米 進深: 12.96米 占地面積: 151.58平方米 建筑面積: 378平方米
效果圖 本戶型采用鮮艷的黃色墻漆裝飾外墻,搭配濃烈的紅色,并使用灰色蘑菇石和文化石裝飾,色塊銜接自然,給人溫馨舒適感。二三層均設有大露臺,方便家人活動,晾曬東西也很方便。該戶型帶有車庫,是現代農村建房常見的功能,畢竟生活水平好了,很多家庭也買了車子,車庫的預留方便停車。 設計功能
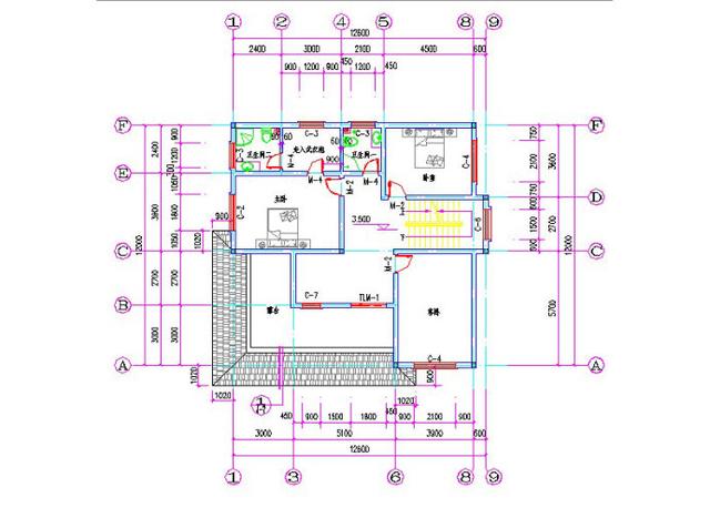
一層平面圖 一 層: 客廳、臥室、廚房、餐廳、儲藏間、衛生間、車庫
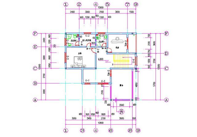
二層平面圖 二 層: 主臥(附更衣室,衛生間)、2臥室、衛生間、露臺
三層平面圖 三 層: 主臥(附更衣室,衛生間)、書房(附陽臺)、衛生間、露臺 圖紙之家-專注農村別墅/自建房設計18年,集合國內200余位經驗豐富的設計師,被評為口碑最好的農村建筑設計公司! |

徽派120平新農村住宅設計方案,帶外觀效果圖
占地:120平方米
簡單實用的二層雙拼別墅設計圖,總占地150平米左右,雙拼房屋
占地:150平方米MB
16米乘12米農村二層別墅設計圖,布局舒適寬敞、客廳挑空
占地:188.18平方米
帶柴火房農村一層自建房設計圖,戶型布局接地氣
占地:126.29平方米
50萬以內的歐式三層房屋別墅施工設計圖紙及效果圖
占地:169平方米
豪華農村帶露臺三層樓房別墅設計圖紙,占地200平方米左右
占地:200平方米
80平方米農村四層房屋設計圖紙及效果圖
占地:80平方米
實用農村三層房屋設計圖紙,效果圖+全套施工圖
占地:113平方米
130平方米湖南二層復式自建房屋設計圖紙12x11米
占地:128平方米
120平方米農村四層別墅設計圖,含全套施工圖
占地:120平方米
戶型獨特的、二層臥室挑高的別墅房屋設計圖,外觀簡歐風格
占地:250平方米
110平方米新農村三層別墅設計圖,含外觀效果圖
占地:109平方米
頂配三拼三層別墅設計,獨立入戶+共享庭院,兄弟三家共享奢華
占地:367.44平方米
兄弟三層雙拼房屋設計圖,帶效果圖,戶型好
占地:256平方米
戶型好的農村三層樓房設計圖,帶外觀效果圖
占地:110平方米
農村小戶型二層房屋別墅設計圖,帶外觀效果圖
占地:95平方米
160平方米左右二層自建別墅設計圖,對稱設計,23萬建好
占地:157平方米左右
農村高端中式三層雙拼全套房屋施工設計圖,效果圖很大氣
占地:340平方米
農村120平米兩層樓的房子設計圖,外觀新穎
占地:120平方米
面寬8米多的三層農村別墅設計圖,小開間宅基地推薦
占地:112.82平方米
推薦:10套新農村自建房設計圖,2026年最新設計
閱讀次數:4825737次
100套鄉村別墅圖片大全,2026年最新設計
閱讀次數:2492203次
6款農村蓋一層平房的設計圖,10萬元就能建起來
閱讀次數:1852637次
這11個一層農村自建房別墅火爆了朋友圈!我最喜歡戶型十!你呢
閱讀次數:750268次
農村6萬元建一層小別墅圖,你敢相信嗎
閱讀次數:567686次
農村5萬塊就能自建房,6套普通房子設計圖分享,你沒看錯!
閱讀次數:419410次
8套農村漂亮三間平房圖片,非常適合在農村修建!
閱讀次數:411197次
農村自建房化糞池怎么做?附方案及施工過程
閱讀次數:391783次
農村一層三間平房設計圖,告別土氣養老房,讓人忍不住點贊
閱讀次數:350581次
新農村二層樓房圖片造價12萬,挑一套回家建房吧!
閱讀次數:349126次
