
|
以前人們對住房的要求不高,能滿足日常的需求就行,在造型上也是要簡單一點的,戶型方正卻沒有什么美感。現在人們的收入水平提高了,開始追求高品質的舒適生活,更傾向于自建小別墅了。蓋房之前還會找設計師幫忙,讓房子的室內布局合理舒適、外觀造型美觀大氣。 今天給大家帶來5套三層農村自建房設計,看看有沒有適合你需要的吧! 第一套
正面效果圖
背面效果圖
鳥瞰圖 占地面積:9.2m*14.5m,一層占地123平方米左右; 建筑高度:11.7米(含屋頂); 設計功能: 一層戶型:客廳、廚房、餐廳、臥室(帶衛生間)、衛生間、車庫; 二層戶型:客廳上空、客廳、臥室(帶衛生間)、臥室、衛生間; 三層戶型:健身房、書房、臥室(帶衛生間)、衛生間、大露臺;
一層平面圖
二層平面圖
三層平面圖
立面圖 第二套
正面效果圖
背面效果圖
鳥瞰圖 占地面積:10.6m*12.2m,一層占地120平方米左右; 建筑高度:14.03米(含屋頂); 設計功能: 一層戶型:客廳、廚房、餐廳、臥室、衛生間、儲藏間、車庫(不需要車庫可以做成臥室); 二層戶型:客廳、臥室(帶衛生間)、臥室x2、書房、衛生間、陽臺; 三層戶型:客廳、臥室(帶書房、衛生間、陽臺)、臥室、書房、衛生間、陽臺; 閣樓戶型:功能自定義;
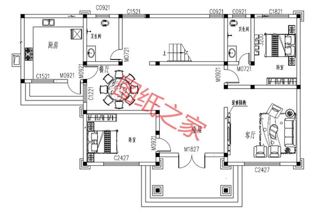
一層平面圖
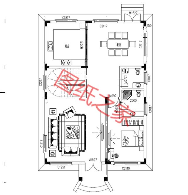
二層平面圖
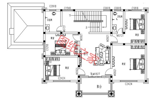
三層平面圖
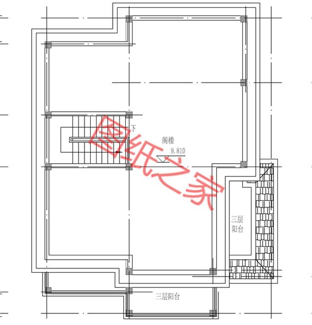
閣樓平面圖
第三套
正面效果圖
背面效果圖
鳥瞰圖 占地面積:12.0m*14.8m,一層占地180平方米左右; 建筑高度:12.2米(含屋頂); 設計功能: 一層戶型:客廳、廚房、餐廳、老人房、臥室×2、衛生間、儲藏間; 二層戶型:客廳上空、臥室(帶衣帽間)、臥室x2、書房、衛生間、陽臺; 三層戶型:臥室(帶衣帽間)、臥室x2、書房、衛生間、大露臺;
一層平面圖
二層平面圖
三層平面圖
立面圖 第四套
正面效果圖
背面效果圖
鳥瞰圖 占地面積:18.6m*11.8m,一層占地166平方米左右; 建筑高度:13.1米(含屋頂); 設計功能: 一層戶型:堂屋、客廳、廚房、餐廳、臥室(帶衛生間)、臥室、衛生間; 二層戶型:客廳、臥室(帶衛生間)、臥室x3、衛生間、陽臺; 三層戶型:活動室、臥室(帶衛生間)、臥室x2、衛生間、大露臺;
一層平面圖
二層平面圖
三層平面圖
立面圖 第五套
正面效果圖
背面效果圖
鳥瞰圖 占地面積:21.76m*15.76m,330平方米左右,單戶165平左右; 建筑高度:12.36米(含屋頂); 設計功能: 一層戶型:客廳、餐廳、廚房、臥室(帶衛生間)、臥室、衛生間; 二層戶型:客廳上空、家庭廳、臥室(帶衛生間,陽臺)、臥室×2、衛生間; 三層戶型:主臥(帶衛生間、書房、露臺)、臥室、涼亭、活動室、公衛、露臺;
一層平面圖
二層平面圖
三層平面圖
立面圖
圖紙之家-專注農村別墅/自建房設計18年,集合國內200余位經驗豐富的設計師,被評為口碑最好的農村建筑設計公司! |

帶架空層的一層自建房太香了!防潮、停車、儲物全兼顧
占地:152.06平方米
面寬11米現代風二層小別墅,平屋頂設計,緊跟潮流時尚前衛
占地:94.43平方米
農村四層樓房外形設計圖,主臥配有陽臺和衣帽間還有衛生間
占地:126平方米
130平米新農村自建房屋施工建筑圖紙及效果圖
占地:132平米
新農村住宅設計圖紙含效果圖,方方正正的別墅方案
占地:134平方米左右
鄉下建房一層半戶型圖,占地160平米,帶閣樓
占地:多種戶型
農村25萬別墅款式二層自建房設計圖,外觀簡約大氣
占地:多種戶型
農村一層中式三合院別墅戶型圖,這才是適合中國人建的好房子
占地:218.77平方米
占地200平米簡歐三層農村別墅設計圖,既顯華麗又接地氣
占地:209.27平方米
160平方米二層平屋頂房屋設計圖紙及效果圖17x11米
占地:164平方米
后面帶小院的農村房屋設計圖,適合鄉村自建
占地:300平方米
農村五開間大平層設計圖,主體15萬就能建。
占地:182.43平方米
簡單的復式住宅設計圖,客廳挑高,帶外觀效果圖片
占地:148平方米
帶堂屋設計一層三合院設計圖,白墻黛瓦古韻悠悠,比高層舒服接
占地:179.37平方米
100平方米左右新農村二層房屋設計建筑CAD圖紙帶外觀效果圖
占地:多戶型可選
農村三層私人住宅設計圖紙及效果圖,帶車庫,帶露臺
占地:150平方米
農村15萬元二層小樓設計圖,造價低,簡潔、好看
占地:90平方米
120平米三層別墅房屋設計圖,帶車庫,帶閣樓
占地:120平方米
農村一層平房設計圖,人字坡戶型簡單大方,養老自住都不錯
占地:139.2平方米
客廳中空三層復式別墅房屋設計圖,帶外觀效果圖
占地:145平方米
推薦:10套新農村自建房設計圖,2026年最新設計
閱讀次數:4825737次
100套鄉村別墅圖片大全,2026年最新設計
閱讀次數:2492203次
6款農村蓋一層平房的設計圖,10萬元就能建起來
閱讀次數:1852637次
這11個一層農村自建房別墅火爆了朋友圈!我最喜歡戶型十!你呢
閱讀次數:750268次
農村6萬元建一層小別墅圖,你敢相信嗎
閱讀次數:567686次
農村5萬塊就能自建房,6套普通房子設計圖分享,你沒看錯!
閱讀次數:419410次
8套農村漂亮三間平房圖片,非常適合在農村修建!
閱讀次數:411197次
農村自建房化糞池怎么做?附方案及施工過程
閱讀次數:391783次
農村一層三間平房設計圖,告別土氣養老房,讓人忍不住點贊
閱讀次數:350581次
新農村二層樓房圖片造價12萬,挑一套回家建房吧!
閱讀次數:349126次
