
|
農村在很多人的印象中還是比較落后的,不論是交通還是住房,都遠遠落后城市。但是農村也是在發展的,基礎設施不斷完善、生活水平日益提高,一點也不比城里差。尤其是農村的自建房可以說是多種多樣,既有簡單大氣的,又有豪華張揚的,各有各的風格和特點。 今天給大家帶來6套農村三層自建房設計,看看有沒有你喜歡的吧! 第一套
正面效果圖
背面效果圖
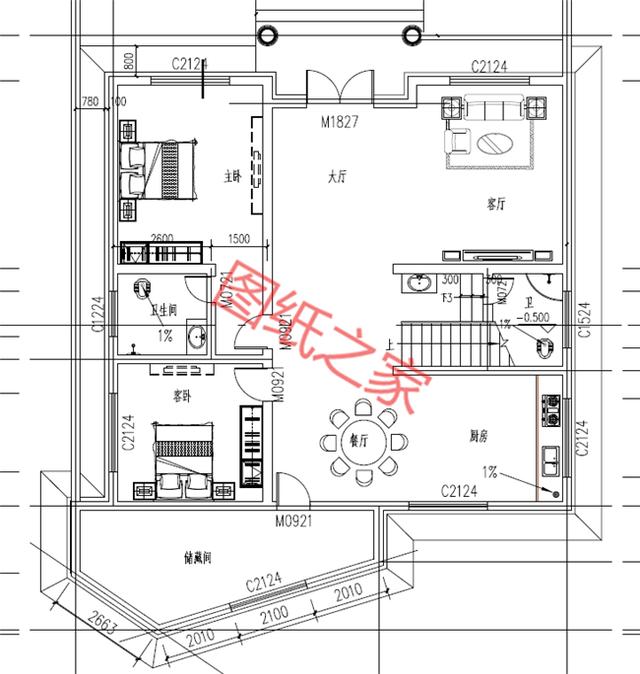
鳥瞰圖 占地面積:15.8m*13.0m,一層占地170平方米左右(不含院子); 建筑高度:12.8米(含屋頂); 設計功能: 一 層:客廳、廚房、餐廳、臥室(帶衛生間)、客臥、衛生間、儲藏間(根據情況調整); 二 層:茶室、臥室(帶衛生間)、臥室x2、衣帽間、衛生間、露臺; 三 層:臥室×3、書房、露臺、衛生間、衣帽間;
一層平面圖
二層平面圖
三層平面圖 第二套
正面效果圖
背面效果圖
鳥瞰圖 占地面積:13.6m*12.6m,一層占地175平方米左右; 建筑高度:13.36米(含屋頂); 設計功能: 一 層:客廳、廚房、餐廳、臥室(帶衣帽間)、臥室、棋牌室、衛生間; 二 層:客廳、臥室x2、衛生間、陽臺; 三 層:客廳、臥室(帶衣帽間)、臥室x2、衛生間、大露臺;
一層平面圖
二層平面圖
三層平面圖 第三套
正面效果圖
背面效果圖
鳥瞰圖 占地面積:12.2m*11.4m,一層占地130平方米左右; 建筑高度:12.7米(含屋頂); 設計功能: 地下室:功能自定義; 一 層:客廳、廚房、餐廳、臥室×2、衛生間; 二 層:客廳上空、客廳、臥室x3、衛生間、陽臺; 三 層:臥室x3、書房、衛生間、大露臺;
地下平面圖
一層平面圖
二層平面圖
三層平面圖 第四套
正面效果圖
背面效果圖
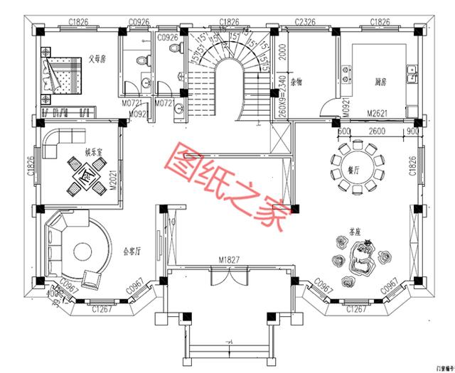
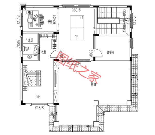
鳥瞰圖 占地面積:18.8m*14.3m,一層占地240平方米左右; 建筑高度:13.86米(含屋頂); 設計功能: 一 層:玄關、客廳、廚房、餐廳、茶室、臥室(帶衛生間)、娛樂室、衛生間、雜物間; 二 層:客廳、主臥(帶衛生間)×2、臥室x4、公衛×2、陽臺; 三 層:主臥(帶衛生間)×2、健身房、書房、監控室、公衛×2、露臺×2;
一層平面圖
二層平面圖
三層平面圖 第五套
正面效果圖
背面效果圖
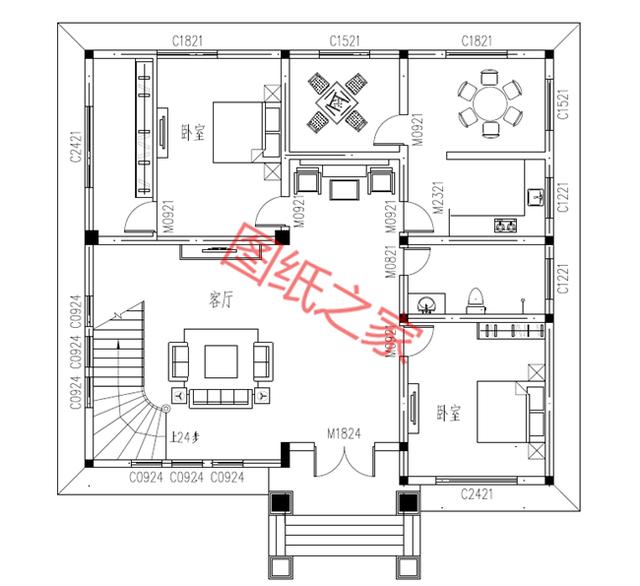
鳥瞰圖 占地面積:12.2m*13.4m,一層占地135平方米左右; 建筑高度:11.9米(含屋頂); 設計功能: 一 層:客廳、廚房、餐廳、臥室(帶衛生間)、茶室、衛生間; 二 層:客廳、娛樂廳、臥室(帶衛生間)、臥室x3、衛生間、陽臺; 三 層:臥室(帶衛生間、衣帽間)、書房、儲物間、露臺;
一層平面圖
二層平面圖
三層平面圖 第六套
正面效果圖
背面效果圖
鳥瞰圖 占地面積:11.8m*9.9m,一層占地120平方米左右; 建筑高度:12.7米(含屋頂); 設計功能: 一 層:客廳、廚房、餐廳、臥室(帶衛生間)衛生間; 二 層:客廳上空、小客廳、臥室(帶衛生間)、臥室x2、衛生間; 三 層:小客廳、臥室(帶衛生間)、臥室x2、衛生間、大露臺、陽臺;
一層平面圖
二層平面圖
三層平面圖
圖紙之家-專注農村別墅/自建房設計18年,集合國內200余位經驗豐富的設計師,被評為口碑最好的農村建筑設計公司! |

200平方米別墅設計圖紙(含效果圖),農村別墅方案精選
占地:200.26平方米
農村三間三層豪宅設計圖,自建別墅推薦戶型,帶地下室
占地:170平方米
30萬以下的經典二層新農村別墅設計圖紙及效果圖,簡單大氣
占地:170平方米
造價30萬左右的三層樓房設計圖,占地120平米左右
占地:120平方米
豪華農村帶露臺三層樓房別墅設計圖紙,占地200平方米左右
占地:200平方米
四層(三層半)豪華歐式別墅房屋設計圖,外觀高端、大氣
占地:150平方米
面寬8米的新農村三層自建房設計圖平屋頂,全套cad圖紙+效果圖
占地:115平方米
泰式風格三層小別墅設計圖,帶車庫和大露臺
占地:120平方米
帶堂屋新農村三層房屋別墅設計圖紙,帶外觀效果圖
占地:214平方米
小型四合院二層別墅設計圖方案,對稱設計,頂層大露臺
占地:114平方米
簡單實用的二層雙拼別墅設計圖,總占地150平米左右,雙拼房屋
占地:150平方米MB
帶框架層的四層別墅設計圖,框架層功能布局很多,很實用
占地:169.09平方米
150平米簡單大方的三層農村自建房設計圖,坡層頂,色彩鮮明,布
占地:150平方米
180平方米農村二層別墅四合院建筑設計圖紙
占地:181平方米
歐式小別墅設計圖紙帶效果圖,二層歐式小別墅設計方案展示
占地:166平方米
最好看的農村三層樓房設計圖,占地113平米,小平米大格局
占地:110平方米
大開間小進深的一層別墅設計圖,進深僅8.7米,獨立餐廚照樣美觀
占地:130.32平方米
回農村建養老房,還是一層平頂戶型最合適,不單單只是省錢
占地:102.24平方米
130-140平方米簡歐風格二層別墅設計施工圖紙,簡約大氣
占地:137平方米左右
農村一層7字型平房別墅設計圖,“L”自行戶型,外觀簡約低調
占地:213.39平方米
推薦:10套新農村自建房設計圖,2026年最新設計
閱讀次數:4825737次
100套鄉村別墅圖片大全,2026年最新設計
閱讀次數:2492203次
6款農村蓋一層平房的設計圖,10萬元就能建起來
閱讀次數:1852637次
這11個一層農村自建房別墅火爆了朋友圈!我最喜歡戶型十!你呢
閱讀次數:750268次
農村6萬元建一層小別墅圖,你敢相信嗎
閱讀次數:567686次
農村5萬塊就能自建房,6套普通房子設計圖分享,你沒看錯!
閱讀次數:419410次
8套農村漂亮三間平房圖片,非常適合在農村修建!
閱讀次數:411197次
農村自建房化糞池怎么做?附方案及施工過程
閱讀次數:391783次
農村一層三間平房設計圖,告別土氣養老房,讓人忍不住點贊
閱讀次數:350581次
新農村二層樓房圖片造價12萬,挑一套回家建房吧!
閱讀次數:349126次
