
|
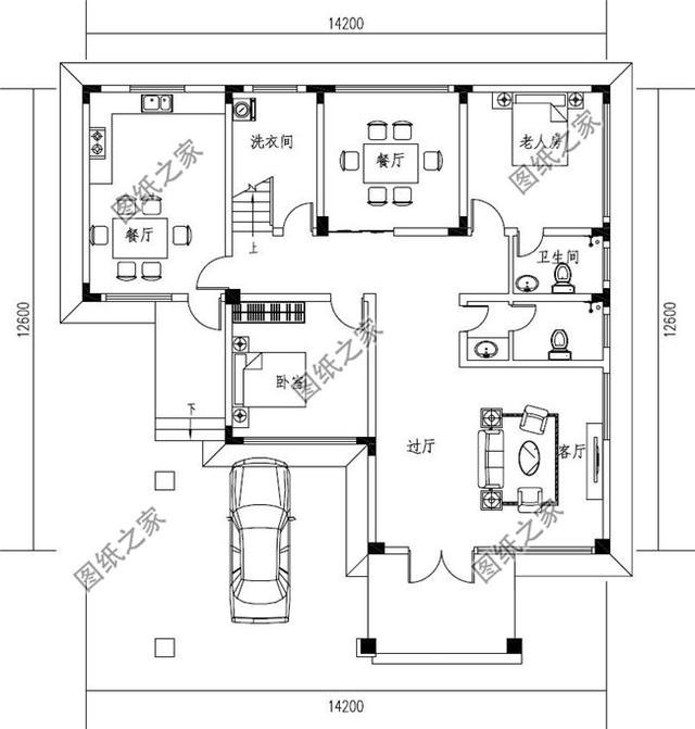
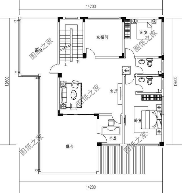
雖然國家在農村宅基地方面有限制,但還是鼓勵農村正規合法的建房,現在很多政策都偏向農村,有農村戶口在農村建套小別墅,就二層的,面積也不用多大,留著養老或者度假,都讓城里人羨慕不已。 今天看下面三套四開間的二層別墅效果圖吧!看完后大家都爭著建呢! 第一套:實用型中式四開間二層別墅設計圖以及戶型圖,帶車庫設計![]() 這款農村實用二層4開間別墅設計圖,七間臥室帶露臺,在老家建一棟最合適不過了!別墅外觀配色和諧經典,讓人眼前一亮。獨樹一幟的新風格,比起中國人最愛的傳統中式,這種風格更現代、更時尚一點。利用科學合理的空間布局,展現出建筑結構的形式美。一層設有客廳,還在東側專設烤火房,符合南方人的生活習慣,為冬日取暖提供條件;全屋一共布置7間臥室,足夠一家人居住使用。寬敞的大露臺可作休閑觀景平臺使用。方便晾曬衣物實用性強。 占地面積:16.26m*11.76m,198平方米左右 建筑高度:8.875米(含屋頂) 功能: 一層戶型:客廳、烤火房、儲藏室、餐廳、廚房、臥室x2、衛生間x2、車庫 二層戶型:臥室(帶衣帽間)、臥室x4、衛生間x2、露臺 ![]() ![]() 第二套:2020年新款中式風格二層別墅設計圖以及戶型圖![]() 這款新風格二層別墅設計圖,農村自建房不土氣,這款二層新式農村小別墅顛覆你對家的想象,總有一部分人認為農村的房子比較土氣,不像城市里的房子高大上。其實這真的是一種偏見,如今農民的錢包鼓了,越來越注重房子的外觀,本款別墅設計師采用簡潔的建筑手法將房子外觀設計的美觀大氣,內部舒適實用,而且價格還很經濟。 占地面積:15.8m*10.66m,144.5平方米 建筑高度:9.53米(含屋頂) 功能: 一層戶型:客廳、大廳、廚房、餐廳、臥室(帶衛生間)、臥室、衛生間 二層戶型:起居室、臥室(帶衛生間)、臥室x2、衛生間、露臺、涼亭(帶頂) ![]() ![]() 第三套:現代式二層別墅設計圖以及戶型圖,戶型圖方正![]() ![]() ![]() 這款現代二層自建房外觀效果圖,經濟實用,帶車庫設計,主體造價都在30萬以內,功能布局合理,人車分流,潔凈分開,空間利用率高,適用于大部分農村建房使用。 占地面積:14.2m*12.6m,145平方米左右 建筑高度:9.95米(含屋頂) 功能: 一層戶型:過廳、客廳、廚房、餐廳、洗衣間、老人房、臥室、衛生間x2、車庫 二層戶型:客廳、書房、臥室(帶衛生間)、臥室、衣帽間、衛生間、露臺 ![]() ![]() 有沒有適合你家房基地面積的?喜歡的那款可以告訴我哦!每一款都有施工圖。 本文由圖紙之家原創,歡迎關注,帶你一起長知識!
圖紙之家-專注農村別墅/自建房設計18年,集合國內200余位經驗豐富的設計師,被評為口碑最好的農村建筑設計公司! |

闊氣高端的三層別墅設計圖,亮得恰到好處,永遠也住不膩
占地:160平方米
農村4間2層樓房設計圖,戶型方正,四平八穩的二層農村別墅
占地:180平方米
被包工頭夸爆的二層別墅戶型!建好未來幾年必火
占地:189.98平方米
140-150平方米新農村別墅設計圖紙,帶外觀效果圖,復式戶型
占地:146平方米
新中式別墅一層自建房設計,戶型實用緊湊
占地:170.54平方米
三層帶地下室+旋轉樓梯別墅設計圖紙,復式挑空客廳
占地:多種戶型
農村三層樓房設計圖紙及效果圖,經典自建圖紙
占地:201平方米
平頂三層別墅設計方案,簡潔舒適大氣通透,12乘9米,打造理想住
占地:98.21平方米
農村一層大別墅施工圖,18米乘12米,讓生活充滿儀式感
占地:216平方米
農村四層樓房設計圖,復式結構、客廳中空,外觀效果圖+全套圖
占地:130平方米
三層兄弟雙拼別墅設計圖,外觀大氣漂亮,顏色搭配協調,一層為
占地:270平方米
三層平頂現代風格,農村自建房設計圖,可帶電梯,百看不厭
占地:259.55平方米
小平米四層自建房屋設計圖紙,戶型簡單實用,占地80平方米
占地:80平方米
大二間三層別墅戶型圖,三層新農村自建房設計圖紙及效果圖
占地:116平方米
農村25萬別墅款式二層自建房設計圖,外觀圖時尚
占地:115平方米
造價25萬農村二層小別墅設計圖,外觀效果圖美觀、精致
占地:165平方米
農村二層仿古尖屋頂別墅設計圖,外觀古樸耐看
占地:87平方米左右
農村中式一層三合院自建房設計圖,古典大氣白墻黛瓦
占地:177.62平方米
100平簡單三層房屋設計圖紙,新農村自建推薦圖紙
占地:100平方米
帶車庫現代三層房屋別墅設計圖,占地110平米左右,功能齊全
占地:110平米
推薦:10套新農村自建房設計圖,2026年最新設計
閱讀次數:4825737次
100套鄉村別墅圖片大全,2026年最新設計
閱讀次數:2492203次
6款農村蓋一層平房的設計圖,10萬元就能建起來
閱讀次數:1852637次
這11個一層農村自建房別墅火爆了朋友圈!我最喜歡戶型十!你呢
閱讀次數:750268次
農村6萬元建一層小別墅圖,你敢相信嗎
閱讀次數:567686次
農村5萬塊就能自建房,6套普通房子設計圖分享,你沒看錯!
閱讀次數:419410次
8套農村漂亮三間平房圖片,非常適合在農村修建!
閱讀次數:411197次
農村自建房化糞池怎么做?附方案及施工過程
閱讀次數:391783次
農村一層三間平房設計圖,告別土氣養老房,讓人忍不住點贊
閱讀次數:350581次
新農村二層樓房圖片造價12萬,挑一套回家建房吧!
閱讀次數:349126次
