
|
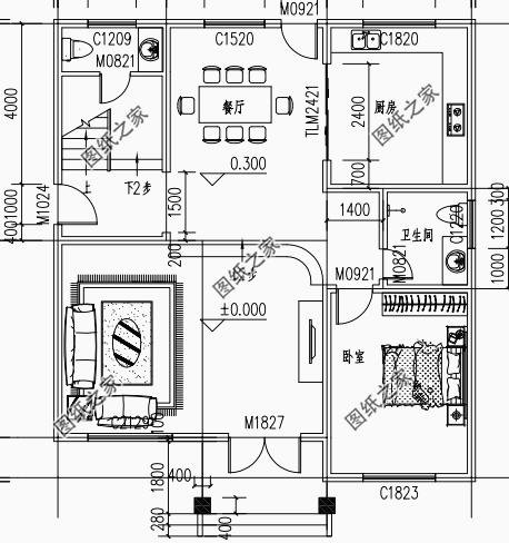
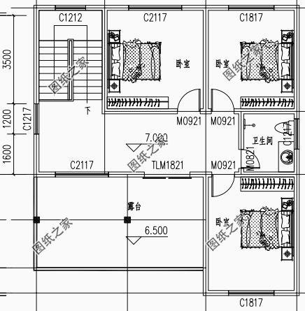
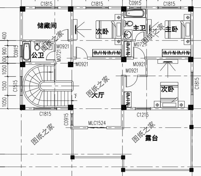
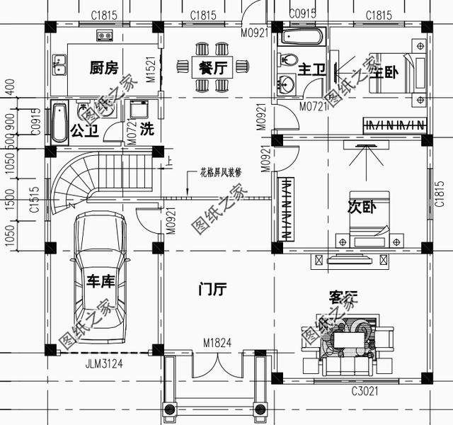
別墅圖紙一:農村三層帶車庫、帶露臺別墅設計圖![]() 圖紙介紹:本戶型為三層帶車庫、帶露臺別墅設計方案,本方案為復式客廳挑空結構、客廳采用落地大窗,采光極好,造型精美,配色經典,外觀造型錯落有致,整棟別墅顯得美觀大氣。 占地面積:13.50m*12.60m【不算門廳】,160平方米左右; 建筑層高:三層; 建筑高度:12.75米(含屋頂); 設計功能: 一 層:門廳、客廳、廚房、餐廳、衛生間、主臥(帶衛生間)、次臥、車庫; 二 層:起居室、主臥(帶衛生間)、次臥x2、書房、衛生間、露臺; 三 層:大廳、主臥(帶衛生間)、次臥x2、衛生間、儲藏間、露臺; ![]() ![]() ![]() 別墅圖紙二:農村120平米三層樓房設計圖,造型現代,帶屋頂花園![]() 圖紙介紹:本戶型為農村120平三層樓房設計圖,造型現代,帶屋頂花園,戶型實用,南北通透。 占地面積:10.50m*11.50m,120平方米左右; 建筑層高:三層; 建筑高度:12.60米(含屋頂); 設計功能: 一層戶型設計:客廳、餐廳、廚房、衛生間、臥室; 二層戶型設計:客廳、臥室x3、衛生間; 三層戶型設計:臥室x3、衛生間、露臺; ![]() ![]() ![]() 別墅圖紙三:農村120平房子設計圖,三層房屋設計圖精選![]() 圖紙介紹:本戶型為120平農村房屋設計圖,含外觀效果圖,11mx11m,正正方方,本方案戶型好,功能分區明確,二層以居住為主,三層帶2個大露臺,以休閑娛樂為主,效果圖配色協調,整體大氣、美觀。 占地面積:11.00m*11.0m,120平方米左右; 建筑層高:三層; 建筑高度:12.41米(含屋頂); 設計功能: 一 層:客廳、餐廳、廚房、洗衣房(可做儲藏間)、臥室、衛生間; 二 層:客廳、主臥(帶衛生間)、臥室x2、棋牌室(可做書房)、衛生間、陽臺x2; 三 層:娛樂廳、臥室x2、衛生間、大露臺、陽臺; ![]() ![]() ![]() 以上就是三層別墅住宅農村設計圖,外觀漂亮,豪華大氣,喜歡哪款,歡迎下方留言。
圖紙之家-專注農村別墅/自建房設計18年,集合國內200余位經驗豐富的設計師,被評為口碑最好的農村建筑設計公司! |

小戶型經濟型三層雙拼小別墅施工設計圖紙,單戶100平內
占地:150平方米
鄉下建房一層平房設計圖紙及戶型圖,占地150平米左右
占地:150平方米
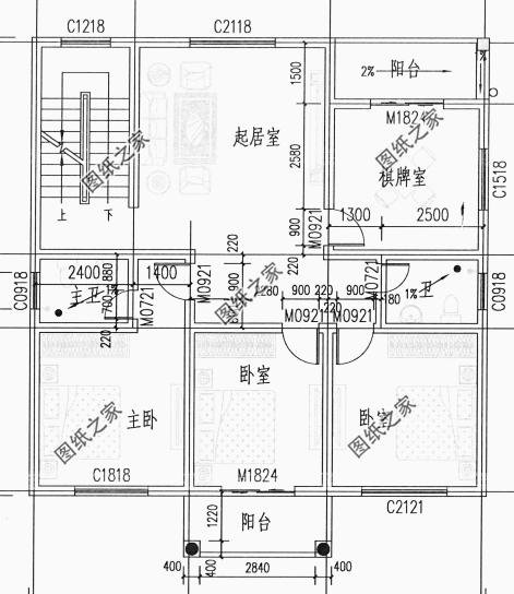
歐式豪華三層別墅設計圖,占地面積170平米,高端大氣帶露臺
占地:170平方米
大戶型美觀一層平房自建房設計圖,面寬19米左右
占地:245.1平方米
140平方米新農村二層自建平屋頂房屋設計圖紙帶外觀效果圖
占地:140平方米左右
2026年新款別墅外觀圖,新中式風格,比簡歐大氣,時尚
占地:135平方米
新款三層豪華大氣歐式別墅設計圖,3種戶型設計方案
占地:125平方米左右
四合院別墅設計效果圖及平面圖,全套施工圖紙
占地:220平方米
105平一層簡單農村別墅設計圖,造價8萬左右
占地:105平方米
鄉村高檔四層豪華別墅自建房設計圖,一層不帶餐廳廚房戶型
占地:147平方米
農村二層小洋樓設計圖,帶外觀效果圖,外觀新穎,漂亮
占地:130平方米
經濟實用二層復式樓房設計圖 ,占地150平方米,造價25萬左右
占地:150平方米
南方新農村三層樓房設計圖紙,帶房屋效果圖
占地:110平方米
新中式二層雙拼樓房設計圖,單戶面積100平米左右,實用美觀
占地:200平方米
農村實用三層樓房圖片,占地140平米左右,客廳中空
占地:140平方米
農村二層四合院設計圖,秒殺各種洋別墅
占地:220平方米
2026二層農村新款別墅新式二層樓房設計圖,非常時尚
占地:多種戶型
70平農村小戶型二層別墅設計圖,小宅基地的福音
占地:70平方米
小開間三層新中式小別墅設計圖,外觀圖優雅大氣,讓人心動!
占地:103.18平方米
新農村自建二層小樓圖,時尚大方,外型精美,室內布局也很贊
占地:137平方米
推薦:10套新農村自建房設計圖,2026年最新設計
閱讀次數:4825737次
100套鄉村別墅圖片大全,2026年最新設計
閱讀次數:2492203次
6款農村蓋一層平房的設計圖,10萬元就能建起來
閱讀次數:1852637次
這11個一層農村自建房別墅火爆了朋友圈!我最喜歡戶型十!你呢
閱讀次數:750268次
農村6萬元建一層小別墅圖,你敢相信嗎
閱讀次數:567686次
農村5萬塊就能自建房,6套普通房子設計圖分享,你沒看錯!
閱讀次數:419410次
8套農村漂亮三間平房圖片,非常適合在農村修建!
閱讀次數:411197次
農村自建房化糞池怎么做?附方案及施工過程
閱讀次數:391783次
農村一層三間平房設計圖,告別土氣養老房,讓人忍不住點贊
閱讀次數:350581次
新農村二層樓房圖片造價12萬,挑一套回家建房吧!
閱讀次數:349126次
