
|
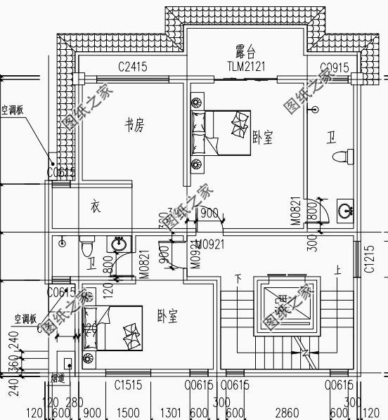
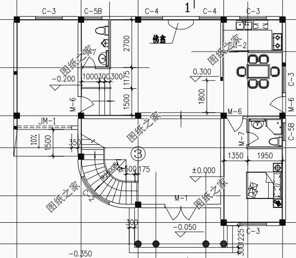
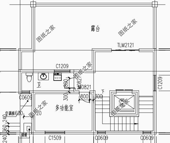
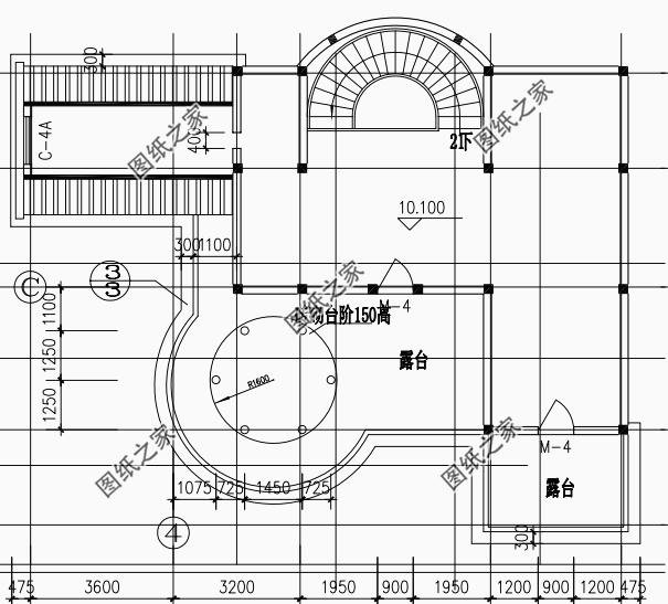
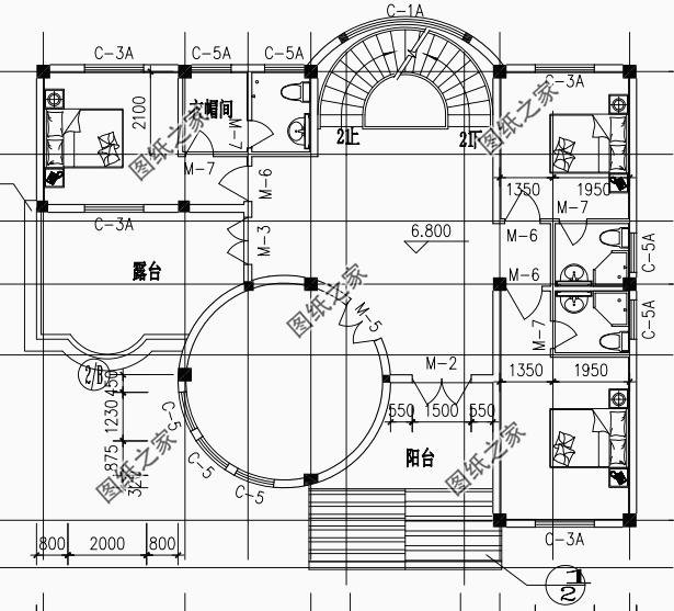
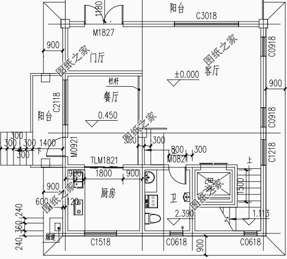
第一款:簡單實用農村自建三層半小別墅設計圖,占地95平米![]() 圖紙介紹:小戶型簡單實用農村自建三層半小別墅設計圖,95平米,帶電梯,二層以上設置房間都為套間,大大的提升業主的生活品質。這款別墅也設計上了電梯,方便業主生活使用。外觀清新亮麗,難得的一套別墅圖紙。 占地面積:9.5m*10.0m,95平方米左右; 建筑層高:四層; 建筑高度:12.7米(含屋頂); 設計功能: 一層戶型展示:客廳、餐廳、廚房、衛生間、電梯; 二層戶型展示:臥室(帶衛生間、衣帽間、露臺)、臥室(帶衛生間)、臥室(帶衣帽間)、衛生間; 三層戶型展示:臥室(帶書房、衣帽間、露臺、衛生間)、臥室(帶衛生間); 三層半戶型展示:多功能室、衛生間、大露臺; ![]() ![]() ![]() ![]() 第二款:三層半農村豪華歐式別墅房屋設計圖,外觀高端、大氣![]() 圖紙介紹:本戶型為四層(三層半)豪華歐式別墅房屋設計圖,外觀高端、大氣,戶型享受、奢華,在農村自建絕對面子十足,滿足自建房普遍存在的攀比心理,旋轉樓梯,中空客廳,弧形的休閑廳、露臺上的涼亭體現出主人的品味生活。 占地面積:15.25m*11.4m,一層建筑150平方米左右;一層總占地面積190平左右; 建筑層高:四層(三層半); 建筑高度:14.88米(含屋頂); 設計功能: 一 層:客廳、餐廳、廚房、主臥(帶衛生間)、大廳(功能自定義)、衛生間、車庫; 二 層:客廳上空、茶吧、主臥(帶衣帽間和衛生間)、臥室(帶衛生間)、臥室、衛生間、走廊、陽臺x2; 三 層:臥室(帶衣帽間和衛生間)、臥室(帶衛生間)、臥室、衛生間、休閑廳、露臺、陽臺; 三層半:功能自定義、涼亭、露臺x2; ![]() ![]() ![]() ![]() 第三款:農村三層半自建房子效果圖設計圖,戶型占地90平方米左右![]() 圖紙介紹:農村占地90平方米左右的簡單別墅設計效果圖及全套設計圖,三層半自建房戶型,外觀溫馨!屋頂面采用灰色琉璃瓦,外墻面采用黃色瓷磚貼面,勒腳面灰色瓷磚,羅馬柱面采用黃色乳膠漆。多窗多柱的設計,營造了滿滿的歐式浪漫氣息。 占地面積:9.35m*10.62m,92.17平方米左右; 建筑層高:三層半層; 建筑高度:15.836米(含屋頂); 設計功能: 一層戶型:客廳、廚房、餐廳、茶室、臥室、衛生間; 二層戶型:客廳、臥室(帶衛生間)、臥室x2、衛生間、陽臺; 三層戶型:臥室(帶衛生間)、臥室x3、衛生間、陽臺; 三層半戶型:健身房、多功能區、衛生間、露臺、陽臺; ![]() ![]() ![]() ![]() 以上就是三層半農村別墅外觀圖,喜歡哪款,歡迎下方留言。
圖紙之家-專注農村別墅/自建房設計18年,集合國內200余位經驗豐富的設計師,被評為口碑最好的農村建筑設計公司! |

豪華高端三層帶地下室別墅設計圖,可帶電梯
占地:210平方米
小宅基地自建房設計圖,占地不到90平三層別墅圖紙
占地:87平方米左右
面寬12米三層自建房別墅設計圖,廚房在前面,農村施工隊都能建
占地:138.18平方米
共堂屋雙拼兩層小別墅設計圖,倆兄弟農村自建房首選
占地:198平方米
新農村簡歐三層樓房圖片自建3層別墅施工設計圖及效果圖
占地:126平方米
農村2開間三層經濟別墅設計圖,9.6米面寬,實用布局
占地:127.68平方米
新農村二層自建房設計圖帶外觀圖片,自建戶型大全
占地:160平方米
農村兄弟雙拼別墅三層,美觀氣派,室內布局合理實用
占地:300平方米
外觀造型對稱的二層別墅設計圖,老虎窗+挑空客廳
占地:175.2平方米
開間14米!農村養老一層別墅神戶型,爸媽住得安心,施工隊狂贊太
占地:160.86平方米
帶車庫農村二層雙拼別墅設計圖,外觀現代
占地:235平方米
新中式高端豪宅三層別墅自建房設計圖,大戶型經典
占地:270平方米左右
160平方米農村三層別墅CAD設計圖紙及效果圖,13.7x12.6米
占地:160平方米
150平米二層鄉村小別墅圖,戶型合理,外觀清新淡雅
占地:150平方米
對稱一層農村養老別墅設計方案,室內戶型布局合理,14x12米
占地:141.46平方米
帶車庫現代三層房屋別墅設計圖,占地110平米左右,功能齊全
占地:110平米
農村四層復式房屋設計圖紙,占地105平方米預算35萬左右
占地:105平方米
農村一層四間平房設計圖方案,含外觀圖片,預算10萬
占地:190平方米
新款現代一層小別墅設計圖,農村自建平房推薦戶型
占地:多戶型可選
外觀看起來高端、奢華的二層小別墅設計圖,推薦
占地:130平方米
推薦:10套新農村自建房設計圖,2026年最新設計
閱讀次數:4825737次
100套鄉村別墅圖片大全,2026年最新設計
閱讀次數:2492203次
6款農村蓋一層平房的設計圖,10萬元就能建起來
閱讀次數:1852637次
這11個一層農村自建房別墅火爆了朋友圈!我最喜歡戶型十!你呢
閱讀次數:750268次
農村6萬元建一層小別墅圖,你敢相信嗎
閱讀次數:567686次
農村5萬塊就能自建房,6套普通房子設計圖分享,你沒看錯!
閱讀次數:419410次
8套農村漂亮三間平房圖片,非常適合在農村修建!
閱讀次數:411197次
農村自建房化糞池怎么做?附方案及施工過程
閱讀次數:391783次
農村一層三間平房設計圖,告別土氣養老房,讓人忍不住點贊
閱讀次數:350581次
新農村二層樓房圖片造價12萬,挑一套回家建房吧!
閱讀次數:349126次
