
|
現在農村蓋房子越來越難了,想蓋一棟經濟實惠的房子更難。現在農村自建房,還是一層小戶型的偏多。花個十來萬,房子自己喜歡,不僅夠一家人居住,房子戶型也好、外觀也很漂亮。那么如何建造出精美實用的戶型,除了要有充裕的資金之外,還需要專業的設計,一套優質的圖紙戶型設計合理,可以加快施工進度,降低不少建房成本。下面小編找了幾款一層最美農村房子圖片,造價才10萬,一起來看看吧。
第一款:新農村一層簡單自建別墅全套設計圖紙開間12.8m,進深10m;130平方米左右;主體造價10萬;磚混結構 布局說明:客廳、餐廳、廚房、主臥(帶衛生間)、臥室x3、衛生間; 這款一層別墅設計圖占地130平方米左右,外觀配色清新亮麗,以橘黃色系為主。門前有走廊,方便日常生活,室內布局實用且合理,有四間臥室,親戚來串門也不怕沒有地方住了,別墅造價經濟,施工簡單,非常適合農村建造。
第二款:現代歐式自建一層別墅設計圖開間12.6m,進深10m;125平方米;主體造價10萬,框架結構 布局說明:臥室X3,衛生間,客廳,廚房,餐廳,儲物間; 這款墻面用真石漆裝飾按照一定的比例分縫,屋面蓋紅瓦。室內配有3室一廳一廚一衛,簡單的三居室,不僅造價低,外觀都很靚。框架結構,配多邊形采光窗設計。滿足一個小家庭的基本生活居住需要。
第三款:農村一層小別墅戶型圖及圖紙開間12.9m,進深10.8m;130平方米左右;主體造價10萬;磚混結構 布局說明:客廳、餐廳、廚房、臥室×5、衛生間,儲藏室; 適合建給父母的經典一層別墅,畢竟年紀大了上下樓梯不方便也不安全,所以如果單為父母而建房,一層是上上之選。本套圖紙設計多個臥室,方便兒女回家省親。建成后效果極佳,全村老人都羨慕。
第四款:歐式風格一層平房小洋樓建筑設計圖紙開間14m,進深8m;98平方米左右;主體造價10萬;磚混結構 布局說明:客廳、廚房、餐廳、臥室(帶衛生間)x2; 歐式風格簡約氣派,外觀結構非常經典耐看,老虎窗的設計,讓整個建筑非常時尚。室內2間臥室套衛,一廚一餐一客廳的格局,基本滿足農村生活居住需求。
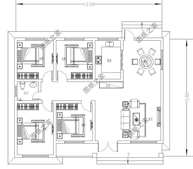
第五款:四開間簡單一層小別墅設計圖開間13.5m,進深10.8m;138.82平方米左右;主體造價10萬;磚混結構 布局說明:玄關、客廳、臥室x4、廚房、餐廳; 外墻僅用簡單的米黃色噴漆裝飾,底部采用棕色文化石做基腳,藍色的屋面瓦,精致美觀。建筑入戶設計玄關,和寬敞的客廳,建筑預留四間臥室,分別位于建筑的兩個角落,互不打擾。
以上就是5款一層最美農村房子圖片,需要的可以搜索圖紙之家進行查找,回村蓋一棟!
圖紙之家-專注農村別墅/自建房設計18年,集合國內200余位經驗豐富的設計師,被評為口碑最好的農村建筑設計公司! |

適合兄弟自建的二層雙拼別墅設計方案,帶效果圖
占地:180平方米
140平方米三層別墅設計圖紙,歐式帶外觀效果圖
占地:140平方米
仿古建筑中式祠堂設計圖紙及外觀效果圖
占地:546平方米
小L型新款二層別墅設計圖,復式客廳旋轉樓梯,14米乘13米
占地:182平方米
240平農村二層自建別墅設計圖紙,帶你體驗家的溫馨
占地:240平方米
農村二層樓建房造型圖及全套施工圖紙,占地110平米左右,帶地下
占地:110平方米
一層合院中式小別院設計圖,白墻灰瓦,愜意十足!
占地:219平方米
新款240平方米三層雙拼別墅設計圖,歐式兄弟雙拼圖片
占地:240平方米
農村四層樓房外形設計圖,主臥配有陽臺和衣帽間還有衛生間
占地:126平方米
100來平復式旋轉樓梯二層簡歐別墅設計圖,戶型實用
占地:101.523平方米
三層獨棟別墅設計圖紙帶效果圖,全套施工方案(建筑圖+結構圖
占地:144平方米
120平米簡單實用型農村小別墅設計圖,二層屋頂為全露臺,小開間
占地:120平方米
農村120平米兩層樓的房子設計圖,外觀新穎
占地:120平方米
帶開放式車庫二層農村自建別墅設計方案,造價僅15萬
占地:89.412平方米
帶獨立廚房的二層自建房設計圖,大戶型方案
占地:233平方米
帶車庫三間復式三層樓房設計圖,外觀精致、大方
占地:150平方米
樓中樓客廳挑高二層別墅設計圖,復式別墅方案推薦
占地:122平方米
農村三層兄弟雙拼別墅設計圖及效果圖片,14X12米自建戶型
占地:154平方米
客廳中空的三層豪華小別墅設計圖,時尚靚麗,鄉下建一棟有面子
占地:171.25平方米
回老家蓋房就選這款新中式一層設計,16乘8米大小正合適
占地:130.1平方米
推薦:10套新農村自建房設計圖,2026年最新設計
閱讀次數:4825737次
100套鄉村別墅圖片大全,2026年最新設計
閱讀次數:2492203次
6款農村蓋一層平房的設計圖,10萬元就能建起來
閱讀次數:1852637次
這11個一層農村自建房別墅火爆了朋友圈!我最喜歡戶型十!你呢
閱讀次數:750268次
農村6萬元建一層小別墅圖,你敢相信嗎
閱讀次數:567686次
農村5萬塊就能自建房,6套普通房子設計圖分享,你沒看錯!
閱讀次數:419410次
8套農村漂亮三間平房圖片,非常適合在農村修建!
閱讀次數:411197次
農村自建房化糞池怎么做?附方案及施工過程
閱讀次數:391783次
農村一層三間平房設計圖,告別土氣養老房,讓人忍不住點贊
閱讀次數:350581次
新農村二層樓房圖片造價12萬,挑一套回家建房吧!
閱讀次數:349126次
