
|
很多人以為只要是建一套別墅就會花費很多很多的錢,但是實際情況并不是這樣的。花錢的領域不同、地區不同,最后花出去的總數自然就不一樣了。在城市里建一套別墅,是一般人不敢想象的,但是在農村建一套別墅也不是那么難以接受。農村物價不高,環境優美,如果能在農村有一套房子,真的是坐等升值吧。你有想象過花不到25萬的錢就能建成一套二層農村別墅嗎?現在,小編就讓你看看,什么叫只有你想不到,沒有我找不到。 第一款:
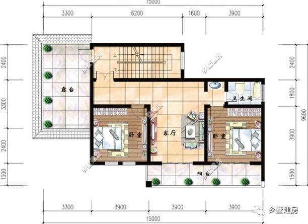
別墅編號:MS1702010 占地尺寸:15X9.6米 占地面積:105.98平方米 建筑面積:209.36平方米 結構類型:磚混結構 建筑層數:2層 主體造價:18萬左右 獨院式的二層半鄉村別墅,外觀造型簡潔大方,簡約而不落俗套,時尚而精致。整體結構簡潔流暢,降低施工難度,是一套性價比高,施工方便,非常合適農村地區建造的鄉村住宅。周邊綠化做得很好,院子里還種有一些綠植。如果想體驗一下種植農作物的生活,還可以在院子里種些蔬菜,純天然,有營養。
一層平面圖:廚房,餐廳,兩個臥室,客廳,衛生間。一樓的兩個臥室可以作為老人房,便于家里老人出行。
二層平面圖:兩個臥室,客廳,衛生間,大露臺。二層與一層的整體構造差不多。夢想中的大露臺,可以舉辦聚會啥的。在大自然的懷抱下開展著自己的活動,看著星空,吹著微風,想想都很美。 第二款:
別墅編號:MS1702035; 占地尺寸:14.6X10.8米; 占地面積:120平方米; 建筑面積:238平方米; 結構類型:框架結構; 建筑層數:2層; 層高:11.586米; 磚紅色的琉璃瓦片覆蓋著不規則的屋頂,與相對沉穩調的黃色相輝映,顯得格外的協調。屋檐處不是中規中矩的墻面打底,而是采用雕刻鏤空,既減輕了承重墻的壓力,又顯得很美觀。四處多面開窗,采光通風效果極佳。門口有階梯,增加房屋的高度,不至于看起來那么矮重。
一層平面圖:車庫,客廳,玄關,餐廳,廚房,陽臺,臥室,兩個衛生間。自己家就有獨立的車庫,再也不擔心停車位的問題了。進門就是客廳,說明這戶人家主人家意識很強。
二層平面圖:五個臥室,兩個陽臺,兩個衛生間。臥室足夠多,再也不擔心家里來人沒地方住了。空間利用率極高。內部裝修圖很加分,來看看吧。
大方簡單的設計,可以作為主人房或者家里男孩子的房屋設計。
客廳色彩搭配鮮活,融洽的非常好,位置擺設恰到好處。
一體式的廚房和餐廳,節省空間卻不顯得擁擠。
愛美的女孩子可以在房間設計一個這種小沙發,公主氛圍立竿見影。家里有小公主的可以入手哦。 圖紙之家-專注農村別墅/自建房設計18年,集合國內200余位經驗豐富的設計師,被評為口碑最好的農村建筑設計公司! |

新款240平方米三層雙拼別墅設計圖,歐式兄弟雙拼圖片
占地:240平方米
最新潮的90平方米三層房屋設計圖 ,古樸典雅又不失時尚
占地:90平方米
二層帶車庫歐式尊貴別墅圖,客廳中空,美觀,大氣,實用
占地:300平方米
農村一層四開間自建別墅,美麗住宅如詩如畫里15米乘10米
占地:142平方米
120平米農村三層房屋設計圖,客廳中空,戶型合理
占地:120平方米
新款私人定制四層歐式獨棟住宅別墅設計圖紙,含外觀效果圖
占地:138平方米左右
簡單實用農村自建房五間一層別墅設計圖,多款戶型
占地:多戶型可選
農村二層L戶型農村別墅!設計圖簡約時尚又大氣,住著超舒適
占地:170.55平方米
農村三層別墅設計圖紙,造價50萬左右,中式風格,沉穩內斂
占地:160平方米
最新歐式三層別墅設計圖紙,超漂亮,預算30到40萬
占地:160平方米
歐式漂亮農村三層自建房設計圖紙,兩個戶型方案可選
占地:多戶型可選
新中式三層樓房設計圖,外觀精致布局也是相當的樸實
占地:140平方米
占地百平三層歐式別墅設計圖,回到家鄉建一棟,大氣美觀有內涵
占地:99.94平方米
170平方米新農村實用的三層雙拼設計圖紙,帶公用堂屋!
占地:173.62平方米
超實用的農村一層別墅設計圖,經濟實惠養老自住都不錯,
占地:128.35平方米
新中式二層農村別墅設計圖紙及外觀圖,面寬15米左右
占地:148.86平方米
鄉下二層樓房住宅設計圖紙及效果圖,農村二層小洋樓
占地:140平方米
114平方米農村四層別墅設計圖紙及效果圖,11X11米
占地:114平方米
實用三層新農村住宅設計圖,鄉村別墅設計圖(含外觀效果圖)
占地:102.34平方米
自建三層小洋樓設計圖紙,含效果圖,帶車庫
占地:121平方米
推薦:10套新農村自建房設計圖,2026年最新設計
閱讀次數:4825737次
100套鄉村別墅圖片大全,2026年最新設計
閱讀次數:2492203次
6款農村蓋一層平房的設計圖,10萬元就能建起來
閱讀次數:1852637次
這11個一層農村自建房別墅火爆了朋友圈!我最喜歡戶型十!你呢
閱讀次數:750268次
農村6萬元建一層小別墅圖,你敢相信嗎
閱讀次數:567686次
農村5萬塊就能自建房,6套普通房子設計圖分享,你沒看錯!
閱讀次數:419410次
8套農村漂亮三間平房圖片,非常適合在農村修建!
閱讀次數:411197次
農村自建房化糞池怎么做?附方案及施工過程
閱讀次數:391783次
農村一層三間平房設計圖,告別土氣養老房,讓人忍不住點贊
閱讀次數:350581次
新農村二層樓房圖片造價12萬,挑一套回家建房吧!
閱讀次數:349126次
