
|
現在農村建房,一層、二層、三層,甚至聯排別墅都有,不過若說最經濟實用還是二層自建房,既合理利用了空間,住起來也比較舒適,造價更是非常經濟。下面給大家精選3套實用類型的二層別墅,隨便建一套你就是人生贏家。 戶型1
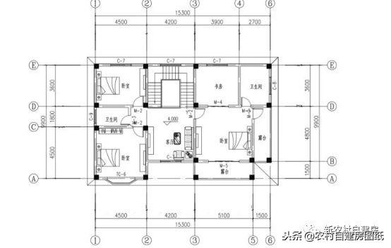
外墻配色清新雅致,又不失活潑明快。四面多窗設計,充分保證了屋內的采光與通風,入戶階梯,視野更加開闊,外檐擴展形成內廊,方便農村人擺放花花草草和零碎物件。 房屋基本信息: 開間:15.3米 進深:9.9米 占地面積:133.15平方米 建筑面積:266.3平方米 主體造價:25萬
一層:門廳、客廳、餐廳、廚房、2間臥室、公衛、
二層:2間臥室、臥室(帶衛生間、露臺)公衛、書房、客廳 戶型2
不算嚴格意義上的兩層別墅,洋紅色屋頂和大露臺的組合,相得益彰。白色真石漆和深色文化石的搭配,讓房屋沉穩內斂又不單調。二樓右側的全開窗,采光充沛,而且設計感極強。 房屋基本信息: 開間:12.4米 進深:11.7米 占地面積:151.18平方米 建筑面積:319.91平方米 主體造價:25—30萬
一層:客廳、主臥(帶衛生間)、廚房、餐廳、公衛、臥室、工具房、車庫
二層:3間臥室、臥室(帶衛生間、陽光房)公衛、書房、2個露臺、客廳 戶型3
靛藍色屋頂洋氣又精致,層次分明的屋頂增強了視覺效果,多窗的設計,充分保障了室內通風,同時又兼具美觀。內部布局合理,舒適實用,非常適合農村家庭建造。 房屋基本信息: 開間:12.6米 進深:10.1米 占地面積:111.3平方米 建筑面積:253平方米 主體造價:24萬
一層:客廳、餐廳、臥室、廚房、衛生間
二層:臥室(帶陽臺)、2間臥室、陽臺、衛生間 鄉下建房不是用來攀比的,要根據自己的條件來,二層自建房既避免三層、四層沒必要的浪費,又不用像一層一樣功能過于單調,合適家庭需求的就是最好的。 圖紙之家-專注農村別墅/自建房設計18年,集合國內200余位經驗豐富的設計師,被評為口碑最好的農村建筑設計公司! |

帶中式小院的二層仿古別墅設計圖,小戶型自建房設計,外觀美極
占地:82.94
高顏值農村二層別墅設計圖,顏值在線造價不高,建房好選擇!
占地:216.93平方米
中式二層三合院設計圖紙含外觀效果圖片,大氣又實用
占地:216.04平方米
精致簡歐一層別墅設計圖,經典大氣百看不厭
占地:139.57平方米
二層新農村自建房設計圖,帶外觀效果圖
占地:140平方米
130平帶閣樓兩層半別墅房屋設計圖,含外觀效果圖
占地:130平方米
方正對稱二層農村自建別墅施工圖,經濟實用舒適大氣
占地:129.6平方米
110平方米農村三層復式房屋施工圖,通透時尚,低調又奢華
占地:107.98平方米
小戶型三層別墅房屋設計圖紙,占地80多平米,麻雀雖小五臟俱全
占地:80平方米
現代四合院別墅設計圖紙,二層戶型,外觀時尚漂亮
占地:287.97平方米
簡單的復式住宅設計圖,客廳挑高,帶外觀效果圖片
占地:148平方米
150平方米農村二層房屋建筑設計圖,15.2x9.4米
占地:148平方米
堂屋共用五間雙拼別墅設計圖,適合二兄弟的二層別墅
占地:292.5平方米左右
農村三合院設計圖及效果圖,自建三合院圖紙
占地:470平方米
經典三層歐式造型別墅圖紙,功能房豐富,挑空客廳
占地:180平方米
面寬22米的高端三層自建房別墅設計圖,功能齊全
占地:222.47平方米
帶堂屋設計一層三合院設計圖,白墻黛瓦古韻悠悠,比高層舒服接
占地:179.37平方米
經典小戶型雙拼二層新農村房屋住宅設計圖,含效果圖
占地:80平方米
180平米農村二層小別墅設計圖,外觀漂亮,帶露臺
占地:180平方米
2026帶車庫三層雙拼別墅房屋設計圖,配色淡雅低調
占地:224平方米
推薦:10套新農村自建房設計圖,2026年最新設計
閱讀次數:4825737次
100套鄉村別墅圖片大全,2026年最新設計
閱讀次數:2492203次
6款農村蓋一層平房的設計圖,10萬元就能建起來
閱讀次數:1852637次
這11個一層農村自建房別墅火爆了朋友圈!我最喜歡戶型十!你呢
閱讀次數:750268次
農村6萬元建一層小別墅圖,你敢相信嗎
閱讀次數:567686次
農村5萬塊就能自建房,6套普通房子設計圖分享,你沒看錯!
閱讀次數:419410次
8套農村漂亮三間平房圖片,非常適合在農村修建!
閱讀次數:411197次
農村自建房化糞池怎么做?附方案及施工過程
閱讀次數:391783次
農村一層三間平房設計圖,告別土氣養老房,讓人忍不住點贊
閱讀次數:350581次
新農村二層樓房圖片造價12萬,挑一套回家建房吧!
閱讀次數:349126次
