
|
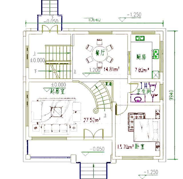
農村自建房自古就是大事,就像城里買房子一樣,一家人要反復商量,還要與鄰里溝通,跟村上申請宅基地,因此在建房之前一定要多看看別人的自建房戶型設計,聽聽別人的建房經驗,盡量讓自己從設計,施工,資金上充分準備好,建造一棟舒適,實用,氣派的房子。今天樂美宅別墅分享2款占地尺寸約10x9米左右三層農村別墅設計圖,大露臺坡屋頂設計,大家可以挑選一套喜歡的! 第一套 帶車庫層三層別墅設計效果圖室內平面布局圖 圖紙介紹 開間:10.64米 進深:9.94米 占地面積:101平方米 總建筑面積:338.5平方米 層數:三層 結構形式:磚混結構 主體造價:25萬 建筑高度:12.4米
該戶型占地100平米左右,一層下面設有車庫層,可作為車庫、儲藏間,改善室內空間不足的問題。提高的入戶階梯,更顯得房屋的莊重感,下雨時,雨水也不會飄入一層內。二層的戶型陽臺以及落地窗的設計非常有創意,不同樣式的窗戶設計,不再單調,視覺感官良好! 功能設計
一層平面圖 車庫層:車庫、儲藏間、樓梯 一層:起居室、廚房、餐廳、臥室、衛生間
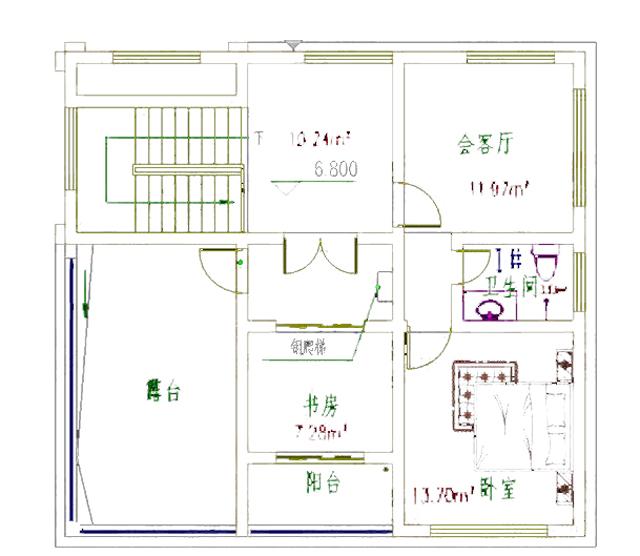
二層平面圖 二層:會客廳、2臥室、衛生間、陽臺
三層平面圖 三層:會客廳、臥室、書房、陽臺、露臺 第二套 25萬左右三層農村自建房設計圖 圖紙詳情 層數: 三層 結構形式: 磚混結構 主體造價:20-25萬 開間:10.2米 進深:9.9米 占地面積: 105.86平方米 建筑面積:289.48平方米
該戶型規整大氣,外墻采用淺黃色真石漆裝飾,搭配純凈的白色,屋頂寶藍色,有L型大露臺,室內共設有9間臥室,滿足農村大家庭居住需求 平面布局圖:
一層平面圖 一 層:門廳、客廳、餐廳、廚房、衛生間、臥室x2
二層平面圖 二 層:客廳(帶陽臺)、臥室x4、衛生間
三層平面圖 三 層:臥室x3、露臺、衛生間
圖紙之家-專注農村別墅/自建房設計18年,集合國內200余位經驗豐富的設計師,被評為口碑最好的農村建筑設計公司! |

120平方米三層歐式別墅設計圖,進門就是旋轉樓梯
占地:119.76平方米
140平米一層農村自建房設計圖,好看不貴簡約耐看
占地:141.12平方米
170平方米新農村現代樓中樓三層別墅設計施工圖紙及效果圖
占地:170平方米
15萬左右一層農村自建房設計圖,一家住剛剛好
占地:131.33平方米
新農村兩層樓房設計圖,占地110平米,戶型簡單實用
占地:110平方米
獨棟經濟型二層小別墅房屋設計圖,含全套施工圖效果圖
占地:多種戶型
12米寬三間二層農村自建房設計圖,左右對稱布局緊湊看著就舒服
占地:144.94平方米
農村三層別墅設計圖紙,造價50萬左右,中式風格,沉穩內斂
占地:160平方米
農村18萬元二層小樓圖,占地120平面,戶型緊湊合理
占地:120平方米
五間二層別墅設計圖紙,樓梯設計的無比大氣
占地:300平方米
新農村三層自建房屋設計圖,含外觀圖片
占地:136平方米
背面不開窗二層別墅設計圖,對稱設計簡單好看,眾多建房者的選
占地:183.79平方米
鄉村中式四合院二層別墅設計圖,中式韻味十足
占地:223平方米左右
120平方米農村經典二層房屋設計圖紙,造型精致好看
占地:121平方米
獨棟三層樓房設計圖紙及效果圖,農村蓋房推薦
占地:125平方米
開間14米!農村養老一層別墅神戶型,爸媽住得安心,施工隊狂贊太
占地:160.86平方米
小戶型徽派建筑別墅設計方案大全,三層別墅設計圖推薦
占地:95平方米
140平方米現代偏中式實用型三層房屋設計圖紙,新農村建房推薦
占地:142平方米
小戶型經濟型三層雙拼小別墅施工設計圖紙,單戶100平內
占地:150平方米
面寬不到8米的農村二層半別墅建筑圖紙及效果圖
占地:96平方米左右
推薦:10套新農村自建房設計圖,2026年最新設計
閱讀次數:4825737次
100套鄉村別墅圖片大全,2026年最新設計
閱讀次數:2492203次
6款農村蓋一層平房的設計圖,10萬元就能建起來
閱讀次數:1852637次
這11個一層農村自建房別墅火爆了朋友圈!我最喜歡戶型十!你呢
閱讀次數:750268次
農村6萬元建一層小別墅圖,你敢相信嗎
閱讀次數:567686次
農村5萬塊就能自建房,6套普通房子設計圖分享,你沒看錯!
閱讀次數:419410次
8套農村漂亮三間平房圖片,非常適合在農村修建!
閱讀次數:411197次
農村自建房化糞池怎么做?附方案及施工過程
閱讀次數:391783次
農村一層三間平房設計圖,告別土氣養老房,讓人忍不住點贊
閱讀次數:350581次
新農村二層樓房圖片造價12萬,挑一套回家建房吧!
閱讀次數:349126次
