
|
雖然有不少的人在農村建中式風格的房子,但是歐式風格才是一直以來的主流傾向,你會發現,一個村里面,除非是統一的規劃,幾乎百分之就是以上的別墅建的都是歐式風格。 歐式別墅一:建房尺寸為12.48×18.82米,框架結構,墻面用真石漆和一些構件來裝飾,屋面開有老虎窗,蓋以一層的琉璃瓦。
平面布局說明:一層設有一室兩廳一廚兩衛,主臥給爸媽住帶獨衛很方便,另有一個休閑娛樂室,戶型是通透的,客廳是挑空的;二層配有兩間臥室,還設有書房和衣帽間,室外是觀景陽臺;三層配有多間臥室和書房,室外設以兩個露臺。
歐式別墅二:建房尺寸為15×11.8米,框架結構,墻面用真石漆裝飾,屋面蓋以藍色的琉璃瓦。
平面布局說明:一層設有兩室兩廳一廚兩衛,臥室之間設一公衛較方便,客廳是挑空的,直角樓梯的設計;二層配有三間臥室一個書房,主臥帶衣帽間、獨衛和陽臺;三層配有一間臥室和健身房,室外設以觀景露臺滿足晾曬需要。
這么氣派的房子要是你家的,是不是很拉分呢? 圖紙之家-專注農村別墅/自建房設計18年,集合國內200余位經驗豐富的設計師,被評為口碑最好的農村建筑設計公司! |

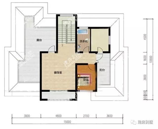
130平米最新氣派農村四層樓房設計圖,四層樓房圖片
占地:130平方米
農村一層四間平房設計圖方案,含外觀圖片,預算10萬
占地:190平方米
新農村三拼別墅三戶連體別墅設計圖,設計新穎美觀
占地:380平方米
高端大氣的三層新中式合院別墅設計圖紙及外觀效果圖
占地:203.4平方米
大氣自建三層雙拼別墅戶型圖方案,完美的戶型就是它
占地:287平方米
8.5×12米四層歐式房屋設計圖紙,占地100平,落地窗中嵌入了雕花
占地:100平方米
歐式農村三層小別墅設計圖,占地120平米,客廳中空,空間利用率
占地:120平方米
氣派的帶旋轉樓梯三層別墅房屋設計圖,戶型很好
占地:150平方米
12x13米豪華三層農村別墅設計圖,宅基地上的貴族人生
占地:156平方米
帶架空層的農村一層小別墅設計圖,大氣穩重又很實用
占地:123.5平方米
農村自建二層樓房設計圖及效果圖,二層房屋圖推薦
占地:105平方米
12×11米兩層農村建房圖紙,農村建房最佳戶型,簡單的風格
占地:140平方米
農村一層中式別墅設計圖,經典大氣,布局舒適,面寬20米
占地:192.92平方米
鄉下三層大氣房子設計圖,外觀挺高大上的,主體29萬多
占地:132.48平方米
農村2026新式好看又簡單的二層樓房設計圖,外形美觀,家用足夠
占地:200平方米
現代風格三拼別墅設計圖紙,三兄弟回村自建房戶型
占地:324平方米
190平方米新農村三層(二層半)雙拼房屋設計圖紙,兄弟合建
占地:192平方米左右
四合院別墅設計效果圖及平面圖,全套施工圖紙
占地:220平方米
140平方米清新別致新農村兩層房屋設計圖紙大全12x13米
占地:140平方米
160平方米農村三層別墅CAD設計圖紙及效果圖,13.7x12.6米
占地:160平方米
推薦:10套新農村自建房設計圖,2026年最新設計
閱讀次數:4825737次
100套鄉村別墅圖片大全,2026年最新設計
閱讀次數:2492203次
6款農村蓋一層平房的設計圖,10萬元就能建起來
閱讀次數:1852637次
這11個一層農村自建房別墅火爆了朋友圈!我最喜歡戶型十!你呢
閱讀次數:750268次
農村6萬元建一層小別墅圖,你敢相信嗎
閱讀次數:567686次
農村5萬塊就能自建房,6套普通房子設計圖分享,你沒看錯!
閱讀次數:419410次
8套農村漂亮三間平房圖片,非常適合在農村修建!
閱讀次數:411197次
農村自建房化糞池怎么做?附方案及施工過程
閱讀次數:391783次
農村一層三間平房設計圖,告別土氣養老房,讓人忍不住點贊
閱讀次數:350581次
新農村二層樓房圖片造價12萬,挑一套回家建房吧!
閱讀次數:349126次
