
|
可能同一個鎮子里面的兩個不同的村莊,在一些風俗上面都會有些差異,如果距離相隔的遠的話,那么兩者之間的差異應該是更大的,但是在很多方便,也會保留一定的共同點,江西和湖北就是靠著的,建房上,都喜歡建這兩棟別墅。 第一棟:建房尺寸為11.9×14米,墻面用面磚和真石漆裝飾,還用到了一些裝飾構件來輔助裝飾,屋面蓋以紅瓦。
平面布局說明:一層設有一室兩廳一廚一衛,客廳不做復式,空間夠大夠寬敞,配以一個休閑棋牌室供娛樂的;二層五間臥室和一個室內起居室的設計,該層空間使用率很高,室外設以陽臺;三層配以一間臥室備用,剩余空間都是室內外的休閑娛樂場所。
第二棟:建房尺寸為11.7×13.9米,墻面用面磚和文化石裝飾,色調比較的新穎,屋面所用琉璃瓦色調與文化石顏色相近。
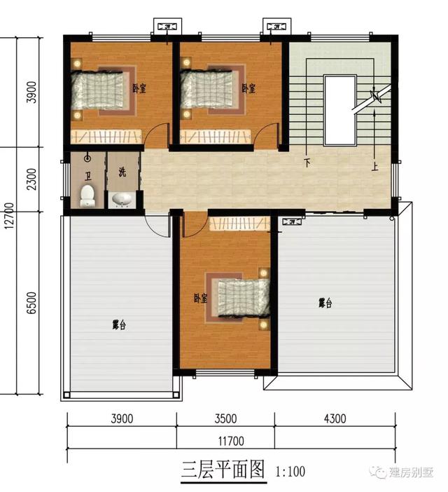
平面布局說明:一層設有入戶的堂屋,基本的生活配套設施和一個車庫;二層設有一間帶獨衛的主臥室和一間次臥室,另外還有書房和娛樂室、家庭廳等,室外配以陽臺走廊;三層配有三間臥室備用,室外是雙露臺。
氣勢不僅江西和湖北的網友愛建這兩款戶型,其他很多省份的網友也在建,因為好戶型,從來不缺欣賞者。 圖紙之家-專注農村別墅/自建房設計18年,集合國內200余位經驗豐富的設計師,被評為口碑最好的農村建筑設計公司! |

農村三間一層別墅設計圖,經濟實用還好看
占地:139.56平方米
經濟實用型二層農村小別墅設計圖,造價25萬內,外觀看起來時尚
占地:120平方米
農村4間3層樓房設計圖,帶車庫,挑空客廳,坡屋頂設計
占地:160平方米
大二間三層別墅戶型圖,三層新農村自建房設計圖紙及效果圖
占地:116平方米
小戶型現代新農村三層房屋設計建筑圖及效果圖
占地:108平方米
田園輕奢三層帶露臺的鄉村別墅設計圖紙,11x10米
占地:106.64平方米
120平面三層鄉村樓房設計圖及效果圖,歐式風格
占地:120平方米
獨棟別墅設計戶型圖帶外觀效果圖,雙向樓梯設計
占地:155平方米
二層半別墅設計圖,占地150平米,帶露臺,地中海風格,內部布局
占地:150平方米
新農村三層房屋cad建筑設計圖紙,磚混結構
占地:138平方米
帶獨立廚房的二層自建房設計圖,大戶型方案
占地:233平方米
農村一層大別墅施工圖,18米乘12米,讓生活充滿儀式感
占地:216平方米
農村建房的“面子天花板”!新中式簡歐結合三層別墅,進門就被
占地:225.98平方米
架空層設計的農村自建房別墅設計圖,既做車庫又做儲物間,太實
占地:230.62平方米
105平一層簡單農村別墅設計圖,造價8萬左右
占地:105平方米
兩層三間農村房屋設計圖,新農村住宅方案推薦
占地:155平方米
150平米一層農村別墅設計圖,養老自住都很不錯,關鍵是造價也很
占地:156平方米
2026新款三層小別墅設計圖,占地150平米,帶地下室
占地:150平方米
農村實用三層樓房圖片,占地140平米左右,客廳中空
占地:140平方米
三層帶車庫樓中樓建房別墅圖紙,占地130平米左右,戶型室內布局
占地:130平方米
推薦:10套新農村自建房設計圖,2026年最新設計
閱讀次數:4825737次
100套鄉村別墅圖片大全,2026年最新設計
閱讀次數:2492203次
6款農村蓋一層平房的設計圖,10萬元就能建起來
閱讀次數:1852637次
這11個一層農村自建房別墅火爆了朋友圈!我最喜歡戶型十!你呢
閱讀次數:750268次
農村6萬元建一層小別墅圖,你敢相信嗎
閱讀次數:567686次
農村5萬塊就能自建房,6套普通房子設計圖分享,你沒看錯!
閱讀次數:419410次
8套農村漂亮三間平房圖片,非常適合在農村修建!
閱讀次數:411197次
農村自建房化糞池怎么做?附方案及施工過程
閱讀次數:391783次
農村一層三間平房設計圖,告別土氣養老房,讓人忍不住點贊
閱讀次數:350581次
新農村二層樓房圖片造價12萬,挑一套回家建房吧!
閱讀次數:349126次
