項目名稱:河北衡水田園酒店
項目地點:河北衡水
建筑面積:1547.5㎡
基地面積:1200㎡
建筑尺寸:35.2m×30m
占地面積:1056㎡
圖紙編號:809
戶型概況:34室1廳16衛1廚
建筑結構:框架結構
主創建筑師:錢帥&李博文
土建參考造價:250萬元(不含室內裝修費用)
項目概況
△總平面示意圖
該項目所在宅基地位于一個面積十分充足的園區內,北側臨街,東側有一條水渠,南側和西側均為一望無際的田野,景色怡人。
該項目設計主要作為酒店使用,滿足業主平日的商業運營需要。項目前期業主提出的要求較少,溝通時僅提出了功能需要以及希望設計盡量多房間的需求。設計師根據業主提出的需求,將項目最終設計為四方規整的現代風格多功能建筑。
圖紙設計
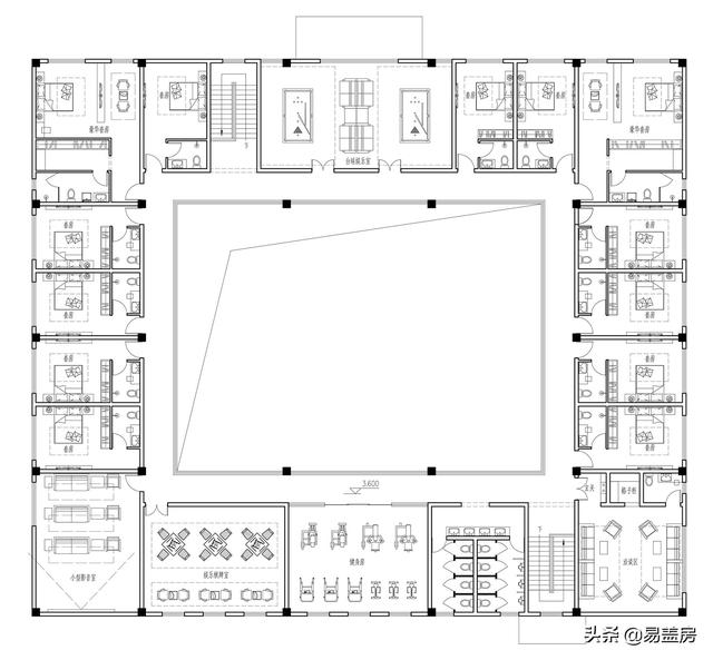
△一層平面圖
一層的功能定位在于餐飲,由于業主對于一層平面布置上沒有散座的需要,因此設計師考慮室內的用戶體驗,將中庭設計為了較大面積的室內景觀。
除了大量的餐飲包間和必不可少的多功能廚房、接待前臺外,一層在入口大廳位置還設計了一個特色農產品展示區,使得商業功能體驗更為豐富;同時,設計師在西側兩間包房內還設計了開放式的陽臺,用于體驗西側秀美的稻田風光。
考慮到建筑消防安全的要求,設計師將樓梯設計在對角線的兩端,充分保障了人員在遇到緊急情況時的疏散需要。
△二層平面圖
二層的功能定位則主要在于住宿,設計師在每個客房內均設計了私衛,根據不同的房間大小,采取了兩種不同的私衛設計,面積較大的采取干濕分離,提升了衛生間的實際使用體驗。
考慮到酒店用途的綜合性,設計師在二層還設計了更多的活動功能空間,比如臺球室、棋牌室、影音室、健身房、商務區等,使得商業運營的功能更為豐富。
二層連廊內側的墻壁采用玻璃幕墻,既能讓住戶在二層看到一層中庭的精致景觀,也能充分隔開一層餐飲制造的喧囂,保證二層的居住體驗。
造型設計
△人視圖
建筑整體為現代風格,考慮到造型上的四方規整特點,設計師將立面盡量做到在簡潔的同時融入一些精巧裝飾。
四周立面通過棕色和米黃色真石漆強化視覺感受,入口處的石碑以及外門廳的設計強化了客戶進入建筑的形式感。
△鳥瞰圖
△鳥瞰圖
設計師在屋頂設計中考慮到中庭景觀的采光,同時考慮平屋頂在造型上的特點,因此設計師借鑒了陽光房的做法,在屋頂上方設計了一塊突出的玻璃屋頂。這樣的屋頂設計既確保了室內光線的充足,也盡量改善了屋頂形式上的單調。
△人視圖
△人視圖
考慮到鋁合金窗框在立面中材質和造型上的單調,設計師在立面上通過一些白色的懸挑窗框作為裝飾點綴,豐富視覺感官的同時也滿足了房間空間外機的懸掛空間需求,確保了外立面在裝完空調后的視覺整潔性。
△東立面圖
△西立面圖
△南立面圖
△北立面圖







































