
|
這套二層農村自建房最大的特點,就是一二層的走廊、陽臺設計,白色寶瓶欄桿給人一種大氣優雅的設計感,外墻采用復古耐看的文化石和清淺的淡黃色墻漆裝飾,屋頂坡面設計,室內設有四間臥室,有臥室套房,一樓還有寬敞對的客廳,現代時尚。
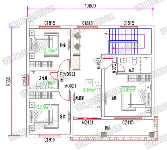
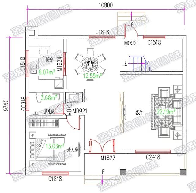
效果圖 圖紙詳情 層數: 二層 結構形式:磚混結構 開間:10.8米 進深:9.36米 占地面積:95.99平方米 總建筑面積:198.96平方米 建筑高度:9.36米 主體造價:20萬 室內布局展示
一層平面圖
二層平面圖 圖紙之家-專注農村別墅/自建房設計18年,集合國內200余位經驗豐富的設計師,被評為口碑最好的農村建筑設計公司! |

一二層都帶廚房餐廳的獨棟二層別墅設計圖,帶雙廚房
占地:143.68平方米
12x12農村三層別墅設計圖,自建房屋推薦戶型
占地:148平方米
驚艷全村的三層別墅設計圖,12×16米美觀大氣布局超合理
占地:179.8平方米
面寬20米大氣的農村二層別墅設計圖,戶型帶車庫和土灶房設計
占地:250.85平方米
130平方米現代簡約農村兩層樓房施工設計圖紙帶外觀圖
占地:126平方米
新農村二層帶露臺經濟型小別墅設計圖紙,含外觀效果圖
占地:120平方米
110平左右二層小洋樓設計圖,含效果圖片
占地:108平方米
鄉下三層大氣房子設計圖,外觀挺高大上的,主體29萬多
占地:132.48平方米
12×11米兩層農村建房圖紙,農村建房最佳戶型,簡單的風格
占地:140平方米
120平方房子設計圖,農村120平建房設計圖推薦
占地:122平方米
經典三層農村房屋設計圖紙,占地100平米左右,外觀典雅精致,內
占地:100平方米
80平農村房屋設計圖,小戶型自建房三層別墅推薦
占地:80平方米
帶地下室一層別墅設計方案,功能布局齊全實用
占地:256.5平方米
大氣豪華四層別墅設計圖紙,占地180平米左右
占地:180平方米
20萬左右普通農村房子設計圖,二層簡約小別墅
占地:140平方米
復式三層帶車庫簡歐小別墅設計圖,農村三層房屋設計圖
占地:126平方米
農村一層小別墅設計圖,經濟大氣,16米乘9米
占地:124.12平方米
三層半復式別墅設計方案,全套設計圖+效果圖
占地:160平方米
最新小別墅設計圖,復式三層,外觀非常漂亮
占地:158平方米
最新設計的三層農村別墅圖紙,帶車庫,帶露臺,占地150平米左右
占地:150平方米
推薦:10套新農村自建房設計圖,2026年最新設計
閱讀次數:4825737次
100套鄉村別墅圖片大全,2026年最新設計
閱讀次數:2492203次
6款農村蓋一層平房的設計圖,10萬元就能建起來
閱讀次數:1852637次
這11個一層農村自建房別墅火爆了朋友圈!我最喜歡戶型十!你呢
閱讀次數:750268次
農村6萬元建一層小別墅圖,你敢相信嗎
閱讀次數:567686次
農村5萬塊就能自建房,6套普通房子設計圖分享,你沒看錯!
閱讀次數:419410次
8套農村漂亮三間平房圖片,非常適合在農村修建!
閱讀次數:411197次
農村自建房化糞池怎么做?附方案及施工過程
閱讀次數:391783次
農村一層三間平房設計圖,告別土氣養老房,讓人忍不住點贊
閱讀次數:350581次
新農村二層樓房圖片造價12萬,挑一套回家建房吧!
閱讀次數:349126次
