
|
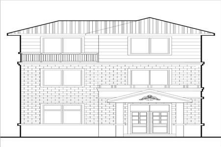
城市的房價可謂是一年高過一年,讓人望而生怯,所以不少人選擇回農村建房子,但是農村建房的成本也在逐漸上漲,要想建個居住環境舒適,造價又較低的農村自建房非常的不容易,對此小編特意給大家找來了一款土建造價在30萬以內的三層農村自建房,感興趣的朋友就和小編一起往下看吧。 房屋效果圖
建筑層數:三層 建筑面積:200.0㎡ 土建造價:22.0萬 建筑尺寸:面寬8.5米 進深11.0米 建筑戶型:4室3衛2儲物室1廳1起居室 建筑設計亮點分析: 1、該棟三層農村自建房占地面積不大,土建造價在30萬以內,室內空間布局合理,共設有四個臥室,一家三口居住在此也是錯錯有余的,要是家里來人客人,還能提供出居住空間。
2、該棟三層農村自建房的建筑造型方正大氣,一、二層的建筑外立面以小型深色磚塊為主,錯落有致,三層配有白色的長條形的磚塊,顏色對比和造型對比強烈,讓建筑外立面的造型更為凸顯。
3、該棟三層農村自建房的入戶門正對著客廳,客廳方正開闊,空間視覺效果的延伸感好。 4、一層西南側的位置設有一個老人臥,南向采光,冬暖夏涼,與客廳相鄰,便于家中老人出入。
5、一層廚房位于西北側,呈L型,流線完美,可以輕松容納兩個人幫廚,還設有一個柴火灶,閑時用柴火灶做飯也是別有一番風味。廚房還設有單獨的出入口,便于家禽和蔬菜的粗處理。
6、該棟三層農村自建房的衛生間均設在樓梯旁,干濕分離的設計不僅讓居住者使用更方便,還能延長衛生間家具家電的使用壽命。
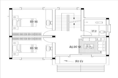
7、該棟三層農村自建房一層將樓梯下方的空間安全利用,設置成了一個儲物間,可以儲存農具或是雜物。 8、二層設有兩個臥室,還有一個起居室,讓居住者有一個睡前的交流空間,起居室與陽臺相連,延長了空間,還讓室內的采光和通風更好。
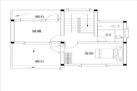
9、三層設有一個臥室,一個儲藏間,儲藏室可以靈活運用,未放置物品就可作為活動室,它與兩個曬臺相連,觀景效果極佳。 10、三層的兩個曬臺一大一小,小的曬臺可以作為晾曬區,大露臺可以作為燒烤晚會,聚會的場所,或是擱置一把躺椅,在此處休憩。
11、該棟三層農村自建房屋頂采用坡屋頂,排水快,就算是在多雨的南方農村地區,也不怕農村自建房積水。
關于這棟造價在30萬以內的三層農村自建房的介紹,在這里就告一段落了, 圖紙之家-專注農村別墅/自建房設計18年,集合國內200余位經驗豐富的設計師,被評為口碑最好的農村建筑設計公司! |

簡單農村自建二層樓房設計圖,南北通透
占地:140平方米
140平四層復式別墅房屋設計圖,帶外觀效果圖
占地:140平方米
農村27萬二層自建別墅設計圖,占地140平米左右,戶型極好
占地:140平方米
簡單大氣的農村二層樓設計圖,二層歐式農村別墅設計圖
占地:180平方米
160-170平方米二層自建別墅設計CAD圖紙帶效果圖,田園風
占地:167平方米左右
20萬農村二層小洋樓設計圖,帶鍋爐房,漂亮簡單實用
占地:165平方米
現代二層農村別墅全套設計圖,大旋轉露臺+超大中空客廳
占地:133平方米
帶架空層的農村二層別墅設計方案,造型大氣漂亮
占地:176平方米
古典韻味的四層房屋設計圖,占地140平米左右,這樣的外觀配上紅
占地:140平方米
110平米一層小別墅設計方案,布局四室兩廳一廚兩衛
占地:110.5平方米
南方新農村三層樓房設計圖紙,帶房屋效果圖
占地:110平方米
新中式農村自建房三層設計圖,外觀布局均滿分
占地:142.18平方米
130-140平方米簡歐風格二層別墅設計施工圖紙,簡約大氣
占地:137平方米左右
100平復式三層別墅房屋設計圖,客廳挑高,采光好,臥室多
占地:100平方米
經典四合院別墅設計圖,復式挑空客廳讓四合院更高端
占地:175平方米左右
四層豪華歐式別墅自建樓房設計圖紙,帶效果圖和全套施工圖
占地:300平方米
大戶型美觀一層平房自建房設計圖,面寬19米左右
占地:245.1平方米
帶大露臺二層現代風別墅設計圖,去繁從簡,好看不過時
占地:122.25平方米
占地90平新中式經濟二層小別墅自建房設計圖,僅15萬
占地:89.3平方米
2026最受歡迎的三層農村小別墅設計圖紙,占地155平方米
占地:155平方米
推薦:10套新農村自建房設計圖,2026年最新設計
閱讀次數:4825737次
100套鄉村別墅圖片大全,2026年最新設計
閱讀次數:2492203次
6款農村蓋一層平房的設計圖,10萬元就能建起來
閱讀次數:1852637次
這11個一層農村自建房別墅火爆了朋友圈!我最喜歡戶型十!你呢
閱讀次數:750268次
農村6萬元建一層小別墅圖,你敢相信嗎
閱讀次數:567686次
農村5萬塊就能自建房,6套普通房子設計圖分享,你沒看錯!
閱讀次數:419410次
8套農村漂亮三間平房圖片,非常適合在農村修建!
閱讀次數:411197次
農村自建房化糞池怎么做?附方案及施工過程
閱讀次數:391783次
農村一層三間平房設計圖,告別土氣養老房,讓人忍不住點贊
閱讀次數:350581次
新農村二層樓房圖片造價12萬,挑一套回家建房吧!
閱讀次數:349126次
