
|
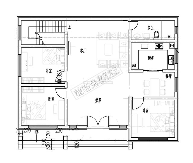
假兩層的新農村自建房別墅,如果只想建一層別墅這是絕佳戶型! 開間12.76米,進深9.76米 一層面積121平米 建筑面積242平米 一層層高3.6米,總高度7.7米
![]() 圖紙之家-專注農村別墅/自建房設計18年,集合國內200余位經驗豐富的設計師,被評為口碑最好的農村建筑設計公司! |

一層半中式合院別墅設計圖,帶配房,有庭有院有品位
占地:135平方米左右
農村一層雙拼別墅設計方案,豐富的室內空間配置,滿足您的生活
占地:358.46平方米
140平三層復式別墅設計圖及外觀效果圖
占地:140平方米
三層農村小別墅設計圖,一層帶商鋪,占地110平米,經濟實用
占地:110平方米
130平方米復式三層別墅房屋設計圖,含外觀效果圖
占地:130平方米
農村15萬元二層小樓設計圖,造價低,簡潔、好看
占地:90平方米
2026年最新款四間二層別墅設計圖,15米乘13米
占地:171.01平方米
新款農村三拼三戶別墅設計圖及效果圖三層戶型,外觀靚麗新穎
占地:360平方米
農村兩間兩層樓房設計圖,造價15萬左右,獨立的廚房設計,干凈
占地:95平方米
120平方房子設計圖,農村120平建房設計圖推薦
占地:122平方米
80-90平米二層經典小別墅房屋設計圖,左右對稱外觀
占地:88.46平方米
三層新農村住宅設計圖及效果圖,三層樓房設計圖展示
占地:140平方米
四層(三層半)豪華歐式別墅房屋設計圖,外觀高端、大氣
占地:150平方米
16米X12米四開間二層別墅設計圖,造型美觀經濟實用
占地:198平方米
農村新戶型房子設計圖二層,占地120平米,布局實用
占地:120.29平方米
新農村三層房屋cad建筑設計圖紙,磚混結構
占地:138平方米
二層帶架空層的農村別墅設計圖,功能齊全,超越十里八村
占地:130平方米
帶庭院中式二層四合院別墅設計效果圖片,方方正正
占地:404平方米
帶堂屋設計一層三合院設計圖,白墻黛瓦古韻悠悠,比高層舒服接
占地:179.37平方米
帶車庫現代三層樓房設計圖,外觀效果圖時尚、美觀
占地:160平方米
推薦:10套新農村自建房設計圖,2026年最新設計
閱讀次數:4825737次
100套鄉村別墅圖片大全,2026年最新設計
閱讀次數:2492203次
6款農村蓋一層平房的設計圖,10萬元就能建起來
閱讀次數:1852637次
這11個一層農村自建房別墅火爆了朋友圈!我最喜歡戶型十!你呢
閱讀次數:750268次
農村6萬元建一層小別墅圖,你敢相信嗎
閱讀次數:567686次
農村5萬塊就能自建房,6套普通房子設計圖分享,你沒看錯!
閱讀次數:419410次
8套農村漂亮三間平房圖片,非常適合在農村修建!
閱讀次數:411197次
農村自建房化糞池怎么做?附方案及施工過程
閱讀次數:391783次
農村一層三間平房設計圖,告別土氣養老房,讓人忍不住點贊
閱讀次數:350581次
新農村二層樓房圖片造價12萬,挑一套回家建房吧!
閱讀次數:349126次
