
|
豪華大氣農村三層別墅圖紙,帶車庫、露臺,在外拼搏多年總想著衣錦還鄉,但是理想很美好,現實卻殘酷異常。在城市里付了一套房的首付之后,身上的積蓄已經所剩無幾,拿什么歸家呢?如果你的家人、你的故鄉讓你魂牽夢縈,那么就回家建一棟別墅,讓父母安享晚年。就是這么一款別墅帶著茶室、大露臺、書房等,室內設計非常合理,外觀大氣豪華,怎么不叫鄰居羨慕嫉妒恨!
現代別墅簡約時尚、通透大氣的優點表現得淋漓盡致,給人的感官非常棒,不管是色彩搭配還是整體造型方面,都給你眼前一亮的感覺,是一款年輕人都喜歡的小別墅,散發著時尚的魅力。
開間:11.7m 進深:11.5m 占地面積:128平方米左右; 建筑層高:三層;建筑高度:11.3米(含屋頂);
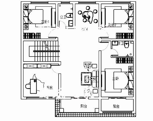
一層平面圖 一層:次臥,公衛,廚房,餐廳,客廳,主臥
二層平面圖 二層:次臥X2,公衛,茶室,書房,客廳,主臥,主衛,陽臺X2
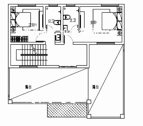
三層平面圖 三層:次臥,公衛,主衛,主臥,露臺X2 圖紙之家-專注農村別墅/自建房設計18年,集合國內200余位經驗豐富的設計師,被評為口碑最好的農村建筑設計公司! |

二層帶車庫歐式尊貴別墅圖,客廳中空,美觀,大氣,實用
占地:300平方米
偏徽派風格民居三層農村住宅設計圖,白墻黛瓦的古雅簡潔
占地:101.01平方米
簡單農村二層自建房子設計圖,主體18萬就能建好,太心動了!
占地:124.53
爆火農村養老房設計:16 米面寬一層戶型,自住養老全拿捏
占地:169.87平方米
100平方米自建三層半別墅設計圖紙,帶地下車庫
占地:100平方米
新中式三層歐式別墅設計圖,盡顯貴族風范,占地135平
占地:134.37平方米
帶柴火房農村一層自建房設計圖,戶型布局接地氣
占地:126.29平方米
復式200平米三層樓房設計圖紙,大露臺還有健身房和書房
占地:200平方米
135平鄉村三層復式樓房設計圖,自建房推薦
占地:135平方米
90平米三層農村房子設計圖,簡單大氣實用
占地:94.28平方米
經典四合院別墅設計圖,復式挑空客廳讓四合院更高端
占地:175平方米左右
帶小院新農村房屋設計圖紙,三層別墅推薦
占地:115平方米
面寬18米二層農村大別墅設計圖,可帶電梯,舒適又實用
占地:138.29平方米
大戶型高端三層別墅設計圖紙,外觀效果圖+CAD建筑圖
占地:227平方米
經典三層歐式造型別墅圖紙,功能房豐富,挑空客廳
占地:180平方米
二層新中式小別墅設計圖紙,舒適實用,16米乘12米
占地:189.88平方米
新中式別墅一層自建房設計,戶型實用緊湊
占地:170.54平方米
簡單實用農村自建四層小別墅設計圖(三層半),95平米
占地:95平方米
網紅中式一層三合院別墅設計圖,白墻黛瓦古典大氣,讓人心曠神
占地:248.82平方米
10套農村經典二層樓房設計圖紙,多戶型,多尺寸,總有一款適合
占地:多種
推薦:10套新農村自建房設計圖,2026年最新設計
閱讀次數:4825737次
100套鄉村別墅圖片大全,2026年最新設計
閱讀次數:2492203次
6款農村蓋一層平房的設計圖,10萬元就能建起來
閱讀次數:1852637次
這11個一層農村自建房別墅火爆了朋友圈!我最喜歡戶型十!你呢
閱讀次數:750268次
農村6萬元建一層小別墅圖,你敢相信嗎
閱讀次數:567686次
農村5萬塊就能自建房,6套普通房子設計圖分享,你沒看錯!
閱讀次數:419410次
8套農村漂亮三間平房圖片,非常適合在農村修建!
閱讀次數:411197次
農村自建房化糞池怎么做?附方案及施工過程
閱讀次數:391783次
農村一層三間平房設計圖,告別土氣養老房,讓人忍不住點贊
閱讀次數:350581次
新農村二層樓房圖片造價12萬,挑一套回家建房吧!
閱讀次數:349126次
