
|
在老家建房不需要多大氣,建個小面積的,造價不高,也經濟適用!家里人口不多的,可以挑選幾套小面積的別墅! 造墅家今天為大家帶來3款小面積別墅,第3套造價僅18萬,看完收藏不迷路! 小別墅1:
磚混結構,造價29-36萬,開間8米,進深17.8米,占地面積135.38平方米,建筑面積270.76平方米,建筑高度9.909米
小別墅2:
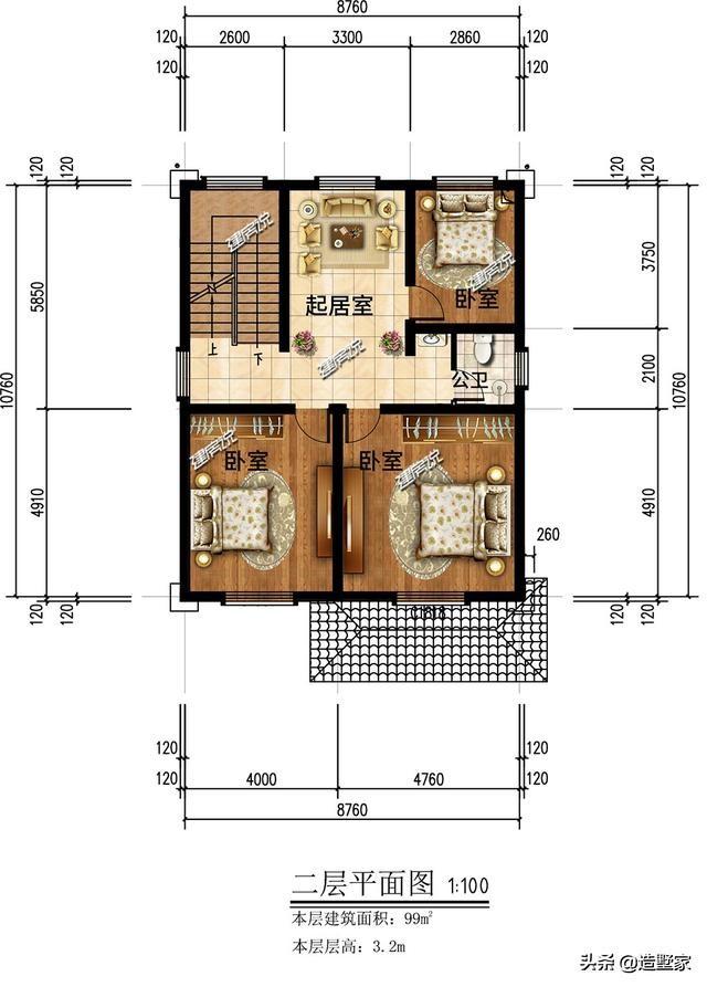
架結構,造價30-38萬,開間8.76米,進深10.76米,占地面積105.9平方米,建筑面積289.95平方米,建筑高度12.5米
小別墅3:
框架結構,造價29-36萬,開間7.5米,進深12米,占地面積87.06平方米,建筑面積250.62平方米,建筑高度12.575米
3套農村系哦啊別墅!真是實用,看完收藏了! 圖紙之家-專注農村別墅/自建房設計18年,集合國內200余位經驗豐富的設計師,被評為口碑最好的農村建筑設計公司! |

一層農房別墅設計圖紙,140平方米,面寬15米
占地:140平方米
面寬12米新中式三層別墅設計圖,回家建房就選它,全家人都愛的
占地:180平方米
經典美式風100平米二層小別墅設計方案,鄉村建房首選
占地:100.17平方米
最實用一層小別墅設計方案,造價不高顏值高,家家都喜歡!
占地:143.48平方米
高端四間五間兩層別墅設計圖紙,開間20米自建房效果圖
占地:265平方米
12×12米農村二層經濟型自建房設計圖,設計了6間臥室
占地:140平方米
農村自建超漂亮中式四合院別墅設計圖,22X25米
占地:473平方米
新中式三層雙拼別墅設計圖及效果圖,中式大氣風格
占地:235.26平方米
獨棟經濟型二層小別墅房屋設計圖,含全套施工圖效果圖
占地:多種戶型
180平方米漂亮大氣三層雙拼別墅設計圖,自建房圖片
占地:186平方米
面寬11米超實用的農村一層別墅設計圖,南北通透造價不高
占地:110.47平方米
30萬以下的經典二層新農村別墅設計圖紙及效果圖,簡單大氣
占地:170平方米
鄉村房屋改建三層房屋設計圖紙,農村樓房設計圖推薦
占地:90平方米
大氣的美式三層別墅設計圖,外觀效果圖氣派、美觀
占地:148平方米
最新潮的90平方米三層房屋設計圖 ,古樸典雅又不失時尚
占地:90平方米
簡約L型一層平房自建房設計圖,經濟實用
占地:145.283平方米
美式田園二層別墅設計方案圖,全套設計圖+效果圖
占地:235平方米
帶地下室+挑空客廳,農村三層洋樓別墅誰家圖在
占地:97.74平方米
田園風格別墅設計圖紙及效果圖,三層鄉村小別墅設計方案
占地:166.4平方米
雙戶168平方米小戶型新農村雙拼樓房設計建筑圖紙帶外觀圖
占地:168平方米
推薦:10套新農村自建房設計圖,2026年最新設計
閱讀次數:4825737次
100套鄉村別墅圖片大全,2026年最新設計
閱讀次數:2492203次
6款農村蓋一層平房的設計圖,10萬元就能建起來
閱讀次數:1852637次
這11個一層農村自建房別墅火爆了朋友圈!我最喜歡戶型十!你呢
閱讀次數:750268次
農村6萬元建一層小別墅圖,你敢相信嗎
閱讀次數:567686次
農村5萬塊就能自建房,6套普通房子設計圖分享,你沒看錯!
閱讀次數:419410次
8套農村漂亮三間平房圖片,非常適合在農村修建!
閱讀次數:411197次
農村自建房化糞池怎么做?附方案及施工過程
閱讀次數:391783次
農村一層三間平房設計圖,告別土氣養老房,讓人忍不住點贊
閱讀次數:350581次
新農村二層樓房圖片造價12萬,挑一套回家建房吧!
閱讀次數:349126次
