
|
現在農村土地管理越來越嚴格了,想建新房,可是自家的宅基地面寬又不夠長,不知道要建什么樣的戶型,所以今天給大家推薦4款小面寬的別墅,其中第三套還是現代簡約風格,超時尚,超大氣。 戶型一
編號:2060 結構形式:磚混 占地尺寸:9m×14m 占地面積:123.93㎡ 建筑面積:265㎡
一進入戶門看到的是一個挑空的客廳,小戶型設計,挑空的客廳,首先提高了建筑的空間感和層次感,然后解決了采光問題,戶型雖小,但是功能齊全,適合小戶居住。 戶型二
編號:2351 結構形式:磚混 占地尺寸:9.8m×16.8m 占地面積:129.48㎡ 建筑面積:241.13㎡
這一款設計的比較簡潔,外觀也很大氣,外墻僅用白色真石漆噴繪,減少了細節裝飾,也減少了成本,用檐口線條和窗套線打造出建筑的層次感,外觀顯得更加時尚,同樣它好保留了柴火房的設計,做飯可以切換自如。 戶型三
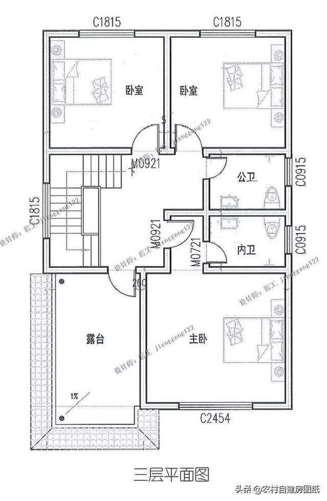
編號:2434 結構形式:磚混 占地尺寸:10m×15m 占地面積:152.34㎡ 建筑面積:278.95㎡
這是一款現代簡約風格的別墅,幾何形的外觀,搭配一深一淺的顏色,顯盡藝術氣息,這套房子最大的亮點就是二樓的主臥,采用套房式的設計,包含了衛生間,衣帽間,書房,還有一個露臺,實打實的高質量生活品質。 戶型四
編號:3171 結構形式:磚混 占地尺寸:8m×12.3m 占地面積:106.45㎡ 建筑面積:295.83㎡
如果宅基地比較狹長,而且左右都有鄰居,想建一套房間稍微多一點的別墅不妨可以考慮這一套。通過階梯進入玄關,然后,客廳,臥室,廚房縱向分布,客廳是挑空設計,在加上大大的落地玻璃窗,略顯高貴氣質,同時保證了屋內采光,一樓的臥室,可以留做老人房,方便他們日常起居。2,3樓主要都是臥室,一共有6間,可以根據自己需求,可以改造成其他功能室,都是沒問題的。 圖紙之家-專注農村別墅/自建房設計18年,集合國內200余位經驗豐富的設計師,被評為口碑最好的農村建筑設計公司! |

180平方米新農村自建二層小別墅設計圖及效果圖,15X13米
占地:183平方米
雙拼小別墅設計圖紙(含效果圖),二層別墅設計方案精選
占地:130平方米
帶地下室的農村三層雙拼別墅設計圖,復式戶型,面寬23米
占地:261.6平方米左右
造價30萬左右的三層樓房設計圖,占地120平米左右
占地:120平方米
帶地下室的一層別墅設計圖,農村自建房比較合適
占地:206平方米
高端大氣三層雙拼自建房設計圖,外觀漂亮,240平左右
占地:240平方米
新農村自建二層小樓圖,時尚大方,外型精美,室內布局也很贊
占地:137平方米
180平方現代風三層別墅設計圖,經典大氣,百看不厭
占地:180.48平方米
90平方米農村二層房屋設計施工圖紙及效果圖,11x8.5米
占地:90平方米
帶車庫的農村四合院別墅設計圖,富貴人家的象征,日子越過越興
占地:219.24平方米
農村簡單雙拼小戶型,總面積190平方米,合理的利用了每一個空間
占地:190平方米
歐式風格三層別墅建筑設計圖,復式樓中樓結構
占地:138平方米
高端豪華三層別墅住宅設計方案圖,歐式外觀風格
占地:170平方米
170平方米新農村現代樓中樓三層別墅設計施工圖紙及效果圖
占地:170平方米
新中式農村三層樓房設計圖紙,全套圖紙設計,線條錯落有致
占地:130平方米
新式三層別墅設計圖,客廳中空,占地125平米左右
占地:125平米
2026農村漂亮的一層平房圖片平面圖與全套施工圖紙,戶型周正
占地:150平方米
地中海風格二層別墅設計圖及效果圖,外觀有格調
占地:125平方米
舒適大方三層房屋設計圖紙及圖片,占地150平米,布局合理,臥室
占地:150平方米
私人自建三層別墅設計圖紙帶效果圖,歐式風格、外觀大氣
占地:209.44平方米
推薦:10套新農村自建房設計圖,2026年最新設計
閱讀次數:4825737次
100套鄉村別墅圖片大全,2026年最新設計
閱讀次數:2492203次
6款農村蓋一層平房的設計圖,10萬元就能建起來
閱讀次數:1852637次
這11個一層農村自建房別墅火爆了朋友圈!我最喜歡戶型十!你呢
閱讀次數:750268次
農村6萬元建一層小別墅圖,你敢相信嗎
閱讀次數:567686次
農村5萬塊就能自建房,6套普通房子設計圖分享,你沒看錯!
閱讀次數:419410次
8套農村漂亮三間平房圖片,非常適合在農村修建!
閱讀次數:411197次
農村自建房化糞池怎么做?附方案及施工過程
閱讀次數:391783次
農村一層三間平房設計圖,告別土氣養老房,讓人忍不住點贊
閱讀次數:350581次
新農村二層樓房圖片造價12萬,挑一套回家建房吧!
閱讀次數:349126次
