
|
現代別墅丨小體積創造大能量——自建房風格由您決定
現代別墅丨小體積創造大能量——自建房風格由您決定 項目名稱:甘肅白銀張家現代別墅 項目經理:何鴻波 圖紙編號:1130 建筑面積:201㎡ 占地面積:179㎡ 建筑尺寸:17.3m×10m 建筑結構:磚混結構 參考造價:32萬元(不含室內裝修費用) 項目概況
現代別墅丨小體積創造大能量——自建房風格由您決定 △總平面示意圖 基地情況: 東:空曠空地 西:空曠空地 南:空曠空地 北:空曠空地 項目簡介: 業主在項目前期與設計師及相關負責人溝通了詳細的空間需求和大體思路,對于立面造型方面也有一些在細節上的具體要求,并表示對于易蓋房圖庫955的喜愛。 設計師根據業主的需求與喜好,并結合項目場地實際情況,將項目形式確定為南北朝向的一層現代別墅。 戶型概況: 1層 / 4室 1廳 2衛 1廚
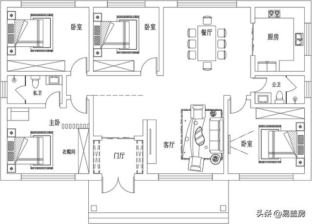
現代別墅丨小體積創造大能量——自建房風格由您決定 △一層平面圖 整層以居住休閑為主,客廳與餐廳以南北通透之勢和門廳相連,三間臥室分別設置于東南、西南和西北角,確保最佳采光效果;通過中部走廊實現南北區域的動靜分離設計。
現代別墅丨小體積創造大能量——自建房風格由您決定 △東南效果圖 建筑整體為新中式風格,立面選用建材商城優質真石漆,配合木質建材展現出清雅自然的視覺效果,暖墻黛瓦的傳統搭配又帶有一絲古典雅韻。
現代別墅丨小體積創造大能量——自建房風格由您決定 △西南側效果圖 建筑窗戶均為大開窗,通透玻璃與文化磚搭配,利用木色做局部點亮,讓建筑在淡雅中通過簡約大方的輪廓體現時尚感。
現代別墅丨小體積創造大能量——自建房風格由您決定 △鳥瞰圖 屋頂整體坡度較小,在不影響造型完成度的情況下,便于后續施工。建筑門窗采用中式元素裝飾,搭配深色平板瓦,提升中式韻味和儀式感。
現代別墅丨小體積創造大能量——自建房風格由您決定 △東立面圖
現代別墅丨小體積創造大能量——自建房風格由您決定 △西立面圖
現代別墅丨小體積創造大能量——自建房風格由您決定 △南立面圖
現代別墅丨小體積創造大能量——自建房風格由您決定 △北立面圖 1.作為設計師,在這個項目中遇到了哪些困難? 答:項目中考慮很多私密性和采光方面的影響,但整體方案設計還是進行得比較順利的。 2.這個項目的設計周期是多久? 答:35天左右。 3.是否有自己非常滿意的設計建議未被業主接受? 答:業主對整體比較滿意,平面滿足了業主的使用需求,并且貼合了家人的使用習慣。立面造型則滿足了建筑的美觀性和業主的想象。因此,業主對項目整體最為滿意。 圖紙之家-專注農村別墅/自建房設計18年,集合國內200余位經驗豐富的設計師,被評為口碑最好的農村建筑設計公司! |

兄弟兩戶雙拼房屋設計圖及外觀圖片,戶型合理
占地:185平方米
實用農村三層房屋設計圖紙,效果圖+全套施工圖
占地:113平方米
115平旋轉樓梯三層復式別墅房屋設計圖,含外觀效果圖
占地:115平方米
14x11米一層平房戶型設計圖,帶前后門設計,好看不貴還實用!
占地:143.59平方米
120平方米現代新農村二層自建房設計圖,造型時尚好看
占地:120平方米
一層4間自建平房別墅及全套戶型圖紙,占地160平左右,簡單實用
占地:162.13平方米
歐式二層農村別墅設計圖,140平方米戶型方正的好方案
占地:142.51平方米
150平方米農村二層房屋建筑設計圖,15.2x9.4米
占地:148平方米
150平方米自建現代二層別墅施工設計圖帶外觀圖,15x10米
占地:多戶型可選
農村中式一層合院別墅設計圖,帶小院子規劃設計
占地:202平方米左右
150平米田園風格二層別墅設計圖紙,沉穩大氣有內涵
占地:150平方米
帶配房的二層鄉村歐式別墅設計圖,尺寸15.84×13.84米
占地:149.19平方米
小戶型三層現代風別墅設計圖,可別再說農村不適合現代風了
占地:92.34平方米
三層復式別墅設計圖紙(含效果圖),復式住宅設計圖精選
占地:147.7平方米
新農村自建二層樓房戶型設計圖,簡單大氣,外觀漂亮精致
占地:多種戶型
新農村小戶型4層自建房三層半別墅設計圖,平屋頂設計
占地:95平方米
占地130平三層現代別墅設計圖方案,帶電梯和地下室設計
占地:134.75平方米
鄉村高檔四層豪華別墅自建房設計圖,一層不帶餐廳廚房戶型
占地:147平方米
帶地下室三層新農村房屋設計圖紙,外觀效果大氣
占地:220平方米
農村小別墅一層設計圖紙,全套施工圖兩款戶型可選
占地:多種戶型可選
推薦:10套新農村自建房設計圖,2026年最新設計
閱讀次數:4825737次
100套鄉村別墅圖片大全,2026年最新設計
閱讀次數:2492203次
6款農村蓋一層平房的設計圖,10萬元就能建起來
閱讀次數:1852637次
這11個一層農村自建房別墅火爆了朋友圈!我最喜歡戶型十!你呢
閱讀次數:750268次
農村6萬元建一層小別墅圖,你敢相信嗎
閱讀次數:567686次
農村5萬塊就能自建房,6套普通房子設計圖分享,你沒看錯!
閱讀次數:419410次
8套農村漂亮三間平房圖片,非常適合在農村修建!
閱讀次數:411197次
農村自建房化糞池怎么做?附方案及施工過程
閱讀次數:391783次
農村一層三間平房設計圖,告別土氣養老房,讓人忍不住點贊
閱讀次數:350581次
新農村二層樓房圖片造價12萬,挑一套回家建房吧!
閱讀次數:349126次
