
項目名稱 湖南長沙陶家新中式三合院 圖紙編號 1094 建筑面積 563㎡ 占地面積 292㎡ 建筑尺寸 26.8m×18.3m 建筑結構 框架結構 參考造價 96 - 110萬元左右(不含室內裝修費用) 項目概況
總平面示意圖 項目簡介: 設計師根據場地情況及業主的需求和喜好,將項目形式確定為南北朝向的二層新中式三合院。 平面布局 戶型概況: 2層 / 7室 1廳 1堂屋 6衛 1廚 1土灶 1儲物 1衣帽 1書房 1棋牌室 1水池 1娛樂室 1陽臺 1露臺
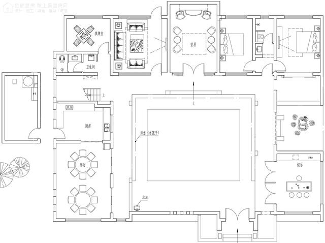
一層平面圖 建筑整體以三合院布局,中間預留庭院通向堂屋,西側設置土灶,廚房及餐廳;東側設置娛樂室和綠色景觀區域。
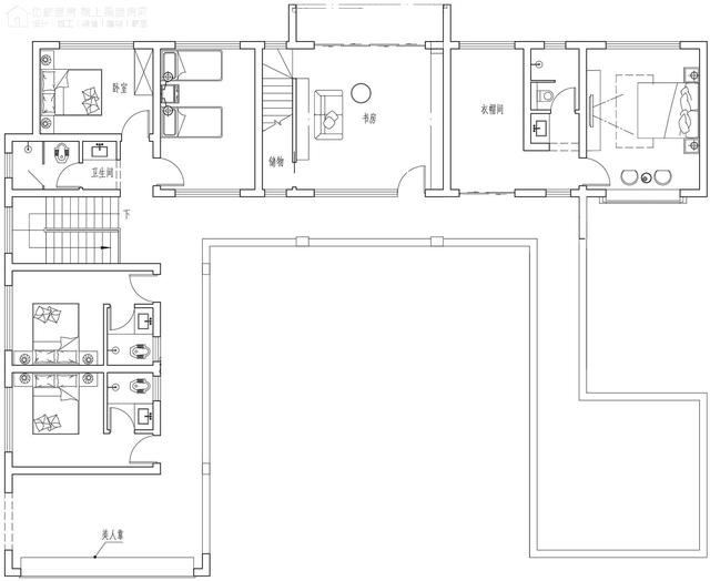
二層平面圖 北側以居住、辦公為主。南側設置雙臥室,向外延伸增設露臺的位置,為業主的日常起居提供更多休閑空間。 造型設計
東南側效果圖 建筑整體為新中式風格,立面以白色真石漆作為主基調。
西南側效果圖 南側臥室均使用大面積開窗,配合二層西南側的露臺設計,提升室內空間的采光效果。
庭院效果圖
庭院效果圖 二層布局以娛樂、觀景場所為主,立面簡單,新中式風格的裝飾讓空間上的變化十分契合。
東立面圖
西立面圖
南立面圖
北立面圖 圖紙之家-專注農村別墅/自建房設計18年,集合國內200余位經驗豐富的設計師,被評為口碑最好的農村建筑設計公司! |

農村二層中式三合院設計圖,這才是國人該建的房子
占地:175.58平方米
豪華農村帶露臺三層樓房別墅設計圖紙,占地200平方米左右
占地:200平方米
三層平頂現代風格,農村自建房設計圖,可帶電梯,百看不厭
占地:259.55平方米
農村簡單雙拼小戶型,總面積190平方米,合理的利用了每一個空間
占地:190平方米
帶車庫現代三層樓房設計圖,外觀效果圖時尚、美觀
占地:160平方米
120平米二層別墅樓設計圖,簡約省錢也能建的漂亮
占地:121.74平方米
帶獨立堂屋的農村自建房設計,二層別墅設計方案圖
占地:109平方米左右
帶框架層的四層別墅設計圖,框架層功能布局很多,很實用
占地:169.09平方米
135平復式別墅房屋設計圖,外觀時尚、漂亮
占地:135平方米
15米面寬田園風一層別墅!戶型新穎太吸睛,看過都想建
占地:141.13平方米
二層農村小別墅設計圖,造價經濟實惠,參考價30萬以內
占地:140平方米
農村現代新中式三合院設計圖及效果圖片,外觀好看極了
占地:多戶型可選
面寬不到10米的小戶型自建房戶型圖,全套設計圖紙可施工
占地:123.2平方米左右
12x12農村三層別墅設計圖,自建房屋推薦戶型
占地:148平方米
農村10萬元一層小別墅設計圖,農村一層自建房屋設計圖
占地:多種戶型
鄉下一層自建養老平房戶型圖及全套圖紙,占地面積200左右
占地:200平方米
50萬左右農村豪華二層別墅設計圖 ,大廳中空,外觀精美
占地:210平方米
現代風平屋頂一層自建房設計,經濟時尚
占地:147.17平方米
新中式三層樓房設計圖紙,帶地下室,地下車庫,帶電梯
占地:230平方米
100平客廳挑高三層樓房設計圖,復式結構
占地:100平方米
推薦:10套新農村自建房設計圖,2026年最新設計
閱讀次數:4825737次
100套鄉村別墅圖片大全,2026年最新設計
閱讀次數:2492203次
6款農村蓋一層平房的設計圖,10萬元就能建起來
閱讀次數:1852637次
這11個一層農村自建房別墅火爆了朋友圈!我最喜歡戶型十!你呢
閱讀次數:750268次
農村6萬元建一層小別墅圖,你敢相信嗎
閱讀次數:567686次
農村5萬塊就能自建房,6套普通房子設計圖分享,你沒看錯!
閱讀次數:419410次
8套農村漂亮三間平房圖片,非常適合在農村修建!
閱讀次數:411197次
農村自建房化糞池怎么做?附方案及施工過程
閱讀次數:391783次
農村一層三間平房設計圖,告別土氣養老房,讓人忍不住點贊
閱讀次數:350581次
新農村二層樓房圖片造價12萬,挑一套回家建房吧!
閱讀次數:349126次
