
|
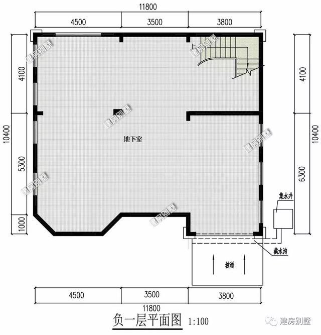
有些人想要將自家房子建的氣派一些,會在底下做一個架空層的方式,這樣造價不好又能達到很好的效果,也有很多地方有做地下室的習慣,但通常的做法都是一半在地面以下,一半在地面以上的空間,因為全部建在地面下造價高且不好做車庫。 第一棟別墅:11.8×10.4米,這是一款地下室一半在地面、一半在地下的歐式風格別墅,墻面使用仿大理石的真石漆涂裝,配有多邊形窗,搭配一些浮雕構件,屋面蓋以藍色的琉璃瓦裝飾。
布局分析:地下室的主要功能是用來放車,也可以便于儲物;一層設有一室兩廳一廚一衛,客廳空間大采光好,設有室內小臺階很有格調,南北通透戶型好;二層設有三室一廳兩衛,其中主臥面積大配獨衛,另外設有一間帶陽臺的書房,另外配生活陽臺;三層有兩室一廳一衛,配書房和室外觀景露臺。
第二棟別墅:11.8×13.8米,這是一款平屋頂設計,且帶地下室設計的別墅戶型,地下室的設計方式和戶型一是一樣的,墻面用面磚裝飾,也可以用真石漆分縫裝飾,屋檐處用藍瓦裝點。
平面圖:地下室的功能是車庫、倉庫、酒窖和開放式的健身房;一層設有兩室兩廳兩衛,主臥帶獨衛,廚房單獨建,配有堂屋,側開門進出方便且通透性能好;二層設有三室一廳三衛,每間臥室內都配獨衛;三層有四間帶獨衛的臥室配備,室外設以生活陽臺。
你們家鄉那邊流不流行建帶地下室的別墅呢?我知道在浙江那邊是比較流行的,尤其是第一棟這樣氣派外觀的別墅,很受歡迎。 圖紙之家-專注農村別墅/自建房設計18年,集合國內200余位經驗豐富的設計師,被評為口碑最好的農村建筑設計公司! |

西班牙風格農村二層樓房設計圖及效果圖,實用美觀
占地:170平方米
共用中堂雙拼兄弟三層別墅設計圖,簡歐式風格
占地:230平方米
210平左右三層(兩層半)雙拼新農村別墅設計圖紙及外觀效果圖
占地:206.712平方米
泰式風格三層小別墅設計圖,帶車庫和大露臺
占地:120平方米
四層別墅豪宅外觀效果圖及全套施工圖,高端歐式風格
占地:176.97平方米
農村一層半房屋設計圖,帶外觀效果圖,外觀時尚
占地:155平方米
中式兄弟雙拼別墅設計圖紙,類似合院造型,美爆了
占地:221.9平方米
預算10萬的簡單二層半別墅房屋設計圖,外觀簡單,造價低
占地:90平方米
面寬13米方正戶型二層小別墅設計方案,南北通透采光好
占地:166.78平方米
歐式漂亮農村三層自建房設計圖紙,兩個戶型方案可選
占地:多戶型可選
省錢美觀一層自建房子設計圖,父母養老住很適合
占地:117平方米
帶小院新農村房屋設計圖紙,三層別墅推薦
占地:115平方米
一層中式三合院別墅設計圖,白墻黛瓦引領潮流
占地:177.94平方米
簡潔干練三層現代風平頂別墅設計圖,8X15米
占地:115.1平方米
二層小別墅外觀圖片,別墅圖紙,外觀時尚,布局簡單實用,挑空
占地:230平方米
農村一層中式三合院別墅設計圖紙,外觀漂亮極了
占地:195平方米
農村三層復式自建樓房設計圖,外觀圖大氣
占地:130平方米
預算20萬左右三層別墅設計圖紙,新農村自建房推薦
占地:118平方米
鄉下120平米二層樓房設計圖,23萬就可以建漂亮別墅
占地:120平方米
農村一層中式三合院太香了!白墻黛瓦,有院有景超宜居
占地:364.72平方米
推薦:10套新農村自建房設計圖,2026年最新設計
閱讀次數:4825737次
100套鄉村別墅圖片大全,2026年最新設計
閱讀次數:2492203次
6款農村蓋一層平房的設計圖,10萬元就能建起來
閱讀次數:1852637次
這11個一層農村自建房別墅火爆了朋友圈!我最喜歡戶型十!你呢
閱讀次數:750268次
農村6萬元建一層小別墅圖,你敢相信嗎
閱讀次數:567686次
農村5萬塊就能自建房,6套普通房子設計圖分享,你沒看錯!
閱讀次數:419410次
8套農村漂亮三間平房圖片,非常適合在農村修建!
閱讀次數:411197次
農村自建房化糞池怎么做?附方案及施工過程
閱讀次數:391783次
農村一層三間平房設計圖,告別土氣養老房,讓人忍不住點贊
閱讀次數:350581次
新農村二層樓房圖片造價12萬,挑一套回家建房吧!
閱讀次數:349126次
