
|
戶型一:簡單的復式住宅設計圖,客廳挑高
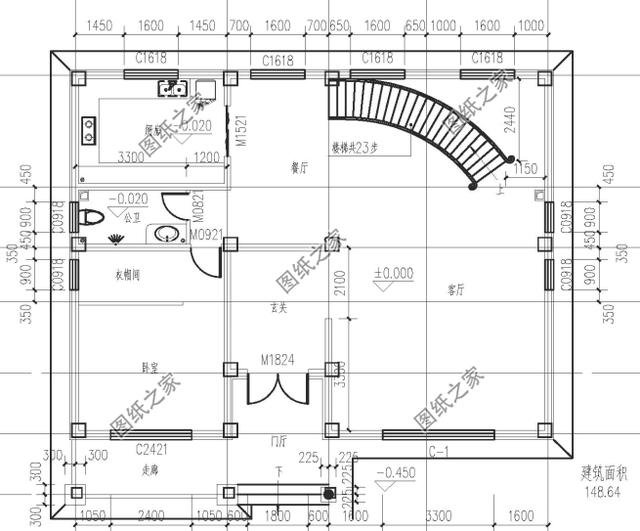
![]() 圖紙介紹:本戶型為比較簡單的復式住宅設計圖,客廳挑高,現代風格,在外觀造型上,用最為精煉的建筑語言闡釋出現代住宅的風格。 占地面積:14.0m*10.6m,148平方米左右; 建筑層高:二層; 建筑高度:9.36米(含屋頂); 設計功能: 一層住宅戶型:門廳、客廳(挑高)、臥室(衣帽間)、廚房、餐廳、衛生間 二層住宅戶型:起居室、主臥(帶衛生間)、臥室(帶衣帽間)、臥室、衛生間、屋頂花園 ![]() ![]() 戶型二:新農村歐式時尚二層別墅設計圖紙,120平方米自建房
![]() 圖紙介紹: 120平方米新農村歐式時尚二層別墅自建房設計圖紙,藍色坡屋頂的設計,搭配真石漆外墻使得別墅整體造型突出亮眼,弧形的屋檐設計,使別墅充滿歐式氣息。占地方正,布局實用合理,多窗的設計,既保證了室內的采光又保證了室內的通風。 占地面積:12.8m*11.36m,123平方米左右; 建筑層高:二層; 建筑高度:9.48米(含屋頂); 建筑結構:磚混結構; 設計功能: 一層戶型:走廊、客廳、香堂、廚房、餐廳、臥室(帶衛生間)、臥室、衛生間; 二層戶型:客廳上空、臥室(帶衛生間書房衣帽間)、兒童房、臥室、衛生間、陽臺; ![]() ![]() 戶型三:150平米新中式農村兩層樓房設計圖,簡單大氣時尚
![]() 圖紙介紹:150平米新中式農村兩層樓房設計圖,簡單大氣時尚,給您不一樣的感覺。室內布局設計合理,使用率高。窗戶也特別的多,采光通風效果非常不錯。 占地面積:13.7m*12.1m,150平方米左右; 建筑層高:二層; 建筑高度:10.5米(含屋頂); 設計功能: 一層戶型:客廳、餐廳、廚房、臥室×2、衛生間; 二層戶型:客廳、臥室×4、娛樂室、衛生間、陽臺; ![]() ![]() 以上就是農村二層別墅挑空客廳,戶型合理,精美實用,喜歡哪款,歡迎下方留言。
圖紙之家-專注農村別墅/自建房設計18年,集合國內200余位經驗豐富的設計師,被評為口碑最好的農村建筑設計公司! |

140平方米清新別致新農村兩層房屋設計圖紙大全12x13米
占地:140平方米
適合回鄉建的三合院平房設計圖,舒適又接地氣
占地:213.96平方米
占地170平米2026新款三層別墅設計圖片及設計方案
占地:170平方米
新農村四合院別墅圖片及戶型方案圖,全套圖紙可施工
占地:154平方米左右
鄉村一層房屋設計圖,養老還是一層好,多臥室的設計
占地:195平方米
鄉村二層別墅設計圖,含外觀效果圖,設計師推薦
占地:140平方米
100平方三層樓房設計圖及圖片,戶型設計簡約時尚
占地:100平方米
中國最好看的二層農村房子圖片及施工圖紙,20萬現代風格
占地:130平方米
三層現代平頂別墅設計圖,簡約時尚百看不厭,外觀令人驚艷!
占地:125.142平方米
預算10萬左右新農村自建房屋設計圖紙,帶效果圖
占地:82平方米
帶車庫農村二層雙拼別墅設計圖,外觀現代
占地:235平方米
2026新款四層樓房設計圖,占地120平方米左右,客廳中空
占地:120平方米
豪華新中式兩層半農村別墅設計圖,繁華之外,心之所向
占地:290.4平方米
好看精致的三層自建房別墅設計圖,開間12米進深12米左右
占地:125.73平方米
豪華雙拼三層別墅設計圖,在農村建一棟,將是最靚的風景!
占地:186.85平方米
農村小別墅設計圖二層,占地不大顏值高,最適合農村建造。
占地:108.66平方米
大開間小進深的一層別墅設計圖,進深僅8.7米,獨立餐廚照樣美觀
占地:130.32平方米
12.8x10米二層自建房別墅設計圖,大氣美觀實用,建造無憂
占地:128平方米
一層中式仿古三合院設計圖,實用又大氣,百年不過時
占地:366.67平方米
造價便宜的二層雙拼自建房設計方圖案,一塊宅基地建兩戶
占地:224平方米
推薦:10套新農村自建房設計圖,2026年最新設計
閱讀次數:4825737次
100套鄉村別墅圖片大全,2026年最新設計
閱讀次數:2492203次
6款農村蓋一層平房的設計圖,10萬元就能建起來
閱讀次數:1852637次
這11個一層農村自建房別墅火爆了朋友圈!我最喜歡戶型十!你呢
閱讀次數:750268次
農村6萬元建一層小別墅圖,你敢相信嗎
閱讀次數:567686次
農村5萬塊就能自建房,6套普通房子設計圖分享,你沒看錯!
閱讀次數:419410次
8套農村漂亮三間平房圖片,非常適合在農村修建!
閱讀次數:411197次
農村自建房化糞池怎么做?附方案及施工過程
閱讀次數:391783次
農村一層三間平房設計圖,告別土氣養老房,讓人忍不住點贊
閱讀次數:350581次
新農村二層樓房圖片造價12萬,挑一套回家建房吧!
閱讀次數:349126次
