
|
關于房子建幾層的問題,不同的人有不同的看法。有的人覺得房子越高越氣派,但是有的人認為房子高了住不過來,建了也是浪費。其實要小編來說的話,二層半的房子就是一個不錯的選擇,不高不低,而且還比三層省錢。今天小編給大家推薦三款最新農村二層半房圖片,漂亮實用,而且對于一般農村家庭來說非常適合,不會有太多的空間浪費,快看看你喜歡哪一款吧。
方案一:占地140平米歐式二層半別墅設計圖,帶露臺設計
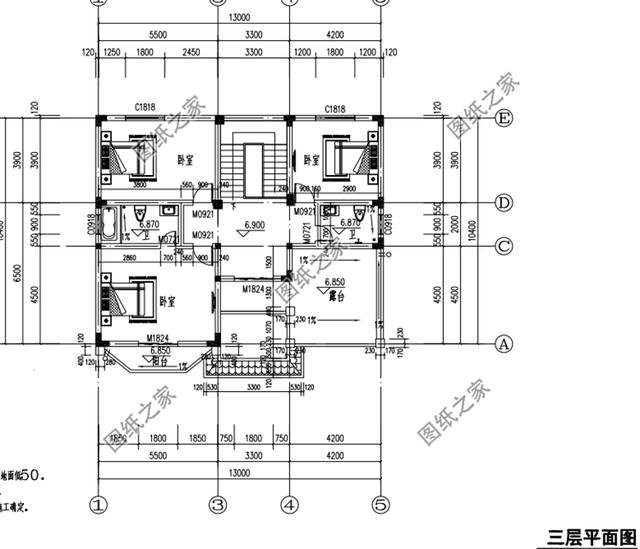
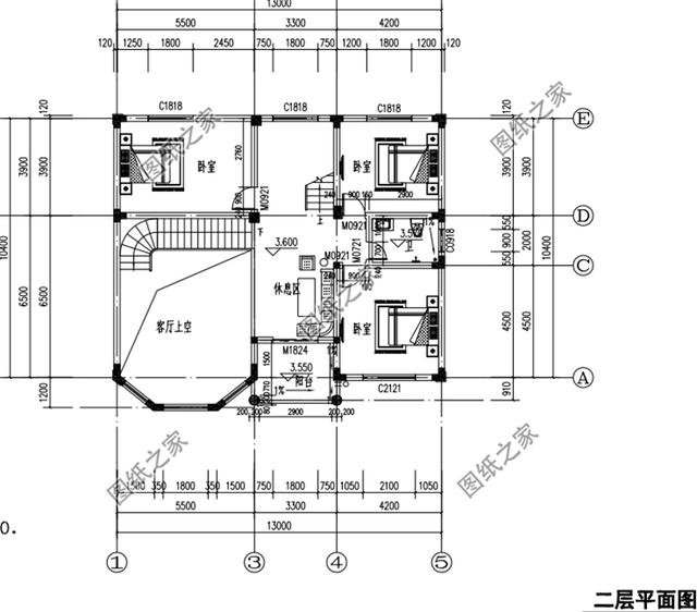
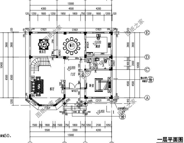
圖紙介紹:本戶型占地140平米,多面開窗,增強室內采光和通風;戶型落地窗的設計,讓整個別墅充滿現代感。一樓帶娛樂室,二樓客廳上空,三樓帶大露臺,功能齊全,戶型方正舒適,外觀簡約耐看,造價經濟實惠,蓋房子的首選。 ![]() 占地面積:13.0m*10.4m,140平方米左右; 建筑層高:三層; 建筑高度:13米(含屋頂); 設計功能: 一層戶型: 娛樂廳,餐廳,廚房,客廳,門廳,衛生間,臥室; 二層戶型:臥室X3,衛生間,客廳上空,休息區,陽臺; 三層戶型:臥室X3,衛生間X2,陽臺,露臺 ; ![]() ![]() ![]() 方案二:農村二層半別墅設計圖,占地121平米,主體造價不到30萬
圖紙介紹:本戶型簡單實用,滿足家人居住空間的同時,也不會浪費房屋空間。一樓的老人房帶有獨立的衛生間,二層活動室的設計可以使業主在休息的時候也能得到放松,三樓大露臺設計可以供業主平時在此喝茶、小憩,晾曬區的面積很大,能滿足業主家庭的晾曬需求。 ![]() 占地面積:10.76m*12.26m,121平方米左右; 建筑層高:二層; 建筑高度:12.647米(含屋頂); 設計功能: 一層戶型:玄關、客廳、機房、廚房、餐廳、臥室(帶衛生間)、臥室、衛生間; 二層戶型:茶室、活動室、臥室(帶衛生間)、臥室x3、衛生間、陽臺; 三層戶型:活動室、臥室x3、衛生間、露臺; ![]() ![]() ![]() 方案三:農村二層半別墅設計圖,占地150平米,歐式風格
圖紙介紹:本戶型占地150平方米,造價不到40萬,細節處理上非常有講究,優雅的門窗很好的勾勒出建筑的立面造型,顏值完全在線。再加上旁邊的環境烘托,簡直太有代入感了。三代同堂,完全沒有問題。 ![]() 占地面積:12.8m*13.7m,149.76平方米; 建筑層高:三層; 建筑高度:12.8米(含屋頂); 設計功能: 一層戶型:堂屋、客廳、餐廳、廚房、臥室(帶衛生間)、臥室、衛生間、儲物間; 二層戶型:客廳上空、小客廳、臥室(帶衛生間衣帽間)、臥室、KTV、衛生間、陽臺、露臺; 三層戶型:娛樂區、臥室、棋牌室、衛生間、露臺; ![]() ![]() ![]() 看了這幾款房子有沒有喜歡的款式呢?如果有喜歡的趕快收藏吧。
圖紙之家-專注農村別墅/自建房設計18年,集合國內200余位經驗豐富的設計師,被評為口碑最好的農村建筑設計公司! |

一層鄉村別墅設計戶型圖,占地100平左右,外觀很時尚
占地:100平方米左右
160平方米經典鄉村二層房屋設計圖紙
占地:160平方米
180平方米漂亮大氣三層雙拼別墅設計圖,自建房圖片
占地:186平方米
帶院子的一層農村別墅設計圖,造價不高,養老房首選!
占地:144.819平方米
新中式三層豪華大氣三層別墅自建房屋設計圖,帶地下室,土豪專
占地:194平方米
經典小戶型新農村房屋住宅設計圖,10萬左右
占地:80平方米
最新140平米三層自建房屋設計圖紙,本戶型帶小院
占地:140平米
農村四間三層豪華別墅設計方案圖,造型輕奢雅致
占地:200平方米
鄉村最美三層別墅設計圖自建房戶型,外觀圖精致漂亮
占地:134平方米
三層新中式別墅設計圖,面寬12米經典漂亮
占地:154.93平方米
農村蓋房設計大全一層房子的設計圖紙,色調清新靚麗
占地:220平方米
新款鄉村二層半別墅設計圖紙帶效果圖,三層別墅外觀圖片大全
占地:108.795平方米
新中式帶露臺30萬左右農村三層別墅,客廳中空
占地:110平方米
新農村三層房屋設計圖紙大全,新農村住宅圖紙
占地:108平方米
160平方農村三層別墅CAD設計圖紙,含外觀圖片效果圖
占地:156平方米
120平米二層別墅樓設計圖,簡約省錢也能建的漂亮
占地:121.74平方米
240平方米新農村四合院兩層樓房施工設計圖紙帶外觀圖
占地:234平方米
農村18萬元二層小樓圖,帶開放式車庫
占地:110平方米
新農村四合院別墅圖片及戶型方案圖,全套圖紙可施工
占地:154平方米左右
12x10三層別墅設計圖,農村自建房推薦戶型
占地:120平方米
推薦:10套新農村自建房設計圖,2026年最新設計
閱讀次數:4825737次
100套鄉村別墅圖片大全,2026年最新設計
閱讀次數:2492203次
6款農村蓋一層平房的設計圖,10萬元就能建起來
閱讀次數:1852637次
這11個一層農村自建房別墅火爆了朋友圈!我最喜歡戶型十!你呢
閱讀次數:750268次
農村6萬元建一層小別墅圖,你敢相信嗎
閱讀次數:567686次
農村5萬塊就能自建房,6套普通房子設計圖分享,你沒看錯!
閱讀次數:419410次
8套農村漂亮三間平房圖片,非常適合在農村修建!
閱讀次數:411197次
農村自建房化糞池怎么做?附方案及施工過程
閱讀次數:391783次
農村一層三間平房設計圖,告別土氣養老房,讓人忍不住點贊
閱讀次數:350581次
新農村二層樓房圖片造價12萬,挑一套回家建房吧!
閱讀次數:349126次
