
|
最近可能趕上了建房熱潮,很多朋友都在咨詢我。如果你也打算建一棟二層半的小樓房,但是不知道建什么樣的,那就一定要往下看,這三款二層半別墅不僅好看美觀,關鍵還造價低,這么好的別墅錯過了可是要后悔的。今天分享的這三款農村20萬二層半別墅設計圖,希望可以給各位朋友一些靈感。
第一款:農村占地120平方米二層半別墅設計圖,造價20萬左右
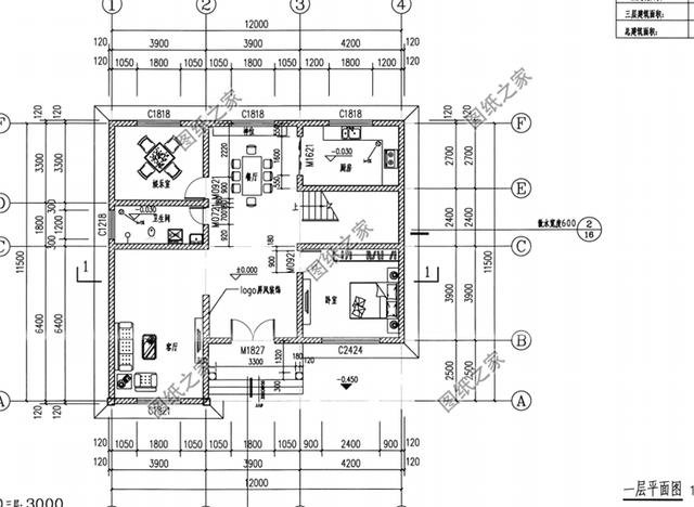
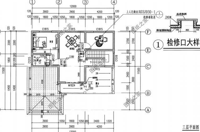
![]() 圖紙介紹:這款別墅占地120平米左右,造價低,外觀設計結合了中式和歐式,簡單大氣。露臺空間大,可以種植花草。 占地面積:12.0m*11.5m,一層占地120平方米左右; 建筑層高:三層; 建筑高度:11.9米(含屋頂); 設計功能: 一 層:客廳、廚房、餐廳、臥室、娛樂室、衛生間; 二 層:客廳、臥室(帶衛生間)、臥室x3、衛生間、休閑區、書房、陽臺; 三 層:臥室(帶衛生間)、休閑區、書房、大露臺、陽臺; ![]() ![]() ![]() 第二款:農村現代二層半別墅設計圖,簡約大氣,造價28萬左右
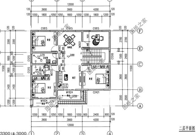
![]() 圖紙介紹:本戶型外觀簡約大方,室內布局合理,臥室較多,功能齊全,總共設有6個臥室,一層有一個主臥可以讓老人來住,比較方便。二層和三層布局相似,分別設有一個帶書房和衣帽間的套間,滿足現代人們的生活需求。三層還有一個陽光房。 占地面積:8.8m*12.26m,107平方米; 建筑層高:二層; 建筑高度:12.16米(含屋頂); 設計功能: 一層戶型:客廳,臥室(帶衛生間),儲藏間,洗衣房,廚房,餐廳; 二層戶型:臥室X2,陽臺,衛生間,主臥(帶書房和衣帽間); 三層戶型:陽臺房,客廳,臥室,衛生間,主臥(帶書房和衣帽間); ![]() ![]() ![]() 第三款:農村新款二層別墅設計圖,占地110平方米,造價20萬左右
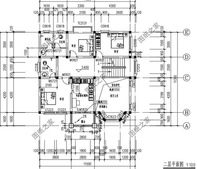
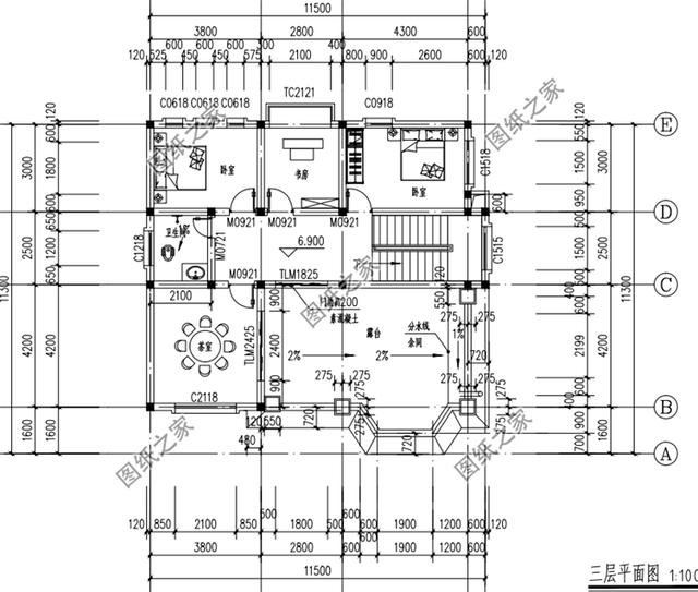
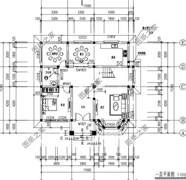
![]() 圖紙介紹:本戶型占地僅110多平方米,占地不大,但是外觀精致好看,室內功能齊全。一樓又棋牌室,二樓有淋浴房,臥室還帶衣帽間和衛生間、書房;三樓帶大露臺,可以晾曬衣物等。 占地面積:11.5m*11.3m,一層占地115平方米左右; 建筑層高:三層; 建筑高度:12.35米(含屋頂); 設計功能: 一 層:玄關、客廳、廚房、餐廳、臥室、棋牌室、衛生間; 二 層:客廳上空、臥室(帶書房,衣帽間,衛生間)、臥室x2、公衛、淋浴房、小露臺; 三 層:臥室x2、書房、茶室、衛生間、大露臺; ![]() ![]() ![]() 以上三款二層半的農村別墅,你覺得哪款最符合您的需求呢?
圖紙之家-專注農村別墅/自建房設計18年,集合國內200余位經驗豐富的設計師,被評為口碑最好的農村建筑設計公司! |

地中海風格二層別墅設計圖及效果圖,外觀有格調
占地:125平方米
120平米左右農村房屋設計圖占地面積適宜,外觀舒適大氣
占地:120平方米
帶地下室獨棟三層高端別墅房圖紙設計圖,復式客廳旋轉樓梯
占地:146.145平方米
160平方米歐式一層半別墅施工設計圖紙13X13米
占地:160平方米
地中海風格二層別墅房屋設計圖,帶外觀效果圖
占地:150平方米
帶小院子的鄉村一層別墅設計圖紙,120平方米
占地:多戶型
簡約實用農村自建房戶型圖,美觀經濟又通透,南北通透住得爽!
占地:160.6平方米
2026最火的現代別墅設計圖農村三層戶型,帶地下室
占地:119.79平方米
三層帶挑空客廳旋轉樓梯,農村這樣建別墅高檔大氣
占地:130.51平方米
帶地下室的農村自建三層半歐式別墅設計圖,看著真豪氣!
占地:142.45平方米
高端三層帶地下室別墅房屋設計圖方案及效果圖
占地:135平方米
10萬農村別墅設計圖小戶型,經濟、耐看、實用
占地:多種戶型
農村10萬元一層小別墅設計圖紙,戶型實用又合理
占地:130平方米
雙戶168平方米小戶型新農村雙拼樓房設計建筑圖紙帶外觀圖
占地:168平方米
農村三間四層樓房設計圖,農村輕奢型四層別墅
占地:160平方米
建房老師傅力薦!這塊二層簡歐設計圖,花錢少、顏值高,必火
占地:131.65平方米
造價便宜的二層雙拼別墅設計圖,造型簡約大氣,進深10米
占地:SP23059
鄉村典型自建房中式二層四合院別墅設計圖,左右對稱設計
占地:430平方米
130平帶閣樓兩層半別墅房屋設計圖,含外觀效果圖
占地:130平方米
兩層中式三合院別墅設計圖紙,堂屋套臥全都有,蓋一棟面子十足
占地:181.93平方米
推薦:10套新農村自建房設計圖,2026年最新設計
閱讀次數:4825737次
100套鄉村別墅圖片大全,2026年最新設計
閱讀次數:2492203次
6款農村蓋一層平房的設計圖,10萬元就能建起來
閱讀次數:1852637次
這11個一層農村自建房別墅火爆了朋友圈!我最喜歡戶型十!你呢
閱讀次數:750268次
農村6萬元建一層小別墅圖,你敢相信嗎
閱讀次數:567686次
農村5萬塊就能自建房,6套普通房子設計圖分享,你沒看錯!
閱讀次數:419410次
8套農村漂亮三間平房圖片,非常適合在農村修建!
閱讀次數:411197次
農村自建房化糞池怎么做?附方案及施工過程
閱讀次數:391783次
農村一層三間平房設計圖,告別土氣養老房,讓人忍不住點贊
閱讀次數:350581次
新農村二層樓房圖片造價12萬,挑一套回家建房吧!
閱讀次數:349126次
