
|
年輕人在家住的不多,都是在外打工,家里只有父母住著,但是父母為我們操勞了大半輩子,是時候讓我們孝順孝順他們了。今天推薦的這三款最大氣的一層別墅圖片,絕對的時尚美觀,內部布局合理,功能齊全,再適合父母住不過了。住在這樣的房子里父母開心我們也跟著開心,何樂而不為呢?
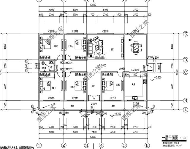
方案一:農村一層自建平房設計圖,占地200平米左右
![]() ![]() ![]() ![]() 圖紙介紹:這款一層別墅占地面積200平米左右,造價20萬左右,款式新穎,沉穩大氣,不僅住著舒服,而且造價經濟實惠。 占地面積:17.5m*12.3m,194平方米左右; 建筑層高:一層; 建筑高度:6.4米(含屋頂); 設計功能:過廳、客廳、餐廳、廚房、臥室×5、衛生間;
方案二:農村面寬22米一層平房設計圖,大戶型平房設計
![]() ![]() 圖紙介紹:本戶型占地233平米左右,造價不到20萬,外觀造型錯落有致,顏色搭配溫馨十足,內部布局合理,共有六間臥室足夠一家人居住。 占地面積:21.82m*11.76m,233.994平方米左右; 建筑層高:一層; 建筑高度:6.698米(含屋頂); 設計功能: 一層戶型:客廳、廚房、餐廳、臥室X4、衛生間、臥室(帶衛生間)X2;
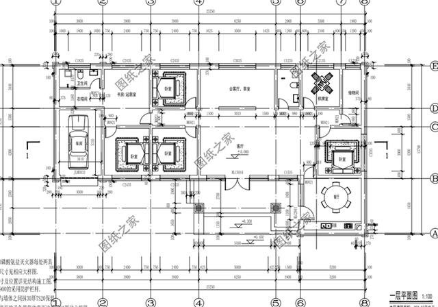
方案三:農村一層平房設計圖,帶車庫設計
![]() ![]() ![]() ![]() 圖紙介紹:本戶型占地260平方米,空間布置的非常合理,多間臥室足夠一家人居住,還有棋牌室和儲藏間。 占地面積:25.2m*13.8m,260平方米左右; 建筑層高:一層; 建筑高度:8.9米(含屋頂); 設計功能:客廳、餐廳、廚房、會客廳、臥室×4、書房、衣帽間、衛生間、棋牌室、儲物間、衛生間、車庫; 要給父母建房的伙伴們千萬不要錯過這三款,哪一款更中你意呢,下方告訴小編。
圖紙之家-專注農村別墅/自建房設計18年,集合國內200余位經驗豐富的設計師,被評為口碑最好的農村建筑設計公司! |

小平米四層自建房屋設計圖紙,戶型簡單實用,占地80平方米
占地:80平方米
新中式二層農村別墅設計圖紙及外觀圖,面寬15米左右
占地:148.86平方米
二層自建房子最新款設計圖,平屋頂簡約經濟,美觀不失大方。
占地:115.64平方米
共用中堂雙拼兄弟三層別墅設計圖,簡歐式風格
占地:230平方米
鄉村一層帶閣樓歐式小別墅,“L”型七字設計戶型
占地:194.218平方米
兩層半樓房設計圖及效果圖,農村二層房屋設計圖推薦
占地:135平方米
2026新中式農村三層別墅圖,外觀漂亮,看一眼就愛上
占地:240平方米
豪華別墅設計圖紙(含效果圖),三層歐式別墅方案精選
占地:117平方米
農村200平一層別墅房屋設計圖,外觀圖片時尚、漂亮
占地:200平方米
新農村小戶型4層自建房三層半別墅設計圖,平屋頂設計
占地:95平方米
150平米簡歐三層農村別墅設計圖,低調又奢華
占地:151.2平方米
農村10萬元一層小別墅設計圖,農村一層自建房屋設計圖
占地:多種戶型
農村120方三層自建房子圖,好看又不貴的三層農村別墅
占地:120平方米
面寬20多米二層新中式雙拼別墅設計圖,外觀漂亮時尚
占地:246.66平方米左
占地200平米簡歐三層農村別墅設計圖,既顯華麗又接地氣
占地:209.27平方米
豪華二層別墅設計圖紙及別墅圖片,旋轉樓梯,內設佛堂,大大落
占地:260平方米
帶地下室+挑空客廳,農村三層洋樓別墅誰家圖在
占地:97.74平方米
120平方三層房子設計圖,漂亮實用農村自建小別墅設計圖
占地:120平方米
氣派的歐式風格三層房子設計圖紙,外觀圖太漂亮了
占地:132平方米
農村一層養老別墅設計圖,14.8x17.9米,戶型對稱,實用布局
占地:193平方米
推薦:10套新農村自建房設計圖,2026年最新設計
閱讀次數:4825737次
100套鄉村別墅圖片大全,2026年最新設計
閱讀次數:2492203次
6款農村蓋一層平房的設計圖,10萬元就能建起來
閱讀次數:1852637次
這11個一層農村自建房別墅火爆了朋友圈!我最喜歡戶型十!你呢
閱讀次數:750268次
農村6萬元建一層小別墅圖,你敢相信嗎
閱讀次數:567686次
農村5萬塊就能自建房,6套普通房子設計圖分享,你沒看錯!
閱讀次數:419410次
8套農村漂亮三間平房圖片,非常適合在農村修建!
閱讀次數:411197次
農村自建房化糞池怎么做?附方案及施工過程
閱讀次數:391783次
農村一層三間平房設計圖,告別土氣養老房,讓人忍不住點贊
閱讀次數:350581次
新農村二層樓房圖片造價12萬,挑一套回家建房吧!
閱讀次數:349126次
