
|
現在農村經濟發展好了,家家戶戶也都有車了,那么就差一棟房子了。大多數人還是會在老家蓋一棟小樓的,千萬不要忘了給自己的愛車一個歸宿哦。今天小編推薦三款帶車庫二層樓房設計圖,造價不超過30萬,經濟實惠,而且戶型非常合理,帶車庫設計,還可以保護好我們的愛車。
方案一:農村二層樓房設計圖,時尚大方,外觀精美
圖紙介紹:本戶型占地137平方米,外觀時尚大方,造型精美,室內布局合理,造價極低,家家戶戶都能建。 占地面積:12.6m*13.2m,137平方米左右; 建筑層高:二層; 建筑高度:10.5米(含屋頂); 設計功能: 一層戶型:客廳、餐廳、廚房、衛生間、主臥、車庫; 二層戶型:主臥(帶書房,衣帽間,露臺,衛生間)、臥室x2、衛生間、露臺; ![]() ![]() ![]() ![]() 方案二:農村歐式二層小別墅設計圖,占地166平方米左右
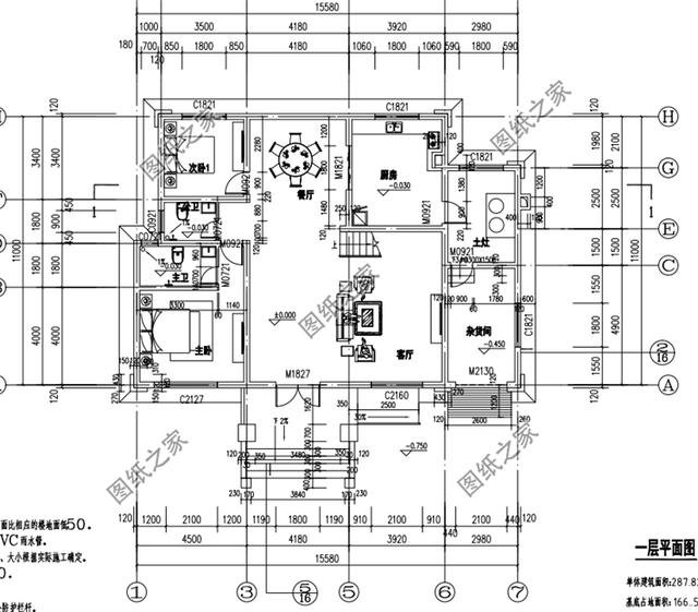
圖紙介紹:本戶型占地166平米左右,設計有超大的落地窗,帶車庫設計,如果不需要車庫,可以當做雜貨間,寬大的中空客廳,二層大露臺+陽臺設計,滿足不同的需要。 占地面積:15.6m*11m,166平方米; 建筑層高:二層; 建筑高度:10.4米(含屋頂); 設計功能: 一層戶型:次臥,公衛,主臥(帶衛生間),客廳,廚房,餐廳,土灶,雜貨間(或車庫); 二層戶型: 次臥X3,儲物間,主臥,公衛,起居室,陽臺,客廳上空,露臺; ![]() ![]() ![]() ![]() 方案三:農村二層別墅設計圖,帶車庫設計,造價不到30萬
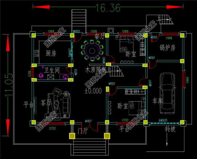
圖紙介紹:本戶型占地168平米左右,主體造價29萬,帶鍋爐房(或儲藏間),空間利用率高,經典的歐式風格優雅大方,非常適合居住。一樓餐廳客廳之間設有間隔,保證了房間整體的空氣清新。側面設獨立車庫,空間開闊,停車便利。二層客廳連著陽臺通風效果好;大露臺設置在房屋整體的東部,可以用于冬季晾曬谷物以及腌魚腌肉。 占地面積:16.36m*11.05m,168.73平方米左右; 建筑層高:二層; 建筑高度:9.499米(含屋頂); 設計功能: 一層戶型:客廳、鍋爐房、餐廳、廚房、臥室x2、衛生間、車庫; 二層戶型:客廳、娛樂室、臥室x4、衛生間、陽臺、露臺; ![]() ![]() ![]() 以上就是帶車庫二層別墅設計圖,建好了家人都喜歡,喜歡收藏哦。
圖紙之家-專注農村別墅/自建房設計18年,集合國內200余位經驗豐富的設計師,被評為口碑最好的農村建筑設計公司! |

80平方米二層房屋設計圖,造價10萬左右
占地:80平方米
經典20萬左右二層別墅設計圖紙,造型頗具設計感的小別墅
占地:多戶型可選
帶車庫的農村四合院別墅設計圖,富貴人家的象征,日子越過越興
占地:219.24平方米
共堂屋雙拼兩層小別墅設計圖,倆兄弟農村自建房首選
占地:198平方米
二層現代風格雙拼別墅設計圖,平屋頂,帶地下室設計
占地:192.47平方米
一層自建別墅設計圖,占地70平不大功能很齊全,非常適合農村養
占地:69.61平方米
一層帶閣樓的自建別墅設計圖,省錢又實用
占地:166平方米
2026最美三層別墅設計圖紙及效果圖,十佳最美農村別墅
占地:151平方米
農村小別墅一層設計圖紙,外觀漂亮極了,130和160兩個戶型
占地:多種戶型可選
200平方米穩重大氣三層雙拼別墅建筑設計圖紙,含效果圖19.04米
占地:200平方米
實用三層新農村住宅設計圖,鄉村別墅設計圖(含外觀效果圖)
占地:102.34平方米
農村平屋頂三層現代風別墅戶型圖,簡約實用經濟顏值高
占地:111.9平方米
經典四合院別墅設計圖,復式挑空客廳讓四合院更高端
占地:175平方米左右
新中式農村三層四合院別墅設計圖,四合院風格的別墅圖
占地:177平方米
50萬左右農村三層別墅設計圖紙,帶大露臺,外觀大氣
占地:150平方米
一層農村自建房別墅設計方案,左右對稱布局好
占地:154平方米
農村三層房屋設計圖紙,三層農村住宅設計效果圖,11米*10米
占地:100平方米
占地90平新中式經濟二層小別墅自建房設計圖,僅15萬
占地:89.3平方米
時尚創意型二層小別墅設計圖,占地面積110平方米,外觀清新典雅
占地:110平方米
超實用超現代兩層自建小樓圖,純粹極簡風格
占地:184平方米左右
推薦:10套新農村自建房設計圖,2026年最新設計
閱讀次數:4825737次
100套鄉村別墅圖片大全,2026年最新設計
閱讀次數:2492203次
6款農村蓋一層平房的設計圖,10萬元就能建起來
閱讀次數:1852637次
這11個一層農村自建房別墅火爆了朋友圈!我最喜歡戶型十!你呢
閱讀次數:750268次
農村6萬元建一層小別墅圖,你敢相信嗎
閱讀次數:567686次
農村5萬塊就能自建房,6套普通房子設計圖分享,你沒看錯!
閱讀次數:419410次
8套農村漂亮三間平房圖片,非常適合在農村修建!
閱讀次數:411197次
農村自建房化糞池怎么做?附方案及施工過程
閱讀次數:391783次
農村一層三間平房設計圖,告別土氣養老房,讓人忍不住點贊
閱讀次數:350581次
新農村二層樓房圖片造價12萬,挑一套回家建房吧!
閱讀次數:349126次
