
|
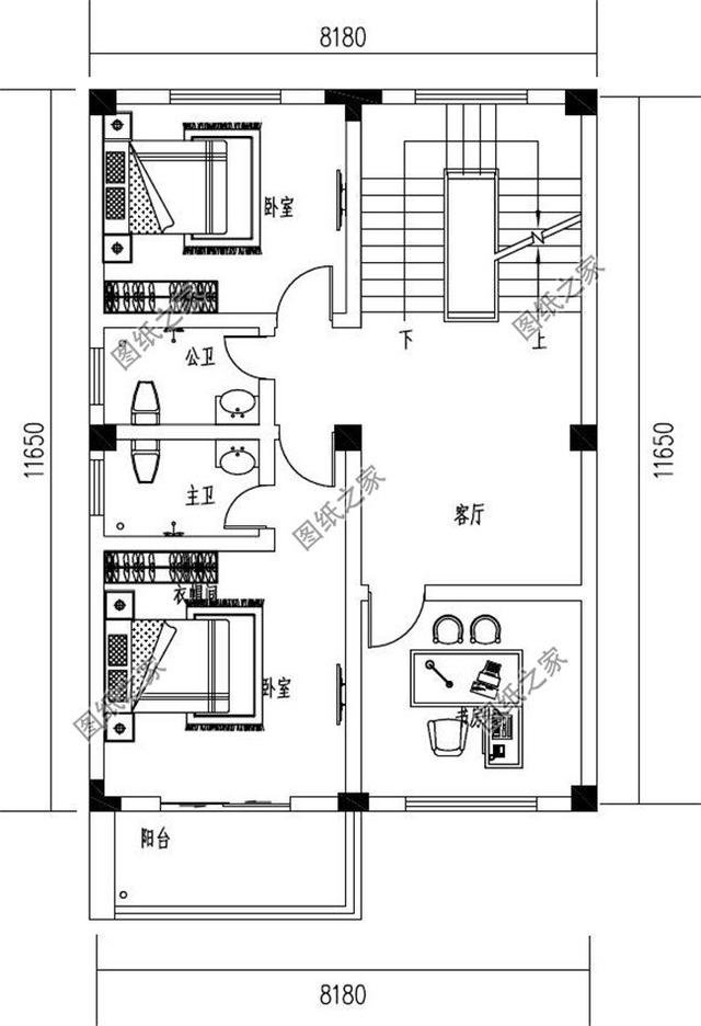
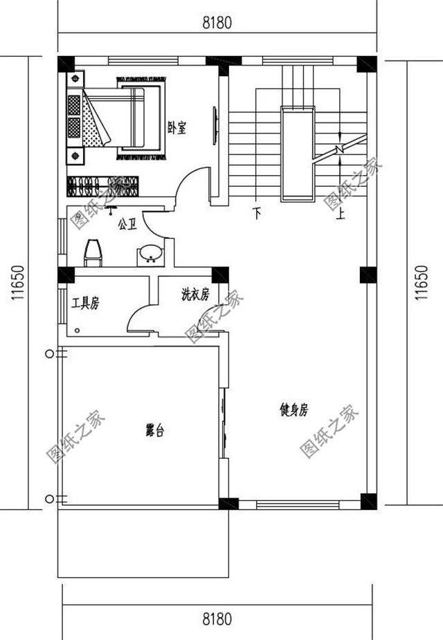
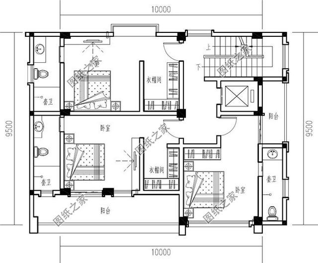
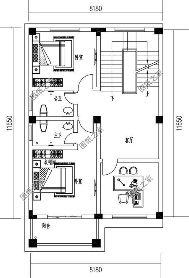
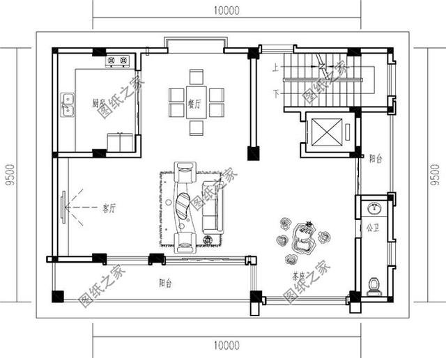
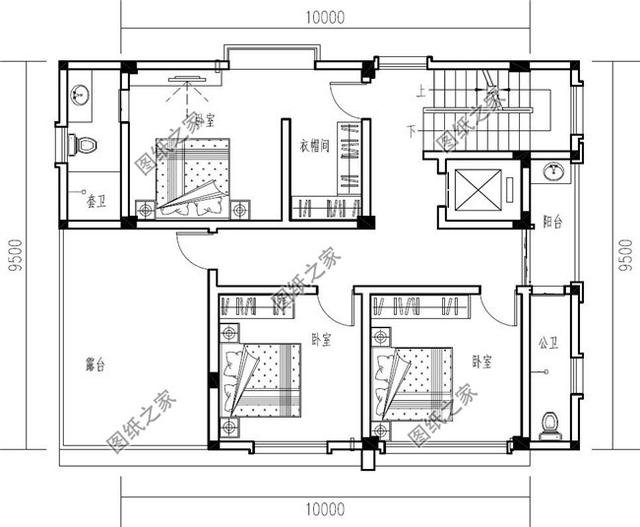
相信到農村的朋友,都了解農村的房子,不論宅基地多大,建起來的房子都是一個風格,幾乎沒有讓人眼前一亮的感覺。可城里大別墅為什么那么漂亮,讓人念念不忘?當然是設計的和沒有設計的區別,其實歸根究底還是對大家對于生活的追求不同,現代許多農村的經濟生活水平都提高了,在衣食住行上,大家也漸漸開始有了自己的追求。既然一輩子只建一次的房子,那就來看看這三款90平米小戶型四層別墅設計圖以及戶型圖,可能有你喜歡的。 第一款:農村占地90平方米左右的簡單別墅設計圖及戶型圖,外觀溫馨![]() 三層半自建房戶型,造價低,屋頂面采用灰色琉璃瓦,外墻面采用黃色瓷磚貼面,勒腳面灰色瓷磚,面采用黃色乳膠漆。多窗多柱的設計,營造了滿滿的歐式浪漫氣息。一層餐廳與廚房相連,干凈衛生;客廳寬敞,可供家人放松休息。二層設有3間臥室,大小合理;陽臺和客廳相連,光線充足;三層臥室設置充裕;四層大露臺寬敞,可以打造成空中花園、露臺燒烤等。 占地面積:9.35m*10.62m,92.17平方米左右; 建筑層高:四層; 建筑高度:15.836米(含屋頂); 設計功能: 一層戶型:客廳、廚房、餐廳、茶室、臥室、衛生間; 二層戶型:客廳、臥室(帶衛生間)、臥室x2、衛生間、陽臺; 三層戶型:臥室(帶衛生間)、臥室x3、衛生間、陽臺; 四層戶型:健身房、多功能區、衛生間、露臺、陽臺 ![]() ![]() ![]() ![]() 第二款:新農村小戶型4層別墅設計圖以及戶型圖,平屋頂設計![]() ![]() ![]() 三層半自建房戶型圖,帶健身房,這款四層別墅是典型的平屋頂設計,平屋頂用在高層的別墅當中是比較美觀的。四層的別墅一般造價都不低,但是建這一棟別墅,不僅顏值有了、面子占了,且能給自己省錢,好 占地面積:8.18m*11.65m,95平方米左右; 建筑層高:四層; 建筑高度:15.74米(含屋頂); 設計功能: 一層戶型:玄關、客廳、廚房、餐廳、衛生間; 二層戶型:客廳、書房、臥室(帶衛生間衣帽間)、臥室、衛生間、陽臺; 三層戶型:客廳、書房、臥室(帶衛生間衣帽間)、臥室、衛生間、陽臺; 四層戶型:臥室、健身房、工具房、洗衣房、衛生間、露臺 ![]() ![]() ![]() ![]() 第三款:農村四層房屋設計圖以及戶型圖,現代風格,帶車庫設計】![]() ![]() ![]() 現代簡約風別墅,追求的是時尚、簡約、實用。多陽臺、多露臺設計,外觀富有立體感,車庫方便有車的家庭停放車輛,避免車子遭受日曬雨淋,更好地保養愛車,室內設有多個臥室,還有多個臥室套間,舒適方便,在農村建一棟,占地小、造價低,最重要的是驚艷全村。 占地面積:10m*9.5m,80平方米左右; 建筑層高:四層; 建筑高度:18.8米(含屋頂); 設計功能: 一層戶型:車庫、衛生間、電梯; 二層戶型:客廳、廚房、餐廳、茶座、衛生間、陽臺、電梯; 三層戶型:臥室(帶衛生間、衣帽間)x2、臥室、衛生間、陽臺、電梯; 四層戶型:臥室(帶衛生間、衣帽間)、臥室x2、衛生間、陽臺、露臺 ![]() ![]() ![]() ![]() 以上就是小編推薦的農村自建90平米小戶型四層別墅設計圖以及戶型圖,有喜歡的就收藏吧!
圖紙之家-專注農村別墅/自建房設計18年,集合國內200余位經驗豐富的設計師,被評為口碑最好的農村建筑設計公司! |

30萬造價三層別墅建筑設計圖紙,戶型利用率高
占地:130平方米
120平方米新農村房屋設計圖紙,新中式效果圖,3層住宅設計方案
占地:120平方米
二層帶架空層的農村別墅設計圖,功能齊全,超越十里八村
占地:130平方米
農村兄弟合建一層雙拼房別墅圖,對稱設計,工整大方!
占地:170平方米
最美農村一層合院設計圖紙,自建一棟火遍十里八鄉
占地:190平方米左右
農村10萬自建一層平房設計圖,占地面積120平米
占地:120平方米
110平左右農村復式二層小樓設計圖,外觀非常受歡迎
占地:112平方米
農村17萬元一層自建別墅設計圖,外觀簡潔,戶型方正
占地:163平方米
簡單經濟一層自建養老房,12米乘9.5米,溫暖舒適施工簡單
占地:103.2平方米
120平方米現代新農村二層自建房設計圖,造型時尚好看
占地:120平方米
簡單實用新農村三層住宅房屋設計圖,時尚大氣,低調
占地:140平方米
最新12x9米一層平房別墅設計圖,好看不貴居住舒適!
占地:108平方米
農村七字型一層別墅圖,獨立廚房設計,鄉村建房優選戶型
占地:159.76平方米
農村15萬元二層小樓圖,占地100平米左右,簡單實用,戶型合理
占地:100平方米
農村四層雙拼別墅房屋設計圖,造型現代、大氣
占地:220平方米
鄉村二層別墅設計圖,含外觀效果圖,設計師推薦
占地:140平方米
農村自建超漂亮中式四合院別墅設計圖,22X25米
占地:473平方米
高端大氣四層復式別墅房屋設計圖,含外觀效果圖
占地:270平方米
100-140平多戶型二層經典新農村小別墅設計建筑圖紙
占地:多種戶型
帶車庫簡約二層小別墅房屋設計圖紙,占地120平米,彎彎的樓梯打
占地:120平方米
推薦:10套新農村自建房設計圖,2026年最新設計
閱讀次數:4825737次
100套鄉村別墅圖片大全,2026年最新設計
閱讀次數:2492203次
6款農村蓋一層平房的設計圖,10萬元就能建起來
閱讀次數:1852637次
這11個一層農村自建房別墅火爆了朋友圈!我最喜歡戶型十!你呢
閱讀次數:750268次
農村6萬元建一層小別墅圖,你敢相信嗎
閱讀次數:567686次
農村5萬塊就能自建房,6套普通房子設計圖分享,你沒看錯!
閱讀次數:419410次
8套農村漂亮三間平房圖片,非常適合在農村修建!
閱讀次數:411197次
農村自建房化糞池怎么做?附方案及施工過程
閱讀次數:391783次
農村一層三間平房設計圖,告別土氣養老房,讓人忍不住點贊
閱讀次數:350581次
新農村二層樓房圖片造價12萬,挑一套回家建房吧!
閱讀次數:349126次
