
|
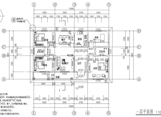
大多數人都覺得農村房子越高越好,這樣顯得比較有檔次,有面子,其實不是的,咱們在農村建房,還是實用一些比較好,房子建的大了反而很空曠,其實大多是子女常年在外打工,父母在家面對空空蕩蕩的房子,還不如一層小平房來的實際。今天給大家推薦進深10米開間15米左右的一層平房,有的十來萬就能建,性價比超高,父母建了肯定喜歡。 第一款:簡單大氣一層自建房設計圖以及戶型圖,四開間設計![]() ![]() ![]() 本戶型為一層四間房屋設計圖,雖然只有一層,但功能齊全、3個臥室+1個書房,足夠一般家庭居住,藍色屋頂、加上淺藍色的外墻,考慮到了農村耐臟性,施工簡單,造價低,適合農村家庭建造,再加上一個小院就完美了。 占地面積:15.00m*9.90m,148平方米左右; 建筑層高:一層; 建筑高度:4.90米(含屋頂); 設計功能:走廊、過廳、客廳、餐廳、廚房、書房、衛生間、主臥、臥室x2
![]() 第二款:現代一層別墅設計圖以及戶型圖,高端氣派![]() ![]() ![]() 經濟美觀一層農村別墅設計圖,造價15萬左右,占地150平米。這款一層圖紙不管是外觀還是內部布局都很適合農村建房。 占地面積:14.0m*9.8m,145平方米左右; 建筑層高:一層; 建筑高度:6.59米(含屋頂); 設計功能:客廳、餐廳、廚房、、臥室×4、衛生間×2 ![]() 第三款:農村10萬元一層小別墅設計圖以及戶型圖,簡約漂亮![]() ![]() ![]() 農村一層自建房屋設計圖,在農村,鳥語花香好不愜意,建一層別墅,是真正的接地氣,推開門就是花園、草坪或者菜園,這種舒服是城里人無法體會到的。 占地面積:15.0m*10.2m,144平方米左右; 建筑層高:一層; 建筑高度:6.411米(含屋頂); 設計功能:客廳、餐廳、廚房、臥室(帶衛生間)、臥室×2 ![]() 以上就是小編推薦的三款農村一層自建房設計圖以及戶型圖,有喜歡的就給自己父母看看吧!
圖紙之家-專注農村別墅/自建房設計18年,集合國內200余位經驗豐富的設計師,被評為口碑最好的農村建筑設計公司! |

農村三間一層別墅設計圖,經濟實用還好看
占地:139.56平方米
經典20萬左右二層別墅設計圖紙,造型頗具設計感的小別墅
占地:多戶型可選
超實用的農村一層別墅設計圖,經濟實惠養老自住都不錯,
占地:128.35平方米
農村二層小別墅自建房屋設計圖,客廳中空,占地150平米
占地:150平方米
11X10米三層別墅農村自建房設計圖,復式挑空客廳
占地:119.08平方米
自建一層農村別墅圖,經濟實用新選擇,建房必備參考戶型!
占地:142.88平方米
超現代風格平頂別墅設計圖,外觀時尚,80、90很喜歡
占地:112.18平方米
農村二層半別墅設計圖,簡單實用,造價低
占地:140平方米
160平方米三層帶大露臺的復式別墅設計圖紙
占地:155平方米
210平米新農村自建二層施工圖紙,預留電梯位,美觀大氣舒適實用
占地:208.5平方米
面寬11米現代風二層小別墅,平屋頂設計,緊跟潮流時尚前衛
占地:94.43平方米
農村一層雙拼別墅設計方案,豐富的室內空間配置,滿足您的生活
占地:358.46平方米
新款中式二層四合院住宅設計圖,農村自建帶露臺設計
占地:223平方米
11x9三層別墅房屋設計圖,含效果圖片
占地:97平方米
小戶型現代新農村三層房屋設計建筑圖及效果圖
占地:108平方米
最新款二層鄉下別墅設計圖,新中式風格,24萬建好主體
占地:150.94平方米
帶地下室的一層別墅設計圖,農村自建房比較合適
占地:206平方米
新農村三拼別墅三戶連體別墅設計圖,設計新穎美觀
占地:380平方米
農村二層中式三合院設計圖,這才是國人該建的房子
占地:175.58平方米
農村中式四合院房屋圖片及設計圖,白墻黛瓦的江南風格
占地:337平方米
推薦:10套新農村自建房設計圖,2026年最新設計
閱讀次數:4825737次
100套鄉村別墅圖片大全,2026年最新設計
閱讀次數:2492203次
6款農村蓋一層平房的設計圖,10萬元就能建起來
閱讀次數:1852637次
這11個一層農村自建房別墅火爆了朋友圈!我最喜歡戶型十!你呢
閱讀次數:750268次
農村6萬元建一層小別墅圖,你敢相信嗎
閱讀次數:567686次
農村5萬塊就能自建房,6套普通房子設計圖分享,你沒看錯!
閱讀次數:419410次
8套農村漂亮三間平房圖片,非常適合在農村修建!
閱讀次數:411197次
農村自建房化糞池怎么做?附方案及施工過程
閱讀次數:391783次
農村一層三間平房設計圖,告別土氣養老房,讓人忍不住點贊
閱讀次數:350581次
新農村二層樓房圖片造價12萬,挑一套回家建房吧!
閱讀次數:349126次
