
|
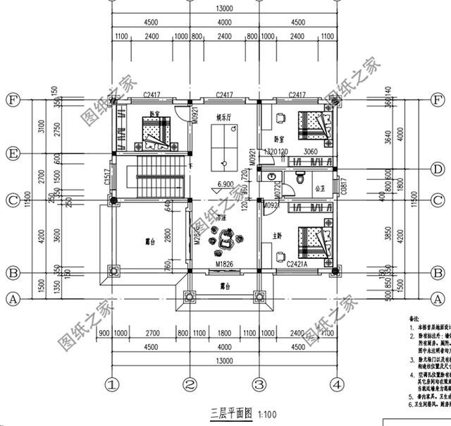
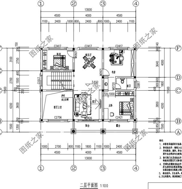
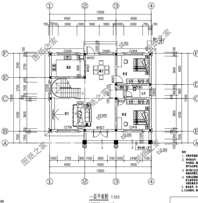
現在農村的地是非常的難有,誰家要是有個百平的宅基地那可真是一件非常幸福的事情。雖然百平不算是很大,但是也夠一家人住了,實在不夠的可以往高了建。今天給大家分享三款農村兩層半別墅設計圖,外觀簡約大方,室內布局合理,一家人住 款式一:農村二層半別墅社酒桶,占地110平米左右圖紙介紹:這款農村二層半房子占地110平米,造價25萬左右,外觀經典時尚,左側多邊形設計,大門突出,凸顯屋檐效果,紅色屋頂非常喜慶;室內布局合理,二樓帶陽臺方便陽光照進室內,三樓帶大露臺。 占地面積:10.8m*11.3m,一層占地110平方米左右; 建筑層高:三層; 建筑高度:12.08米(含屋頂); 設計功能: 一 層:客廳、廚房、餐廳、臥室(帶衛生間)、儲藏間、衛生間; 二 層:客廳上空、休息廳、臥室(帶衛生間,衣帽間)、臥室(帶衛生間)、陽臺; 三 層:臥室(帶衛生間)x3、大露臺; ![]() ![]() ![]() ![]() 款式二:農村二層半樓房設計圖,占地108平方米,外觀大氣圖紙介紹:這款二層半別墅占地108平米,帶露臺設計,外觀清新靚麗,典型的歐式外觀,占地方正,采用紅色坡屋頂,給人溫暖的感覺! 占地面積:11.32m*9.52m,108.795平方米; 建筑層高:三層; 建筑高度:12.303米(含屋頂); 設計功能: 一層戶型:客廳、餐廳、廚房、臥室x2、衛生間; 二層戶型:休閑娛樂室、小書房、、臥室x4、衛生間、陽臺; 三層戶型:臥室x2、衛生間、露臺; ![]() ![]() ![]() ![]() 款式三:農村占地130平米兩層半別墅設計圖,客廳挑空設計 圖紙介紹:本戶型占地136平米,主體造價30來萬,客廳挑空設計,帶大露臺。室內布局通透大氣,多間臥室滿足家中人口居住需求,三樓還設計了一個露臺供大家使用。 占地面積:13.0m*11.5m,一層占地136平方米左右; 建筑層高:三層; 建筑高度:12.78米(含屋頂); 設計功能: 一 層:客廳、廚房、餐廳、臥室×2、衛生間; 二 層:客廳上空、客廳、臥室(帶書房,衛生間)、臥室、娛樂廳、陽臺; 三 層:茶室、娛樂廳、臥室x3、衛生間、大露臺; ![]() ![]() ![]() ![]() 怎么樣,看完這三款別墅的外觀大家愛上了嗎?歡迎下方留言。
圖紙之家-專注農村別墅/自建房設計18年,集合國內200余位經驗豐富的設計師,被評為口碑最好的農村建筑設計公司! |

農村三層兄弟雙拼別墅設計圖及效果圖片,14X12米自建戶型
占地:154平方米
新農村二層帶露臺經濟型小別墅設計圖紙,含外觀效果圖
占地:120平方米
130平方米復式三層別墅房屋設計圖,含外觀效果圖
占地:130平方米
150平方米農村二層房屋建筑設計圖,15.2x9.4米
占地:148平方米
造價低經濟簡單的二層農村自建房圖紙設計,簡潔實用
占地:136.08平方米
簡單農村二層平屋頂房屋設計圖,外觀簡潔、大方
占地:200平方米
經典四合院別墅設計圖,復式挑空客廳讓四合院更高端
占地:175平方米左右
驚艷全村的三層別墅設計圖,12×16米美觀大氣布局超合理
占地:179.8平方米
200平米二層自建房別墅設計圖,外觀漂亮布局實用
占地:207.09平方米
農村兄弟雙拼別墅三層,美觀氣派,室內布局合理實用
占地:300平方米
新農村中式一層三合院效果圖及全套設計圖,喜歡合院的有福了
占地:118平方米
最美中式合院別墅圖,這才是中國農村該建的房子,如此精美絕倫
占地:380平方米
農村三層蓋房設計圖大全,最新的設計,最新的戶型
占地:150平方米
好看又簡單的二層樓房設計圖紙,戶型還實用
占地:150平方米
2026最新兄弟簡歐雙拼別墅設計圖紙,單戶130平米左右
占地:260平方米
人字坡紅磚一層別墅設計圖,簡約低調超實用,這樣的房子人人能
占地:136.51平方米
舒適大方三層房屋設計圖紙及圖片,占地150平米,布局合理,臥室
占地:150平方米
130平方米新農村自建三層別墅設計施工圖,13x11米
占地:130平方米
新中式三層雙拼別墅設計圖,外觀圖片美觀、大氣
占地:176平方米
最新五十萬農村二層別墅設計圖紙,客廳中空
占地:195平方米
推薦:10套新農村自建房設計圖,2026年最新設計
閱讀次數:4825737次
100套鄉村別墅圖片大全,2026年最新設計
閱讀次數:2492203次
6款農村蓋一層平房的設計圖,10萬元就能建起來
閱讀次數:1852637次
這11個一層農村自建房別墅火爆了朋友圈!我最喜歡戶型十!你呢
閱讀次數:750268次
農村6萬元建一層小別墅圖,你敢相信嗎
閱讀次數:567686次
農村5萬塊就能自建房,6套普通房子設計圖分享,你沒看錯!
閱讀次數:419410次
8套農村漂亮三間平房圖片,非常適合在農村修建!
閱讀次數:411197次
農村自建房化糞池怎么做?附方案及施工過程
閱讀次數:391783次
農村一層三間平房設計圖,告別土氣養老房,讓人忍不住點贊
閱讀次數:350581次
新農村二層樓房圖片造價12萬,挑一套回家建房吧!
閱讀次數:349126次
