
|
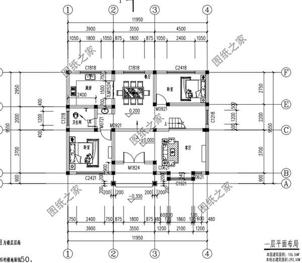
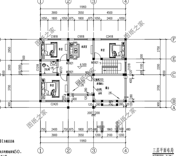
隨著新農村生活水平的不斷提高,在老家建房子的人也越來越多,一點不比城里買房的人少,畢竟只有老家才是自己最終的歸宿。尤其是在南方,建高層的比較多,而且款式也越來越好看。今天推薦的這三款南方流行的三層別墅效果圖,外觀簡單,內部功能齊全,比較適合南方自建。 款式一:農村三層樓房設計圖,占地100平米左右,戶型方正圖紙介紹:本戶型占地100平米左右,戶型方正,外觀時尚大氣,布局精巧,室內功能區分合理。總體造價也非常經濟,主體30來萬,適合農村建造。 占地面積:11.9m*9.5m,一層占地106平方米左右; 建筑層高:三層; 建筑高度:11.9米(含屋頂); 設計功能: 一 層:客廳、廚房、餐廳、臥室×2、衛生間; 二 層:起居室、臥室(帶書房)、臥室x3、衛生間、露臺; 三 層:臥室x3、衛生間、露臺; ![]() ![]() ![]() ![]() 款式二:農村三層別墅設計圖,占地130平米,戶型利用率高圖紙介紹:本戶型占地130平米左右,主體造價30來萬,戶型利用率高,外觀設計經典時尚,有多個飄窗設計,延伸室內的空間,一樓客廳空間非常大,方便農村置辦紅白事,三樓設有方形大露臺,視野開闊,活動空間充足。 占地面積:11.76m*10.76m,130平方米左右; 建筑層高:三層; 建筑高度:13.44米(含屋頂); 設計功能: 一層戶型:客廳、神臺、餐廳、廚房、臥室(帶衛生間)、儲物間、洗衣房、衛生間; 二層戶型:客廳上空、客廳、臥室x2、主臥(帶衛生間)、衛生間、陽臺; 三層戶型:客廳、臥室x2、臥室(帶衛生間)、衛生間、陽臺、露臺; ![]() ![]() ![]() ![]() 款式三:農村三層別墅設計圖,占地110平米左右,簡歐風格圖紙介紹:這款三層別墅占地110平米左右,簡歐式風格,采用南北通透的設計,在農村建房中是比較常見的。室內客廳和廚房餐廳的空間很寬敞,二層三個房間三個衛生間,一一對應這樣會比較衛生也比較方便。三層的大露臺可供日常休閑使用。 占地面積:9.92m*10.46m,110平方米左右; 建筑層高:三層; 建筑高度:12.87米(含屋頂); 設計功能: 一層戶型:客廳、餐廳、廚房、臥室(帶衛生間)、衛生間; 二層戶型:小書房、臥室(帶衛生間)x3、衣帽間、陽臺; 三層戶型:功能房間、雜物間、臥室(帶衛生間)、露臺; ![]() ![]() ![]() ![]() 這三套別墅各位朋友最想建哪一個呢?喜歡哪款趕快收藏。
圖紙之家-專注農村別墅/自建房設計18年,集合國內200余位經驗豐富的設計師,被評為口碑最好的農村建筑設計公司! |

新農村兩層半小洋樓房設計圖,預算33萬左右
占地:多種戶型
二層農村自建四合院設計圖,中式外觀古樸有質感200-300平方米
占地:270平方米左右
美觀大氣二層歐式別墅設計圖,外觀效果圖高端上檔次
占地:189.8平方米
最新五十萬農村二層別墅設計圖紙,客廳中空
占地:195平方米
260平方米仿歐式二層別墅設計圖紙及效果圖,22X12米
占地:260平方米
新中式農村兄弟合建三層雙拼別墅全套設計圖紙,3款戶型方案
占地:多種戶型
150平二層別墅房屋設計圖,現代風格,造型精致
占地:150平方米
預算20萬左右三層別墅設計圖紙,新農村自建房推薦
占地:118平方米
一層半房屋別墅設計圖,帶閣樓圖、帶露臺,外觀新穎時尚
占地:130平方米
兩層半30萬農村自建房別墅設計圖紙,客廳挑空,帶大露臺
占地:130平方米
最新12x9米一層平房別墅設計圖,好看不貴居住舒適!
占地:108平方米
帶地下室二層雙拼別墅設計圖,兄弟和睦又省錢,全家人都滿意!
占地:308平方米
獨棟別墅設計戶型圖帶外觀效果圖,雙向樓梯設計
占地:155平方米
農村120平米兩層樓的房子設計圖,外觀新穎
占地:120平方米
新農村二層住宅設計圖紙,簡單別墅設計圖(含效果圖)
占地:77.6平方米
農村27萬二層自建別墅設計圖,占地140平米左右,戶型極好
占地:140平方米
3款簡單舒適二層別墅設計圖,低調配色,造型簡單大氣
占地:多戶型可選
140平方米現代偏中式實用型三層房屋設計圖紙,新農村建房推薦
占地:142平方米
實用型二層別墅設計方案,占地120平米簡單大方最耐看
占地:120平方米
農村一層7字型平房別墅設計圖,“L”自行戶型,外觀簡約低調
占地:213.39平方米
推薦:10套新農村自建房設計圖,2026年最新設計
閱讀次數:4825737次
100套鄉村別墅圖片大全,2026年最新設計
閱讀次數:2492203次
6款農村蓋一層平房的設計圖,10萬元就能建起來
閱讀次數:1852637次
這11個一層農村自建房別墅火爆了朋友圈!我最喜歡戶型十!你呢
閱讀次數:750268次
農村6萬元建一層小別墅圖,你敢相信嗎
閱讀次數:567686次
農村5萬塊就能自建房,6套普通房子設計圖分享,你沒看錯!
閱讀次數:419410次
8套農村漂亮三間平房圖片,非常適合在農村修建!
閱讀次數:411197次
農村自建房化糞池怎么做?附方案及施工過程
閱讀次數:391783次
農村一層三間平房設計圖,告別土氣養老房,讓人忍不住點贊
閱讀次數:350581次
新農村二層樓房圖片造價12萬,挑一套回家建房吧!
閱讀次數:349126次
