
|
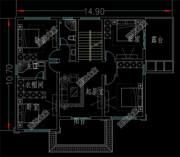
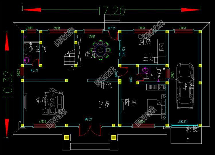
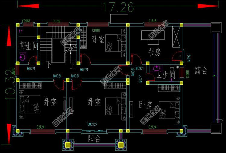
如果家里的宅基地足夠大,那么建一棟四開間的別墅是不成問題的,因為農村家庭一般人都很多,三代四代同堂一起住是再正常不過了。今天就給大家分享三款四開間大三層別墅設計圖,外觀大氣美觀,戶型非常寬敞,四開間讓人看了眼前一亮,一看就非常有氣勢,喜歡的朋友可以收藏。 戶型一:農村三層別墅設計圖,占地163平米,帶車庫設計圖紙介紹:這款三層別墅占地163平米左右,氣派有檔次,帶堂屋和車庫設計,外觀造型簡潔大方,大面積的開窗設計,美觀的同時又保證了居住舒適度。功能分區合理,房間尺度設計適宜,采光通風良好,富有時代氣息。 占地面積:17.26m*10.32m,163.8平方米左右; 建筑層高:三層; 建筑高度:12.831米(含屋頂); 設計功能: 一層戶型:堂屋、神位、客廳、餐廳、廚房、臥室(帶衛生間)、衛生間、車庫; 二層戶型:書房、臥室x3、臥室(帶衛生間)、衛生間、陽臺、露臺; 三層戶型:健身房、臥室、臥室(帶衛生間)、衛生間、陽臺、露臺x2; ![]() ![]() ![]() ![]() 戶型二:農村三層別墅設計圖,占地200多平米,帶車庫設計圖紙介紹:本戶型占地200多平米,帶車庫和露臺設計,外觀豪華大氣。一層帶車庫,茶室,神位,衣帽間。二三層帶兩個大露臺和兩個大陽臺,室內設計非常合理。 占地面積:16.5m*14.2m,207平方米左右; 建筑層高:三層; 建筑高度:14米(含屋頂); 設計功能: 一層戶型:洗衣房,餐廳,客廳,神位,茶室,廚房,衣帽間,臥室,衛生間,沖涼房,車庫; 二層戶型:臥室X4,衛生間X2,客廳,陽臺,露臺; 三層戶型:臥室X4,衛生間X2,客廳,陽臺,露臺; ![]() ![]() ![]() ![]() 戶型三:農村三層別墅設計圖,占地137平米,面寬15米左右圖紙介紹:本戶型占地137平米,面寬15米左右,外觀采用米黃色外墻和藍色屋頂的色彩組合,大氣端莊,襯托出主人品位。全屋一共布置九間臥室,四代同堂也足夠的居住空間,逢年過節時,親戚朋友也有可留宿的房間。為了彌補沒有院子的遺憾,南向布置大露臺,白天可以聽風賞花喝喝茶,夜晚可以聽歌放松看星星。 占地面積:14.9m*10.7m,137.7平方米左右; 建筑層高:三層; 建筑高度:13.065米(含屋頂); 設計功能: 一層戶型:前廳、客廳、餐廳、廚房、臥室(帶衛生間)、臥室、衛生間; 二層戶型:起居室、臥室(帶衛生間)、臥室x3、衛生間、陽臺; 三層戶型:起居室、臥室x3、衛生間、陽臺; ![]() ![]() ![]() ![]() 喜歡大開間戶型的朋友可以收藏這三款,記得點贊收藏。
圖紙之家-專注農村別墅/自建房設計18年,集合國內200余位經驗豐富的設計師,被評為口碑最好的農村建筑設計公司! |

160平方米農村三層小別墅設計圖紙,13.8x12.7米
占地:163平方米
簡單實用農村自建房五間一層別墅設計圖,多款戶型
占地:多戶型可選
100平方三層樓房設計圖及圖片,戶型設計簡約時尚
占地:100平方米
新農村三層自建房屋設計圖,含外觀圖片
占地:136平方米
歐式小別墅設計圖紙帶效果圖,二層歐式小別墅設計方案展示
占地:166平方米
面寬8米的新農村三層自建房設計圖平屋頂,全套cad圖紙+效果圖
占地:115平方米
農村自建二層樓房設計圖及效果圖,二層房屋圖推薦
占地:105平方米
農村兩開間農村別墅設計圖,典雅大氣,完全不輸大戶型
占地:116.26平方米
適合農村自建四合院圖片,中式二層四合院別墅設計施工圖紙
占地:232平方米
經濟型實用歐式一層小樓房別墅平房設計圖,11X10米
占地:103平方米
大氣農村三層歐式雙拼別墅全套施工圖紙,帶堂屋設計,外觀圖片
占地:196.056平方米
鄉村一層平房設計圖,面寬13米平面圖及造型圖
占地:170平方米
一層帶商鋪的四層樓房別墅設計圖紙和效果圖,房屋戶型圖
占地:133平方米
三層帶車庫樓中樓建房別墅圖紙,占地130平米左右,戶型室內布局
占地:130平方米
高端大氣的農村四層樓房別墅設計圖,戶型真不錯,占地130多平
占地:135.31平方米
一層半房屋別墅設計圖,帶閣樓圖、帶露臺,外觀新穎時尚
占地:130平方米
面寬13米帶堂屋三層農村別墅圖,新中式大氣風格
占地:151.58平方米
平屋頂12米寬別墅三層設計圖,平頂照樣建的漂亮
占地:129.6平方米
異形宅基地二層農村別墅設計圖,現代風時尚又大氣
占地:242.03平方米
155平方米新三層全套別墅設計資料,15x10米
占地:158平方米
推薦:10套新農村自建房設計圖,2026年最新設計
閱讀次數:4825737次
100套鄉村別墅圖片大全,2026年最新設計
閱讀次數:2492203次
6款農村蓋一層平房的設計圖,10萬元就能建起來
閱讀次數:1852637次
這11個一層農村自建房別墅火爆了朋友圈!我最喜歡戶型十!你呢
閱讀次數:750268次
農村6萬元建一層小別墅圖,你敢相信嗎
閱讀次數:567686次
農村5萬塊就能自建房,6套普通房子設計圖分享,你沒看錯!
閱讀次數:419410次
8套農村漂亮三間平房圖片,非常適合在農村修建!
閱讀次數:411197次
農村自建房化糞池怎么做?附方案及施工過程
閱讀次數:391783次
農村一層三間平房設計圖,告別土氣養老房,讓人忍不住點贊
閱讀次數:350581次
新農村二層樓房圖片造價12萬,挑一套回家建房吧!
閱讀次數:349126次
