
|
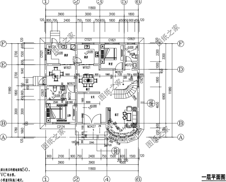
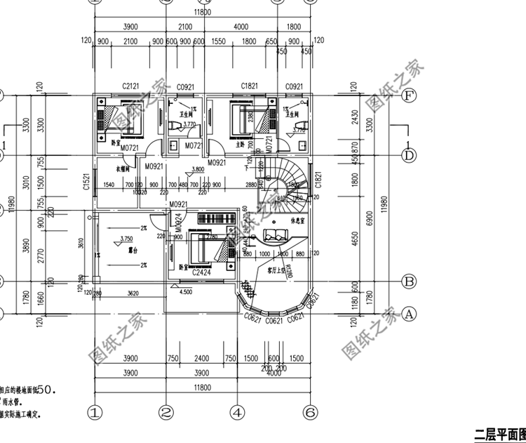
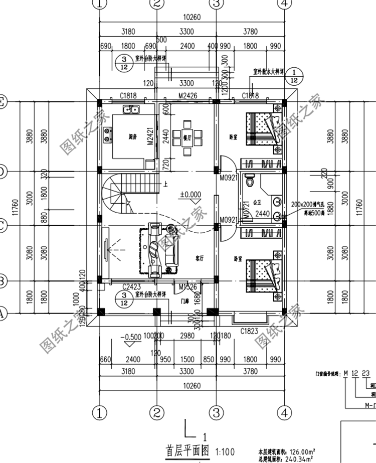
農村自建房有的時候只是跟風,看到別人家建好看的房子自己也想跟著建,但是完全不知道自己想要的到底是什么樣的戶型,導致建出來有時候又不喜歡,所以在建房之前一定要選對戶型。今天就給大家推薦三層農村占地130平米二層別墅設計圖,南北戶型都適合的款式,下半年建房不用愁了。 戶型一:農村二層別墅設計圖,占地130平米,戶型簡單大方圖紙介紹:這款二層別墅自建房占地130平米,戶型簡單大方,漂亮又接地氣。設計雙廚房雙餐廳,和父母同住在適合不過了。外型精美配色溫暖,帶有大露臺,是一個很溫暖很享受的家。 占地面積:11.8m*11.98m,130平方米左右; 建筑層高:二層; 建筑高度:9.9米(含屋頂); 設計功能: 一層戶型:玄關、客廳、餐廳×2、廚房×2、衛生間、主臥(帶衛生間)、臥室; 二層戶型:客廳上空、休息室、主臥(帶衛生間)、臥室(帶衣帽間)、臥室、衛生間、陽臺、大露臺; ![]() ![]() ![]() ![]() 戶型二:農村二層自建房設計圖,占地130平米,主體預算不到20萬圖紙介紹:本戶型占地130平米左右,主體預算不到20萬,外觀好看大方,清新不落俗套,室內布局合理,四間臥室足夠一家人居住。 占地面積:10.26m*11.76m,130平方米左右; 建筑層高:二層; 建筑高度:6.7米(含屋頂); 設計功能: 一層戶型:客廳、餐廳、廚房、衛生間、主臥×2、門廊; 二層戶型:客廳上空、起居室、臥室x2、衛生間; ![]() ![]() ![]() ![]() 戶型三:農村二層別墅設計圖,占地132平米,簡歐風格設計圖紙介紹:這款二層別墅占地132平米,簡歐風格設計,戶型方正,別墅低調奢華有內涵,整個外觀典雅大氣。一層動靜分離,樓梯隔開兩個區域,使其互不干擾。衛生間緊挨房間,老人起宿方便。其他的也沒什么好說的,應有盡有,滿足日常生活。二樓四臥兩衛,書房用來辦公學習,休閑室作為休閑娛樂 占地面積:11.45m*11.6m,132.4平方米左右; 建筑層高:二層; 建筑高度:9.695米(含屋頂); 設計功能: 一層戶型:客廳、娛樂室、餐廳、廚房、臥室(帶衛生間)、衛生間; 二層戶型:客廳、休閑室、臥室(帶衛生間)、臥室x3、衛生間、陽臺; ![]() ![]() ![]() 喜歡這三款戶型的朋友記得收藏,千萬不要錯過。
圖紙之家-專注農村別墅/自建房設計18年,集合國內200余位經驗豐富的設計師,被評為口碑最好的農村建筑設計公司! |

農村小戶型三層復式樓房設計圖,100平左右
占地:100平方米
造價40萬三層大氣自建房設計圖紙,鄉村別墅建造圖
占地:159.609平方
面寬20米四開間二層別墅,火爆全村的戶型,美好生活的起點
占地:245.73平方米
110平方米農村三層復式房屋施工圖,通透時尚,低調又奢華
占地:107.98平方米
新農村三層小別墅設計圖紙,占地160平左右,好看不貴
占地:160平方米
新農村二層半房屋設計圖紙及效果圖,別墅設計圖精選
占地:113平方米
三十萬農村別墅設計圖帶外觀圖片,30萬造價別墅展示
占地:125平方米
農村兄弟合建一層雙拼房別墅圖,對稱設計,工整大方!
占地:170平方米
150平左右新農村自建房設計圖,含外觀效果圖
占地:150平方米
二層樓房設計圖,占地120平米左右,符合現代農村的建房政策
占地:120平方米
三層現代別墅設計圖紙,全套私人別墅圖紙(含外觀效果圖)
占地:170.38平方米
140平方米歐式三層別墅建筑設計圖紙,復式結構
占地:140平方米
人字坡房屋一層別墅設計圖,簡約低調超實用,、
占地:101.17平方米
地中海風格二層別墅設計圖方案,含外觀效果圖
占地:130平方米
簡易農村別墅房子設計圖,好看實惠,施工也簡單
占地:200平方米
鄉村自建獨棟三層別墅樓房設計圖,預算30萬內
占地:120平方米
爆火農村養老房設計:16 米面寬一層戶型,自住養老全拿捏
占地:169.87平方米
最好看大氣的豪華三層樓房設計圖,客廳中空,旋轉樓梯
占地:340平方米
別致美觀的簡歐二層別墅房屋設計圖,含外觀效果圖
占地:145平方米
15×12米一層農村寶藏戶型,適合養老房,看完鄰居直接要圖紙!
占地:180平方米
推薦:10套新農村自建房設計圖,2026年最新設計
閱讀次數:4825737次
100套鄉村別墅圖片大全,2026年最新設計
閱讀次數:2492203次
6款農村蓋一層平房的設計圖,10萬元就能建起來
閱讀次數:1852637次
這11個一層農村自建房別墅火爆了朋友圈!我最喜歡戶型十!你呢
閱讀次數:750268次
農村6萬元建一層小別墅圖,你敢相信嗎
閱讀次數:567686次
農村5萬塊就能自建房,6套普通房子設計圖分享,你沒看錯!
閱讀次數:419410次
8套農村漂亮三間平房圖片,非常適合在農村修建!
閱讀次數:411197次
農村自建房化糞池怎么做?附方案及施工過程
閱讀次數:391783次
農村一層三間平房設計圖,告別土氣養老房,讓人忍不住點贊
閱讀次數:350581次
新農村二層樓房圖片造價12萬,挑一套回家建房吧!
閱讀次數:349126次
