
|
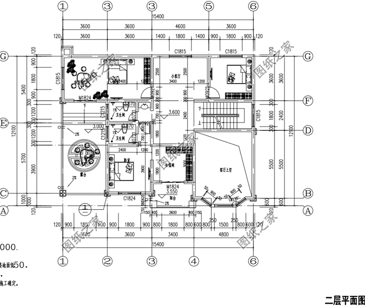
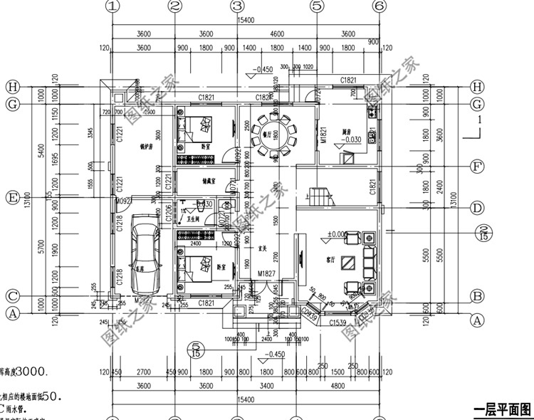
農村房子想要建得好看,關鍵就在于兩個點,一是設計二是施工。現在建房子的人越來越多,如果沒有好的審美和設計,那么花再多的錢建出來的房子也不會太好看,相反只要有了專業的設計圖紙,即便是預算不高,也能建出大氣優雅的好房子。今天就給大家推薦三款漂亮二層樓房外觀效果圖,非常適合回農村建房的朋友。 款式一:農村二層別墅設計圖,面寬12米左右,歐式風格設計圖紙介紹:這款二層別墅占地156平米,面寬12米左右,歐式風格,室內5室3廳帶大露臺設計。大落地窗時尚大氣,使別墅采光更通透。入戶是堂屋,結合農村的生活習慣,方便實用。作為進出別墅的過渡區間,客廳設在堂屋西側,面積充裕,方便接待來訪客人;廚房餐廳在后,潔污分區。兩個臥室,大小舒適。二層起居空間,客廳連著陽臺,通風采光極好,露臺開闊活動場地,可打造一個極享受的露臺花園。 占地面積:11.8m*15.1m,156.54平方米左右; 建筑層高:二層; 建筑高度:9.85米(含屋頂); 設計功能: 一層戶型:堂屋、客廳、餐廳、廚房、臥室(帶衛生間)、臥室、衛生間; 二層戶型:客廳、臥室(帶衛生間)、臥室x2、衛生間、露臺、陽臺; ![]() ![]() ![]() 款式二:農村二層自建房設計圖,占地170平米左右,帶車庫設計圖紙介紹:本戶型占地170平米左右,帶車庫設計,外觀中式與現代的完美結合,實用省錢非常劃算方正的戶型,簡約時尚,沒有太多的裝飾,加上歐式羅馬柱和落地窗就顯得格外豪華氣派,覆蓋灰色的琉璃瓦片,渾然一體,搭配剛剛好。 占地面積:17.3m*11.3m,170.84平方米左右; 建筑層高:二層; 建筑高度:9.635米(含屋頂); 設計功能: 一層戶型:客廳、廚房、餐廳、臥室x2、衛生間x2、儲藏間、車庫; 二層戶型:起居室、臥室x4、衛生間x2、露臺、陽臺; ![]() ![]() ![]() 款式三:農村二層自建房設計圖,占地180平米左右,帶車庫和鍋爐房設計圖紙介紹:這款二層別墅占地180平米左右,帶車庫和鍋爐房設計,寬大的玻璃幕墻和圓拱廊檐的造型,以及開闊的露臺都讓其顯得非常大氣,在這種環境下會客和用餐是非常愉快的。 占地面積:15.4m*13.1m,180平方米左右; 建筑層高:二層; 建筑高度:8.86米(含屋頂); 設計功能: 一層戶型:客廳、餐廳、廚房、衛生間、臥室×2、儲藏間、鍋爐房、車庫; 二層戶型:客廳上空、小客廳、主臥(帶衛生間、衣帽間)、臥室x2、公衛、陽臺、大露臺; ![]() ![]() ![]() ![]() 不知道這三款戶型大家最喜歡哪一款?歡迎下方評論留言。
圖紙之家-專注農村別墅/自建房設計18年,集合國內200余位經驗豐富的設計師,被評為口碑最好的農村建筑設計公司! |

140平方米新農村四層房屋設計圖紙,農村自建推薦
占地:140平方米
實用農村10萬一層小別墅戶型圖及圖紙,全套施工圖
占地:多種面積
90平方米農村二層房屋設計施工圖紙及效果圖,11x8.5米
占地:90平方米
114平方米農村四層別墅設計圖紙及效果圖,11X11米
占地:114平方米
110平方米二層自建小別墅設計CAD施工圖紙帶效果圖,12x13米
占地:110平方米
時尚漂亮的二層小洋樓設計圖,設計師建房都選這個方案
占地:149.27平方米
130平氣派美觀的二層別墅房屋設計圖,含效果圖
占地:130平方米
帶架空層的三層農村別墅設計火了!雨季不怕返潮
占地:147.15平方米
占地105平實用三層樓房別墅設計圖紙,造型方正簡單大氣
占地:105平方米
六開間三層農村自建別墅設計圖,盡享豪華舒適生活
占地:341.91平方米
10×12米三層別墅戶型,挑空大客廳設計,圈粉無數的爆款方案
占地:120平方米
一層中式四合院別墅設計圖,符合國人審美,簡單大氣穩妥沉穩
占地:388平方米
農村三層帶地下室小樓房設計圖,客廳中空,帶書房,旋轉樓梯
占地:130平方米
200多平方米新農村雙拼別墅設計圖紙,堂屋和樓梯共用
占地:207平方米左右
鄉村房屋改建三層房屋設計圖紙,農村樓房設計圖推薦
占地:90平方米
帶車庫現代三層樓房設計圖,外觀效果圖時尚、美觀
占地:160平方米
2026新款新式農村50萬三層別墅圖片,帶地下室,美觀大氣
占地:130平方米左右
現代三層農村房屋設計圖紙及效果圖,帶全套cad建筑圖
占地:95平方米
建房老師傅力薦!這塊二層簡歐設計圖,花錢少、顏值高,必火
占地:131.65平方米
15萬左右新中式二層別墅設計圖平面圖,占地110平米左右
占地:110平方米
推薦:10套新農村自建房設計圖,2026年最新設計
閱讀次數:4825737次
100套鄉村別墅圖片大全,2026年最新設計
閱讀次數:2492203次
6款農村蓋一層平房的設計圖,10萬元就能建起來
閱讀次數:1852637次
這11個一層農村自建房別墅火爆了朋友圈!我最喜歡戶型十!你呢
閱讀次數:750268次
農村6萬元建一層小別墅圖,你敢相信嗎
閱讀次數:567686次
農村5萬塊就能自建房,6套普通房子設計圖分享,你沒看錯!
閱讀次數:419410次
8套農村漂亮三間平房圖片,非常適合在農村修建!
閱讀次數:411197次
農村自建房化糞池怎么做?附方案及施工過程
閱讀次數:391783次
農村一層三間平房設計圖,告別土氣養老房,讓人忍不住點贊
閱讀次數:350581次
新農村二層樓房圖片造價12萬,挑一套回家建房吧!
閱讀次數:349126次
