
|
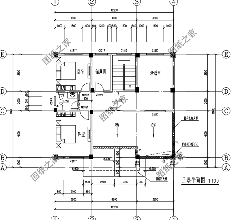
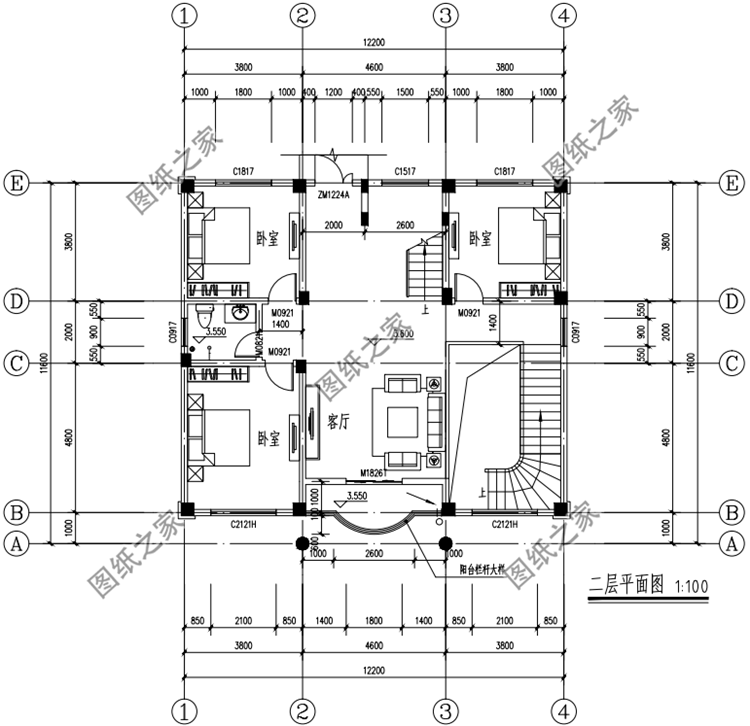
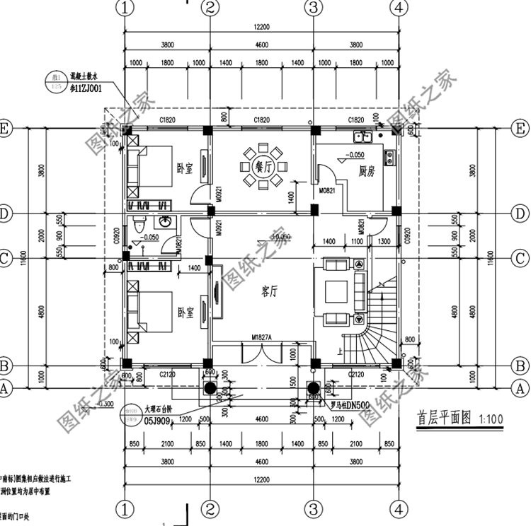
相信農村很多朋友都會在自己的結婚前把家里的房子建好,這樣讓兩個人在將來至少有一個遮風擋雨的保障。今天就給大家推薦三款鄉村三層別墅設計效果圖,戶型美觀實用造價低,二三十萬就能建一棟,完全可以滿足將來全家老小的居住需求,就算偶爾有客人來訪,也可以妥善安置。 方案一:農村三層別墅設計圖,占地140平米左右,客廳中空設計圖紙介紹:這款三層樓房占地140平米左右,客廳中空設計,外觀大氣,非常的漂亮,很值得一建。 占地面積:12.2m*11.6m,一層占地140平方米左右; 建筑層高:三層; 建筑高度:12.5米(含屋頂); 設計功能: 一 層:客廳、廚房、餐廳、臥室(帶衛生間)、臥室; 二 層:客廳上空、客廳、臥室x3、衛生間、陽臺; 三 層:臥室x2、衛生間、活動區、儲藏間、大露臺、陽臺; ![]() ![]() ![]() ![]() 方案二:農村三層自建房設計圖,歐式外觀,戶型高端大氣圖紙介紹:本戶型占地168平米,歐式風格,外觀高端大氣,美觀時尚,比較實用的經濟適用型農村別墅,面積不大,主體造價36萬左右,室內功能齊全,空間合理利用,屋頂的露臺,晾曬休閑觀景,是農村生活最享受的空間 占地面積:14m*11.76m,168平方米左右; 建筑層高:三層; 建筑高度:13.66米(含屋頂); 設計功能: 一層戶型:堂屋、客廳、餐廳、廚房、臥室(帶衛生間)、臥室、衛生間; 二層戶型:客廳上空、起居室、親子套房(可以做衣帽間)、臥室x3、衛生間x2、陽臺; 三層戶型:親子套房(可以做衣帽間)、休閑娛樂區、臥室x2、衛生間x2、露臺涼亭; ![]() ![]() ![]() ![]() 方案三:農村三層自建別墅設計圖,占地164平米,南北方都能建的好戶型圖紙介紹:這款三層別墅占地164平米,歐式外觀,端莊明朗。沉穩大氣的棕色外立面點綴精致外墻浮雕,在農村清淡樸素的鄉村背景中脫穎而出,室內布局科學合理,同時兼顧鄉村傳統居住需求 占地面積:12.82m*12.9m,164平方米左右; 建筑層高:三層; 建筑高度:13.50米(含屋頂); 設計功能: 一層戶型:客廳、廚房、餐廳、棋牌室、洗衣房、臥室(帶衛生間)x2、衛生間; 二層戶型:客廳、臥室x3、臥室(帶衛生間)x2、陽臺; 三層戶型:健身區、臥室x3、臥室(帶衛生間)、衛生間、露臺; ![]() ![]() ![]() ![]() 喜歡這三款戶型的朋友記得收藏這三款,不然就要錯過啦。
圖紙之家-專注農村別墅/自建房設計18年,集合國內200余位經驗豐富的設計師,被評為口碑最好的農村建筑設計公司! |

新農村共用堂屋和樓梯的雙拼別墅設計圖紙,戶型布局空間利用率
占地:207平方米左右
新款三層農村自建別墅設計圖,中式風復式客廳
占地:158.96平方米
2026年經典新中式三層別墅設計圖紙,新款自建房戶型圖
占地:158.19平方米
現代二層農村別墅全套設計圖,大旋轉露臺+超大中空客廳
占地:133平方米
農村18萬元二層小樓圖,占地120平面,戶型緊湊合理
占地:120平方米
農村三層帶地下室住宅設計圖及圖片,房內設計了兩個套間
占地:210平方米
一層平房小面積雙拼房屋住宅設計圖,造價低,面積適中
占地:245.7平方米
歐式豪華三層別墅設計圖,占地面積170平米,高端大氣帶露臺
占地:170平方米
人字坡紅磚一層別墅設計圖,簡約低調超實用,這樣的房子人人能
占地:136.51平方米
農村四層樓房設計圖及外觀效果圖,造價60萬左右
占地:163.84平方米
120平方米農村經典二層房屋設計圖紙,造型精致好看
占地:121平方米
新中式農村自建三層別墅房屋施工,12x10米簡潔雅致
占地:121.77平方米
共堂屋雙拼兩層小別墅設計圖,倆兄弟農村自建房首選
占地:198平方米
預算10萬的簡單二層半別墅房屋設計圖,外觀簡單,造價低
占地:90平方米
農村兩層新中式自建房屋設計圖,受歡迎的帶小配房戶型
占地:多戶型可選
農村兩層帶地下室別墅設計圖,還帶庭院規劃,適合農村建
占地:144.5平方米
鄉村二層半別墅圖紙設計,歐式風格、錯落有致,150平左右
占地:149.76
戶型簡單實用的三層農村房屋設計圖紙,復式結構,大面積開窗,
占地:170平方米
經典農村二層小別墅設計圖紙帶露臺(含外觀效果圖)
占地:110平方米
10套農村經典二層樓房設計圖紙,多戶型,多尺寸,總有一款適合
占地:多種
推薦:10套新農村自建房設計圖,2026年最新設計
閱讀次數:4825737次
100套鄉村別墅圖片大全,2026年最新設計
閱讀次數:2492203次
6款農村蓋一層平房的設計圖,10萬元就能建起來
閱讀次數:1852637次
這11個一層農村自建房別墅火爆了朋友圈!我最喜歡戶型十!你呢
閱讀次數:750268次
農村6萬元建一層小別墅圖,你敢相信嗎
閱讀次數:567686次
農村5萬塊就能自建房,6套普通房子設計圖分享,你沒看錯!
閱讀次數:419410次
8套農村漂亮三間平房圖片,非常適合在農村修建!
閱讀次數:411197次
農村自建房化糞池怎么做?附方案及施工過程
閱讀次數:391783次
農村一層三間平房設計圖,告別土氣養老房,讓人忍不住點贊
閱讀次數:350581次
新農村二層樓房圖片造價12萬,挑一套回家建房吧!
閱讀次數:349126次
