
|
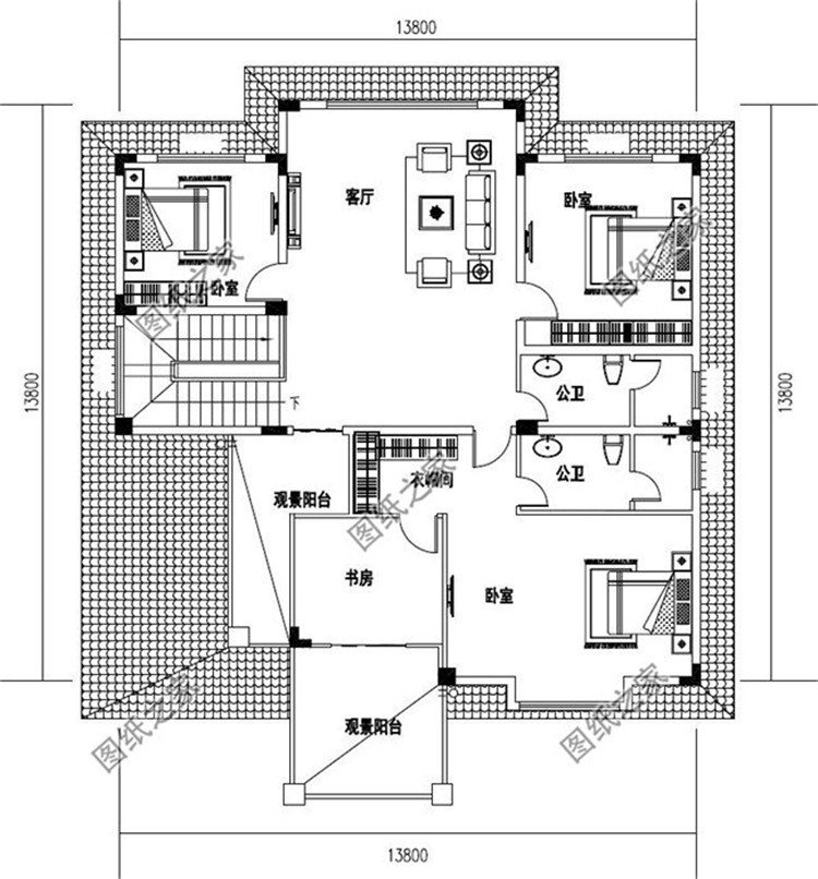
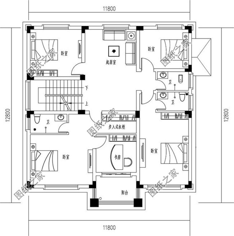
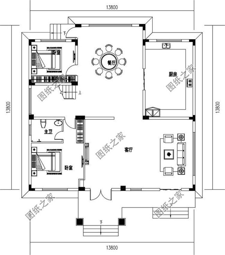
隨著現代經濟的發展,很多農民朋友對自家的自建房也越來越重視,同時城市房屋價格也在不斷的攀升,很多在城市里生活的人在想方設法自己在城市的周邊建房,對于有此需求的人來說都是人生大事,一方面必須要控制自己的成本,另一方面畢竟是自己要住幾十年的房子,不能馬虎。今天分享三款簡單二層最新戶型別墅設計圖,精致漂亮,簡單易建! 第一款:農村二層別墅設計圖,占地140平米左右,外觀清新別致圖紙介紹:這款二層別墅占地140平方米左右,外觀清新別致,別墅為現代簡約風格,外觀線條流暢而又別致,冷色調的配色經典、沉穩,室內裝修可以采用暖色調,布置出來,溫馨又有活力,設計合理人性化,空間規劃合理開闊,功能齊全,溫馨舒適,是家庭的必備選擇 占地面積:11.8m*12.8m,140平方米左右; 建筑層高:二層; 建筑高度:9.59米(含屋頂); 設計功能: 一層戶型:門廳、玄關、客廳、娛樂室、廚房、餐廳、儲藏室、臥室(帶衛生間)、衛生間; 二層戶型:起居室、臥室(帶衛生間)、臥室(帶衣帽間書房衛生間)、臥室x2、衛生間、陽臺; ![]() ![]() ![]() ![]() 第二款:農村二層別墅設計圖,占地180平米左右,外觀漂亮大氣圖紙介紹:本戶型占地180平方米左右,外觀溫馨大氣,戶型美觀造價低,室外的大露臺可以種葡萄,乘涼,甚至晾曬糧食。這套農村二層自建別墅,戶型方正風水好,模樣氣派有面子,建造成本不太高,居住生活很舒適。 占地面積:16.0m*13.0m,180平方米左右; 建筑層高:二層; 建筑高度:9.59米(含屋頂); 設計功能: 一層戶型:客廳、餐廳、廚房、衛生間、主臥(帶衛生間,衣帽間)、儲藏間; 二層戶型:客廳、主臥(帶衛生間,衣帽間)、臥室x4、衛生間、陽臺、露臺; ![]() ![]() ![]() ![]() 第三款:農村二層別墅設計圖,占地185平米左右,帶大套間設計圖紙介紹:本戶型占地185平米左右,帶大套間設計,戶型簡單實用,坡屋頂設計,外觀簡單時尚,簡單的外墻配色裝飾,沒有過多修飾,整體給人一種非常樸實的感覺,結構設計高低錯落,層次分明,越看越覺得簡單中透露著大氣 占地面積:13.8m*13.8m,185平方米左右; 建筑層高:二層; 建筑高度:9.19米(含屋頂); 設計功能: 一層戶型:客廳、廚房、餐廳、臥室(帶衛生間)、臥室; 二層戶型:客廳、臥室(帶衣帽間書房衛生間)、臥室x2、衛生間、觀景陽臺; ![]() ![]() ![]() ![]() 喜歡這三款戶型的朋友可以收藏,等到建房的時候參考。
圖紙之家-專注農村別墅/自建房設計18年,集合國內200余位經驗豐富的設計師,被評為口碑最好的農村建筑設計公司! |

豪華別墅設計圖紙(含效果圖),三層歐式別墅方案精選
占地:117平方米
時尚現代的二層農村別墅設計圖,年輕人建房的不二之選
占地:131.76平方米
大氣的美式三層別墅設計圖,外觀效果圖氣派、美觀
占地:148平方米
好看又簡單的二層樓房設計圖紙,戶型還實用
占地:150平方米
新款農村四層復式別墅設計圖紙及效果圖,外立面清新別致
占地:207平方米
歐式小型二層別墅效果圖片,帶全套Cad別墅設計圖紙
占地:120平方米
新農村兄弟合建三層雙拼房屋設計方案圖,開間18米有全套圖紙
占地:237.21平方米
鄉村兄弟小戶型雙拼一層房屋設計圖,雙拼別墅格局精煉,實用性
占地:160平方米
農村二層樓簡單大氣的樓房設計圖紙,帶車庫,帶露臺
占地:150平方米
三層新農村住宅設計圖及效果圖,三層樓房設計圖展示
占地:140平方米
造價12萬一層簡單自建房設計戶型圖,占地面積140平方米左右
占地:137.76平方米
經典美式二層小別墅設計圖,回鄉建房不可不看的經典之作
占地:109.33平方米
面寬10米左右的三層農村別墅設計案例,低調又奢華
占地:120平方米
帶車庫二層農村豪華別墅設計圖,主體25萬左右
占地:170平方米左右
別致漂亮二層別墅設計圖紙,占地160平米左右,精致的外觀,讓人
占地:160平方米
三層復式別墅設計圖紙(含效果圖),復式住宅設計圖精選
占地:147.7平方米
10×12米三層別墅戶型,挑空大客廳設計,圈粉無數的爆款方案
占地:120平方米
110平方米新農村三層房屋設計圖紙,含效果圖,帶車庫
占地:113平方米
三層樓房設計圖紙含效果圖,外觀造型高低錯落,別致大方
占地:152.4平方米
新農村復試兩層半樓房設計圖,帶大露臺,簡單經濟實用大氣
占地:190平方米
推薦:10套新農村自建房設計圖,2026年最新設計
閱讀次數:4825737次
100套鄉村別墅圖片大全,2026年最新設計
閱讀次數:2492203次
6款農村蓋一層平房的設計圖,10萬元就能建起來
閱讀次數:1852637次
這11個一層農村自建房別墅火爆了朋友圈!我最喜歡戶型十!你呢
閱讀次數:750268次
農村6萬元建一層小別墅圖,你敢相信嗎
閱讀次數:567686次
農村5萬塊就能自建房,6套普通房子設計圖分享,你沒看錯!
閱讀次數:419410次
8套農村漂亮三間平房圖片,非常適合在農村修建!
閱讀次數:411197次
農村自建房化糞池怎么做?附方案及施工過程
閱讀次數:391783次
農村一層三間平房設計圖,告別土氣養老房,讓人忍不住點贊
閱讀次數:350581次
新農村二層樓房圖片造價12萬,挑一套回家建房吧!
閱讀次數:349126次
