
|
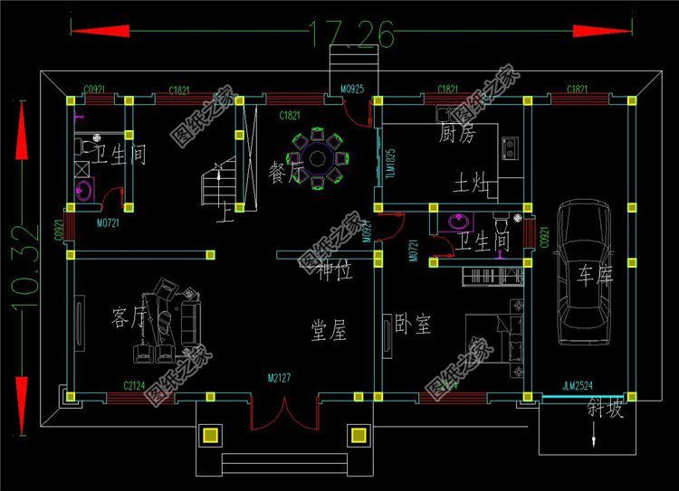
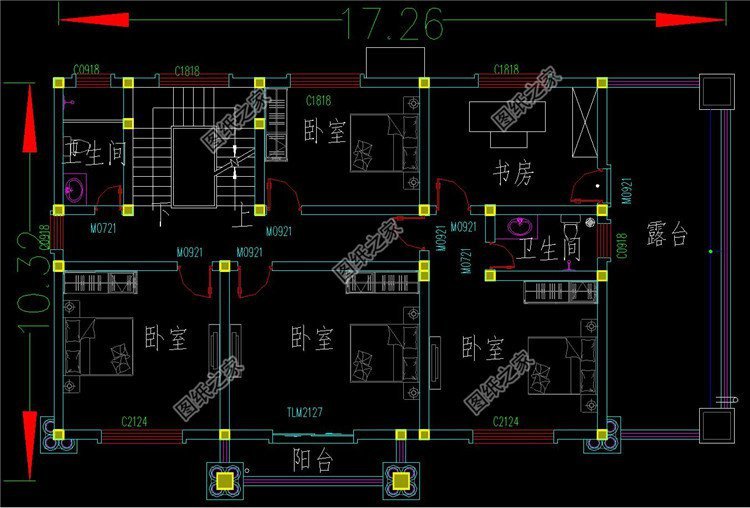
現在農村的家家戶戶,車子也是必不可少的了。在城里的車位緊缺,不方便停車,所以隨著回農村自建房的人越來越多,大多數的想法也慢慢有所改觀,現在城里車子放不下,那回到農村來,這車子總得好好養吧,所以在農村建個車庫,則是非常有必要的了。 今天小編給大家帶來三款帶車庫的三層別墅戶型,經典時尚,外觀大方利落,喜歡哪款可以評論留言喔! 第一款:豪華歐式三層別墅設計圖以及戶型圖,多露臺設計![]() 帶車庫的三層別墅房屋方案設計圖紙,氣派有檔次,帶堂屋的戶型全套施工圖,農村生活太香!外觀造型簡潔大方,色彩明快,采用歐式風格一貫的精致線條,外墻乳白色真石漆和深褐色面磚搭配修飾,羅馬柱造型變幻,豪華氣派,大面積的開窗設計,讓別墅美觀的同時,居住舒適度也毋庸置疑,加上紅色的坡屋頂和屋檐,別墅頓顯生動活力。功能分區合理,房間尺度設計適宜,采光通風良好,富有時代氣息。 占地面積:17.26m*10.32m,163.8平方米左右; 建筑層高:三層; 建筑高度:12.831米(含屋頂); 功能: 一層戶型:堂屋、神位、客廳、餐廳、廚房、臥室(帶衛生間)、衛生間、車庫; 二層戶型:書房、臥室x3、臥室(帶衛生間)、衛生間、陽臺、露臺; 三層戶型:健身房、臥室、臥室(帶衛生間)、衛生間、陽臺、露臺x2 ![]() ![]() ![]() 第二款:現代高端三層別墅設計圖以及戶型圖![]() 面寬22米的高端三層自建房別墅設計圖,外觀效果圖豪華大氣,還帶健身房,造型精致,色彩搭配清新高貴,看起來就非常精致典雅。外墻主體以黃色外墻真石漆裝飾,外墻磚點綴,屋頂是藍色波形瓦,高貴典雅,一看就是大戶人家。一層廚房餐廳相連,干凈衛生;娛樂室休閑娛樂品茶賞景,儲物間放置雜物,節省空間;二層主次分明;書房,辦公看書兩不誤;三層大露臺滿足晾曬需求,可供家人交流感情。 占地面積:22m*13.5m,222.47平方米 建筑高度:12.752米(含屋頂); 設計功能: 一層戶型:前廳、客廳、餐廳、廚房、棋牌室、臥室(帶衛生間衣帽間)、臥室、衛生間、車庫、儲物間; 二層戶型:客廳上空、茶廳、臥室(帶衛生間起居室)、臥室(帶衛生間衣帽間書房)、臥室x2、衛生間、陽臺; 三層戶型:健身房、臥室x2、書房、衛生間、露臺 ![]() ![]() ![]() 第三款:簡歐式現代三層別墅設計圖以及戶型圖,復式旋轉樓梯設計![]() 帶地下車庫的農村三層別墅設計圖,占地160平復式戶型旋轉樓梯,這么有意思的設計,農村自建房首選!別墅的占地面積是160平米左右,大小正好,不大不小建出來的別墅非常的養眼。別墅的外墻采用的是黃色外墻磚,搭配橘紅色的屋面瓦,兩種裝飾手法結合實用,使別墅非常的獨特有味。多出陽臺的設計能很好提高別墅的實用性。 占地面積:12.5m*13.7m,159.03平方米左右; 建筑層高:三層; 建筑高度:13.955米(含屋頂); 功能: 地下戶型:地下車庫; 一層戶型:客廳、餐廳、廚房、臥室(帶衛生間)、書房、衛生間; 二層戶型:客廳上空、臥室(帶衛生間)X2、臥室、衛生間、陽臺; 三層戶型:娛樂區、臥室(帶衛生間)X2、衛生間、露臺 ![]() ![]() ![]() ![]() 以上就是小編推薦的農村帶車庫的三層別墅外觀圖以及戶型圖,有沒有喜歡的?評論告訴我哦!
圖紙之家-專注農村別墅/自建房設計18年,集合國內200余位經驗豐富的設計師,被評為口碑最好的農村建筑設計公司! |

小平米四層自建房屋設計圖紙,戶型簡單實用,占地80平方米
占地:80平方米
100平方米二層中式小別墅設計圖紙級效果圖片
占地:99平方米
簡單平房農村自建一層別墅設計圖,時尚大氣,造價經濟
占地:166平方米
新款中式二層四合院住宅設計圖,農村自建帶露臺設計
占地:223平方米
大氣豪華四層別墅設計圖紙,占地180平米左右
占地:180平方米
130平氣派美觀的二層別墅房屋設計圖,含效果圖
占地:130平方米
被包工頭夸爆的二層別墅戶型!建好未來幾年必火
占地:189.98平方米
占地百平三層歐式別墅設計圖,回到家鄉建一棟,大氣美觀有內涵
占地:99.94平方米
2026新款農村15萬元二層小樓圖,占地90平米左右
占地:多種戶型
時尚大氣的三層現代風別墅設計圖,露臺+挑空客廳
占地:321平方米
二層農村別墅新風尚,簡約實用,性價比高,美麗又實惠
占地:126平方米
時尚四開間二層農村別墅,經典大氣,引領建房新潮流!
占地:159.6平方米
二層樓房設計圖,占地120平米左右,符合現代農村的建房政策
占地:120平方米
160平方米現代新農村四合院兩層別墅施工圖紙及效果圖
占地:157平方米
獨棟小別墅設計圖,造價30萬左右的獨棟小別墅設計推薦
占地:150平方米
面寬13米方正戶型二層小別墅設計方案,南北通透采光好
占地:166.78平方米
農村二間二層房子設計方案圖,造型小巧精致,10米乘12米
占地:110平方米
80平方米新農村三層房屋設計圖,新農村住宅圖紙精選
占地:80平方米
120平方三層房子設計圖,漂亮實用農村自建小別墅設計圖
占地:120平方米
現代四合院別墅設計圖紙,二層戶型,外觀時尚漂亮
占地:287.97平方米
推薦:10套新農村自建房設計圖,2026年最新設計
閱讀次數:4825737次
100套鄉村別墅圖片大全,2026年最新設計
閱讀次數:2492203次
6款農村蓋一層平房的設計圖,10萬元就能建起來
閱讀次數:1852637次
這11個一層農村自建房別墅火爆了朋友圈!我最喜歡戶型十!你呢
閱讀次數:750268次
農村6萬元建一層小別墅圖,你敢相信嗎
閱讀次數:567686次
農村5萬塊就能自建房,6套普通房子設計圖分享,你沒看錯!
閱讀次數:419410次
8套農村漂亮三間平房圖片,非常適合在農村修建!
閱讀次數:411197次
農村自建房化糞池怎么做?附方案及施工過程
閱讀次數:391783次
農村一層三間平房設計圖,告別土氣養老房,讓人忍不住點贊
閱讀次數:350581次
新農村二層樓房圖片造價12萬,挑一套回家建房吧!
閱讀次數:349126次
