
|
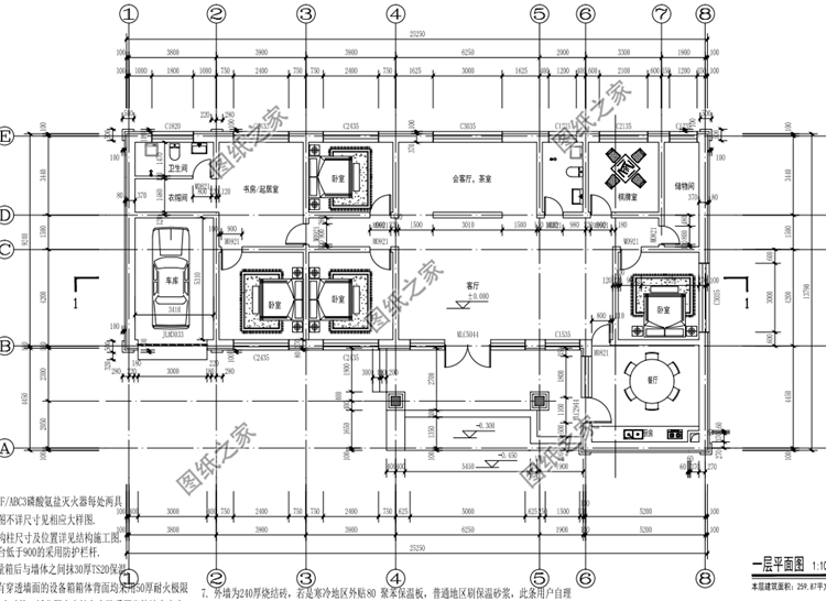
在城里很難實現住上別墅夢,但是我們可以在農村自己建造一棟,找個漂亮的戶型,花點錢,找個好施工師傅,就可以建造并且住上漂亮的農村別墅。 款式一:農村一層平房設計圖,中式三合院設計,帶堂屋設計圖紙介紹:這款一層平房占地173平米左右,仿古中式三合院設計,帶堂屋設計,外觀白墻灰瓦、木制門窗的清雅與內斂,展現出了上下千年的文化傳承,更是一種審美的?回歸。濃濃的山水寫意之美被建筑藝術包裹其中,淡雅的一磚一瓦間,帶給人們無限的遐想。 占地面積:17.4m*15.5m,173平方米左右; 建筑層高:一層; 建筑高度:6.271米(含屋頂); 設計功能: 一層戶型:堂屋、廚房、餐廳、臥室x6、衛生間x2、雜物間; ![]() ![]() 款式二:農村一層自建別墅設計圖,占地260平米,大戶型設計圖紙介紹:這款一層平房占地260平米左右,大戶型設計,多臥室設計,和二層沒有大的區別,所有的活動空間都在一層,還省去了上下樓梯的麻煩。 占地面積:25.2m*13.8m,260平方米左右; 建筑層高:一層; 建筑高度:8.9米(含屋頂); 設計功能:客廳、餐廳、廚房、會客廳、臥室×4、書房、衣帽間、衛生間、棋牌室、儲物間、衛生間、車庫; ![]() ![]() ![]() ![]() 款式三:農村一層別墅設計圖,占地198平米,帶堂屋設計圖紙介紹:這款一層別墅占地198平米,帶堂屋設計,歐式風格,屋頂藍色斜坡更顯別致,老虎窗為點睛之筆。八角窗的設計,讓整個建筑非常時尚又舒服。入戶是堂屋設計,可擺放神位,非常適合農村生活習慣。客廳和餐廳通透明亮,通風采光極佳。4室二廳二衛的格局,基本滿足農村三代同堂居住需求。 占地面積:18.76m*11.66m,198.41平方米左右; 建筑層高:一層; 建筑高度:6.34米(含屋頂); 設計功能: 一層戶型:堂屋、客廳、娛樂區、廚房、餐廳、臥室(帶衣帽間、衛生間)、臥室x3、衛生間x2; ![]() ![]()
不知道大家喜歡哪一款呢?歡迎下方評論留言。
圖紙之家-專注農村別墅/自建房設計18年,集合國內200余位經驗豐富的設計師,被評為口碑最好的農村建筑設計公司! |

農村二層樓房設計圖帶外觀圖片,造價20多萬,13.3x11
占地:146平方米
自建一層三合院別墅圖,雅致鄉村居造價經濟,南北通透更宜居!
占地:176.36平方米
18米寬一層中式小院設計圖,三合院戶型布局寬敞大氣
占地:232.75平方米
新中式帶露臺30萬左右農村三層別墅,客廳中空
占地:110平方米
農村兩開間農村別墅設計圖,典雅大氣,完全不輸大戶型
占地:116.26平方米
最新設計的農村二層自建房屋設計圖,占地180平米,經濟實用
占地:180平米
110平方米新農村實用現代的二層建筑設計圖紙帶外觀圖11X10米
占地:110平方米
農村現代三層建房子設計圖及圖片,平屋頂的設計
占地:150平方米
農村15萬元二層小樓設計圖,造價低,簡潔、好看
占地:90平方米
經典中式三合院設計,一層空間實用大氣,輕松實現理想家園!
占地:160.53平方米
一層農家雙拼自建房設計圖,左右對稱四平八穩
占地:219.05平方米
120平面三層鄉村樓房設計圖及效果圖,歐式風格
占地:120平方米
兄弟兩戶雙拼房屋設計圖及外觀圖片,戶型合理
占地:185平方米
小戶型徽派建筑別墅設計方案大全,三層別墅設計圖推薦
占地:95平方米
農村帶車庫兩層歐式農村別墅設計圖紙,占地220平方米左右
占地:221平方米
兩層半30萬農村自建房別墅設計圖紙,客廳挑空,帶大露臺
占地:130平方米
120平農村三層房屋設計圖,含外觀圖片
占地:120平方米
兄弟雙拼別墅設計戶型圖及設計方案圖,帶外觀效果圖,外觀好看
占地:185平方米(單棟)
簡單農村二層自建房子設計圖,主體18萬就能建好,太心動了!
占地:124.53
預算20萬左右三層別墅設計圖紙,新農村自建房推薦
占地:118平方米
推薦:10套新農村自建房設計圖,2026年最新設計
閱讀次數:4825737次
100套鄉村別墅圖片大全,2026年最新設計
閱讀次數:2492203次
6款農村蓋一層平房的設計圖,10萬元就能建起來
閱讀次數:1852637次
這11個一層農村自建房別墅火爆了朋友圈!我最喜歡戶型十!你呢
閱讀次數:750268次
農村6萬元建一層小別墅圖,你敢相信嗎
閱讀次數:567686次
農村5萬塊就能自建房,6套普通房子設計圖分享,你沒看錯!
閱讀次數:419410次
8套農村漂亮三間平房圖片,非常適合在農村修建!
閱讀次數:411197次
農村自建房化糞池怎么做?附方案及施工過程
閱讀次數:391783次
農村一層三間平房設計圖,告別土氣養老房,讓人忍不住點贊
閱讀次數:350581次
新農村二層樓房圖片造價12萬,挑一套回家建房吧!
閱讀次數:349126次
