
|
孩提時代的課堂上就有一篇文章“鄉愁”當時還不懂,現在隨著年齡的增長滿了懂得其中的含義。對家鄉的思念和牽掛仿佛天生就有,鄉村的輪廓和氣息早已深深地印在我們的腦海里。鄉愁不僅僅是我們對故鄉的思念,更是我們對已經逝去的難忘經歷的眷戀,對童年的記憶。 別墅圖一介紹:挑空復式客廳,歐式兩層別墅設計圖紙通過外觀效果圖就能看出這棟別墅的高端大氣,建筑采用新中式的設計理念。擁有大理石般的質感的傳統中式住宅融入了清新春雨般的現代風這種巧妙的組合使得這款別墅清爽自然。高聳的別墅就如山一般穩重大氣,強勢的氣魄站在面前就能感受它與生俱來的魄力。再加上寬敞明亮的落地窗,外觀造型充滿美感于此同時能彰顯戶主品味。適應時代發展的腳步設立車庫的方便停車連接屋內增強了各個區域的連通性。客廳與餐廳相連沒有隔斷凸顯空間開闊沒有壓抑感。二樓的露臺,除了能晾曬衣物外還可以小憩納涼十分愜意! 占地面積:19m*14.8m,236.09平方米左右; 建筑層高:二層; 建筑高度:10.6米(含屋頂);
別墅效果圖
一層戶型圖
二層戶型圖 設計功能: 一層戶型:客廳、廚房、餐廳、車庫、臥室(帶衣帽間)、臥室x2、衛生間; 二層戶型:客廳上空、茶座、書房、臥室x2、臥室(帶衣帽間)、衛生間、露臺x2、陽臺 別墅圖二介紹:鄉村帶車庫的二層四間別墅建筑結構設計圖占地約140平,接地氣的設計,屋內合理布局,最大限度打造最完美的家庭住宅。外觀造型典雅清新,整體別墅采用純白色的真石漆加上棕色的文化石的點綴更顯明朗輕快。在閑暇之余回老家走進去的瞬間就能感受到全身心的放松。獨立廚房的設計邊娛樂做飯時油煙飄入屋內,提供無油煙的良好的就餐區域。開放式的車庫出行更加方便舒適、二樓的中間小客廳與陽臺相連相輔相成與陽臺相連形成一個室內娛樂休閑的公共區域。 占地面積:14.76m*10.06m,139.85平方米左右; 建筑層高:二層; 建筑高度:9米(含屋頂);
別墅效果圖 設計功能:
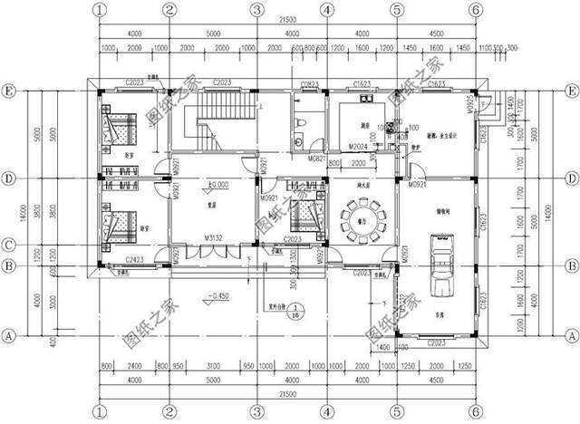
一層戶型圖
二層戶型圖 一層戶型:玄關、客廳、廚房兼柴火房、餐廳、洗衣房、臥室x2、衛生間、車庫; 二層戶型:小客廳、儲藏室、臥室x3、陽臺、露臺; 別墅圖三介紹:帶車庫的二層L型別墅設計圖紙及效果圖整體別墅戶主屬于實用“7”字型戶型,農村建房就選它。整體別墅風格選用這歐式風,豪華大氣。住宅色彩主要采用三種顏色組合米黃色的真石漆與一樓的文化石加上白色線條裝飾的屋檐,彰顯住宅色彩的多樣性。入戶的堂屋也是現在農村屋內不可缺少的配置,紅白喜事都可以在里面舉行。二樓的棋牌室跟娛樂室使得戶主的業余生活更加豐富! 占地面積:21.5m*14m,229.58平方米左右;
正面效果圖
鳥瞰效果圖
側面效果圖
一層戶型圖
二層戶型圖 二層戶型:客廳、茶室、臥室x5、棋牌室、娛樂室、衛生間 以上就是今天帶給大家的全部內容了,感興趣的朋友記得點贊關注呦! 圖紙之家-專注農村別墅/自建房設計18年,集合國內200余位經驗豐富的設計師,被評為口碑最好的農村建筑設計公司! |

帶開放式車庫二層農村自建別墅設計方案,造價僅15萬
占地:89.412平方米
高端大氣三層雙拼自建房設計圖,外觀漂亮,240平左右
占地:240平方米
簡單實用二層自建房子設計圖,主體造價僅17萬
占地:106.387平方米
新中式農村三層房屋效果圖及施工圖,140平方米左右
占地:140平方米
150平農村三層歐式別墅設計圖紙,盡顯豪華與精致,讓人羨慕不已
占地:147.62平方米
160平方米農村二層四合院別墅設計圖及外觀圖片
占地:158平方米
歐式三層別墅設計圖,低調奢華,實用布局,好設計不容錯過
占地:134.1平方米
徽派自建房一層設計圖,七字型設計,獨立餐廚便捷實用
占地:171.65平方米
樓中樓客廳挑高二層別墅設計圖,復式別墅方案推薦
占地:122平方米
新款農村四層復式別墅設計圖紙及效果圖,外立面清新別致
占地:207平方米
新農村三層樓房住宅設計方案,戶型圖、效果圖、全套施工圖
占地:180平方米
三層雙拼別墅效果圖及戶型設計圖,占地150平米
占地:154.8平方米
超現代風格平頂別墅設計圖,外觀時尚,80、90很喜歡
占地:112.18平方米
230平米歐式帶地下室三層自建別墅設計施工圖紙及效果圖
占地:230平米
經濟實用二層樓房設計圖紙,功能布局多,12×11米
占地:130平方米
農村三層樓房設計圖紙及效果圖,經典自建圖紙
占地:201平方米
四層別墅豪宅外觀效果圖及全套施工圖,高端歐式風格
占地:176.97平方米
農村蓋平房設計大全圖,鄉下建房一層戶型圖及效果圖
占地:160平方米
歐式小別墅設計圖紙帶效果圖,二層歐式小別墅設計方案展示
占地:166平方米
時尚二層現代風別墅設計圖紙,平屋頂方案13×10米
占地:98平方米
推薦:10套新農村自建房設計圖,2026年最新設計
閱讀次數:4825737次
100套鄉村別墅圖片大全,2026年最新設計
閱讀次數:2492203次
6款農村蓋一層平房的設計圖,10萬元就能建起來
閱讀次數:1852637次
這11個一層農村自建房別墅火爆了朋友圈!我最喜歡戶型十!你呢
閱讀次數:750268次
農村6萬元建一層小別墅圖,你敢相信嗎
閱讀次數:567686次
農村5萬塊就能自建房,6套普通房子設計圖分享,你沒看錯!
閱讀次數:419410次
8套農村漂亮三間平房圖片,非常適合在農村修建!
閱讀次數:411197次
農村自建房化糞池怎么做?附方案及施工過程
閱讀次數:391783次
農村一層三間平房設計圖,告別土氣養老房,讓人忍不住點贊
閱讀次數:350581次
新農村二層樓房圖片造價12萬,挑一套回家建房吧!
閱讀次數:349126次
