
|
隨著時代快速發展和科學技術的不斷進步,世界上的事物正在悄然發生變化,變化比以前簡單多了。就拿當下比較火熱的農村自建住房為例,幾年前歐洲建筑風格成為主流,直到現在也開始慢慢下降,人們開始追求簡單實用的住房作為住房首選不使用豪華繁瑣的裝飾,整體更注重實用強大的功能,線條光滑簡單,色彩柔和舒適,更像是為別墅業主創造一個簡單但不簡單的生活環境。本期小邊將介紹一個小家庭簡單的二層別墅,占地面積不到100平方米,適合家庭宅基地面積小的家庭建設,感興趣的朋友和我一起看看! 圖紙介紹:農村二層別墅適合小戶面積建造整體別墅采用當前農村建筑風格的黑馬,現代簡約風格。整個房子都透露出簡單的時代風格,在外觀造型上沒有做太多的裝飾,保留了相對簡單實用的構造。左側大面積弧形落地窗,同時提高了房子的檔次,也可以使房子的照明和透明效果更好。支撐大廳的方柱搭配花瓶圍欄略帶歐式風格,非常簡單美觀。外墻主體采用兩種簡單配色白色與黃色搭配灰色和黑色屋頂,整個別墅的顏色搭配完美,雖然沒有使用太亮的顏色,但通過簡單的顏色搭配足以襯托房子的紋理,另一方面也表達了房子的主題,簡單美麗! 占地面積:10米x10.3米 99平方米左右 建筑面積:99平方米左右 建筑層高:2層
正面效果圖
側面效果圖
鳥瞰效果圖 設計功能:
一層平面圖 一層戶型圖:客廳、儲藏間、公衛、餐廳、臥室; 進入屋內,便是客廳寬敞的區域配上溫暖舒適的沙發能卸去你一天的疲憊。左側為父母房與衛生間相鄰使得生活起居十分便捷。在農村廚房的設計大多是獨立設計,所以將空出來的空間改為儲藏間方便儲放物品等,增強屋內的空間利用率!
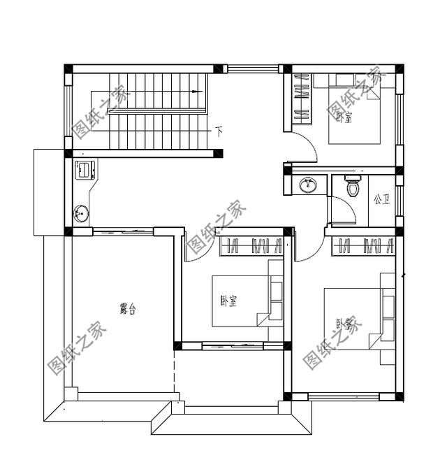
二層平面圖 二層戶型圖:臥室x3、露臺、公衛x2 二樓以生活休息為主要功能,設有三間臥室,滿足一般的農村家庭的居住需求,露臺的設立面積適中,為戶主提供了更多的選擇性! 圖紙之家-專注農村別墅/自建房設計18年,集合國內200余位經驗豐富的設計師,被評為口碑最好的農村建筑設計公司! |

中式兄弟雙拼別墅設計圖紙,類似合院造型,美爆了
占地:221.9平方米
經濟實用二層復式樓房設計圖 ,占地150平方米,造價25萬左右
占地:150平方米
230平方米豪華歐式二層別墅CAD設計圖紙帶外觀效果圖,21.6×15米
占地:236平方米
占地180平方米二層鄉村小洋樓設計戶型圖及圖紙,外觀華麗
占地:180平方米
簡歐風格三層別墅設計圖,外觀看起來很高端、上檔次
占地:139平方米
新農村自建三層復式結構房屋別墅設計圖紙及效果圖
占地:138平方米
新農村自建20萬二層小樓外觀圖及戶型圖,簡單大方,漂亮接地氣
占地:130平方米
一層農村自建房設計圖,造型美觀大氣,占地150平
占地:153.415平方米
造價65萬左右的三層歐式別墅房屋設計施工CAD圖紙及效果圖
占地:178平方米
90平方米新農村住宅設計二層小別墅設計圖紙11x9米
占地:90平方米
11×10米農村二層別墅圖,百平占地經典實用舒適大氣
占地:103.47平方米
占地120平米清新脫俗簡單二層別墅設計方案,含效果圖
占地:119.01平方米
高端大氣三層雙拼自建房設計圖,外觀漂亮,240平左右
占地:240平方米
農村2026新式三間二層樓房,12×11.6米,戶型經典,造價實惠
占地:120平方米
簡易農村別墅房子設計圖,好看實惠,施工也簡單
占地:200平方米
時尚大方的農村二層自建房屋設計圖紙,占地120平米左右
占地:120平米
農村五開間大平層設計圖,主體15萬就能建。
占地:182.43平方米
14米乘10米農村二層別墅新款,外觀對稱設計,經久耐看!
占地:140平方米
農村自建二層半樓房效果圖,美觀大氣布局合理,很適合農村人自
占地:160.11平方米
面寬不到8米的農村二層半別墅建筑圖紙及效果圖
占地:96平方米左右
推薦:10套新農村自建房設計圖,2026年最新設計
閱讀次數:4825737次
100套鄉村別墅圖片大全,2026年最新設計
閱讀次數:2492203次
6款農村蓋一層平房的設計圖,10萬元就能建起來
閱讀次數:1852637次
這11個一層農村自建房別墅火爆了朋友圈!我最喜歡戶型十!你呢
閱讀次數:750268次
農村6萬元建一層小別墅圖,你敢相信嗎
閱讀次數:567686次
農村5萬塊就能自建房,6套普通房子設計圖分享,你沒看錯!
閱讀次數:419410次
8套農村漂亮三間平房圖片,非常適合在農村修建!
閱讀次數:411197次
農村自建房化糞池怎么做?附方案及施工過程
閱讀次數:391783次
農村一層三間平房設計圖,告別土氣養老房,讓人忍不住點贊
閱讀次數:350581次
新農村二層樓房圖片造價12萬,挑一套回家建房吧!
閱讀次數:349126次
