
|
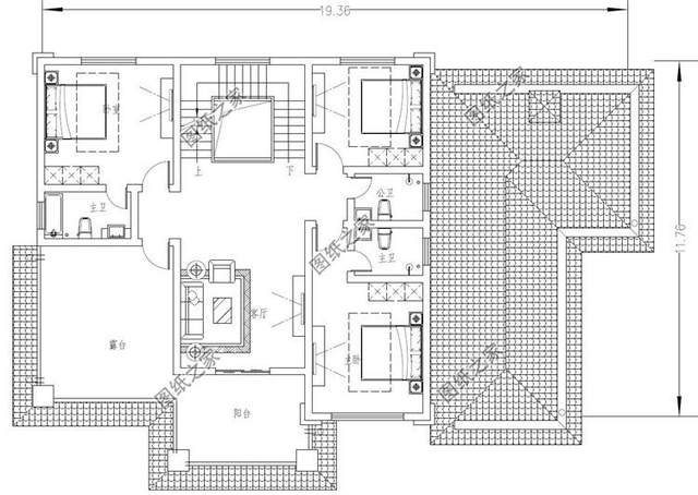
新中式的別墅設計在農村建房中也是比較常見的設計風格,更多的人會將新中式作為自家建房的首選。可以看出這種建房風格是有多討人喜愛,展現出獨特的中式建筑的魅力的同時也讓人們感受到無法表達的中華傳統文化的博大精深。直到今天,老祖宗留下來的東西一直作為珍寶似的非常重視。本期小編就給大家分享幾款大氣的新中式別墅設計,從遠處觀猶如古代宮殿般恢弘氣勢綿延開來,感興趣的朋友們同我一起來看看吧! 別墅圖一展示:占地面積:19.36m*11.76m,202.99平方米左右; 建筑層高:二層; 建筑高度:9.425米(含屋頂);
別墅效果圖 設計功能:
一層戶型圖 一層戶型:客廳、廚房、餐廳、生火房、雜物間、車庫、臥室x2、衛生間;
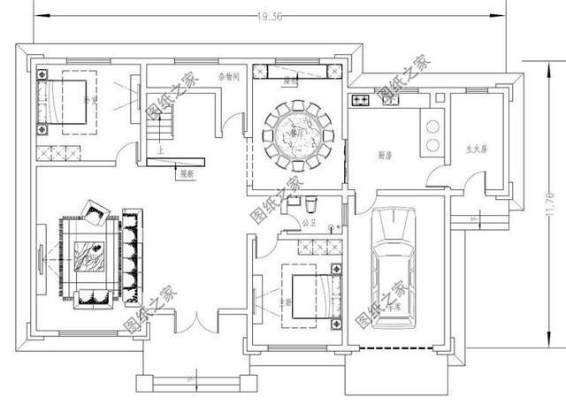
二層戶型圖 二層戶型:客廳、臥室(帶衛生間)x2、臥室、衛生間、陽臺、露臺; 別墅圖二展示:占地面積:18.26m*15.26m,269.83平方米左右; 建筑層高:二層; 建筑高度:11.25米(含屋頂);
別墅效果圖 設計功能:
一層平面圖 一層戶型:堂屋、客廳、廚房、餐廳、書房、臥室(帶衛生間)x2;
二層平面圖 二層戶型:客廳上空、起居室、臥室x4、臥室(帶衛生間)、衛生間、陽臺; 別墅圖三展示:占地面積:10.8m*11.8m,108平方米左右; 建筑層高:二層; 建筑高度:9.67米(含屋頂);
別墅效果圖 設計功能:
一層平面圖 一層戶型:客廳、廚房、餐廳、臥室、衛生間;
二層平面圖 二層戶型:起居室、客廳、臥室x3、衛生間、陽臺; 別墅圖四展示:占地面積:17.6m*13.4m,180平方米左右; 建筑層高:二層; 建筑高度:9.225米(含屋頂);
正面效果圖
側面效果圖
鳥瞰效果圖 設計功能:
一層戶型圖 一層戶型:客廳、餐廳、廚房、土灶房、衛生間、臥室×2、娛樂房、儲藏室;
二層戶型圖 二層戶型:起居室、臥室x4、衛生間、休閑區、陽臺、大露臺; 別墅圖五展示:占地面積:13m*13m,143平方米左右; 建筑層高:二層; 建筑高度:8.684米(含屋頂);
別墅效果圖 設計功能:
一層平面圖 一層戶型:客廳、廚房、餐廳、柴火房、臥室、臥室(帶衛生間)、衛生間;
二層平面圖 二層戶型:起居室、書房、臥室x2、臥室(帶衛生間)、衛生間、露臺; 圖紙之家-專注農村別墅/自建房設計18年,集合國內200余位經驗豐富的設計師,被評為口碑最好的農村建筑設計公司! |

新中式三層別墅,旋轉樓梯+挑空客廳,高級感拉滿
占地:125平方米
平頂新中式三層農村別墅設計圖,最適合鄉村自建占地150平米
占地:150.35平方米
三層別墅40萬左右氣派的外觀效果圖,含全套施工設計圖
占地:161.46平方米
豪華農村帶露臺三層樓房別墅設計圖紙,占地200平方米左右
占地:200平方米
小型中式一層三合院別墅設計圖,小宅基地照樣建合院
占地:119.73平方米
中式復古四層別墅房屋設計圖紙,含外觀效果圖
占地:90平方米
2026年經典新中式三層別墅設計圖紙,新款自建房戶型圖
占地:158.19平方米
復式200平米三層樓房設計圖紙,大露臺還有健身房和書房
占地:200平方米
面寬20米農村自建房設計圖一層設計圖,五開間養老戶型
占地:194平方米
農村25萬別墅款式二層自建房設計圖,外觀簡約大氣
占地:多種戶型
130平方米農村兩層別墅圖紙及效果圖12X11米
占地:133平方米
130平方米新農村三層房屋設計圖紙,外觀簡單大方
占地:130平方米
小戶型經濟型三層雙拼小別墅施工設計圖紙,單戶100平內
占地:150平方米
經典美式風100平米二層小別墅設計方案,鄉村建房首選
占地:100.17平方米
農村自建二層樓房設計圖及效果圖,二層房屋圖推薦
占地:105平方米
經典戶型二層農村小別墅設計圖,造價25萬內
占地:140平方米
170平米自建三層房屋別墅設計圖紙及效果圖
占地:170平米
鄉村高檔四層豪華別墅自建房設計圖,一層不帶餐廳廚房戶型
占地:147平方米
最新農村三層樓房設計圖紙,客廳中空,采用暖黃色為主色
占地:160平方米
農村三層四合院別墅設計圖紙,自建房建這棟面子十足
占地:227.49平方米
推薦:10套新農村自建房設計圖,2026年最新設計
閱讀次數:4825737次
100套鄉村別墅圖片大全,2026年最新設計
閱讀次數:2492203次
6款農村蓋一層平房的設計圖,10萬元就能建起來
閱讀次數:1852637次
這11個一層農村自建房別墅火爆了朋友圈!我最喜歡戶型十!你呢
閱讀次數:750268次
農村6萬元建一層小別墅圖,你敢相信嗎
閱讀次數:567686次
農村5萬塊就能自建房,6套普通房子設計圖分享,你沒看錯!
閱讀次數:419410次
8套農村漂亮三間平房圖片,非常適合在農村修建!
閱讀次數:411197次
農村自建房化糞池怎么做?附方案及施工過程
閱讀次數:391783次
農村一層三間平房設計圖,告別土氣養老房,讓人忍不住點贊
閱讀次數:350581次
新農村二層樓房圖片造價12萬,挑一套回家建房吧!
閱讀次數:349126次
