
|
經典歐式自建別墅一直都是農村建房時大眾選擇最多的建筑風格,主要是因為它那高端大氣的外觀造型十分符合現在人們的審美觀念。現如今每家建造房子時都想要擺脫掉原來農村建房時的落后感,歐式自建別墅是一個不錯的選擇。本期小編就帶來幾款經典歐式自建別墅推薦感興趣的朋友們一起來看一看吧! 別墅圖一展示:設計師在造型上運用了廊柱、雕花、線條等裝飾手法,精細考究。建筑整體以3開間布局,中部的入戶大廳西側設置書房主衛,餐廚空間進行一體化設計,并在廚房的北側增設了次入口,便于業主家出入后院。精致氣派,建在農村不管是自住還是待客都足夠寬敞。 占地面積:11.76m*11.46m,115.2平方米左右; 建筑層高:二層; 建筑高度:9.475米(含屋頂);
別墅效果圖 設計功能:
一層戶型圖 一層戶型:客廳、廚房、餐廳、書房、臥室、衛生間;
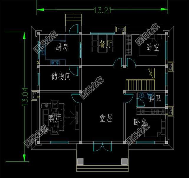
二層戶型圖 二層戶型:臥室x3、衛生間、露臺、陽臺; 別墅圖二展示:本戶型占地158平米左右,帶套間設計,戶型簡單實用,坡屋頂設計,外觀簡單時尚,耐臟的外墻配色裝飾,沒有過多修飾,整體給人一種非常樸實的感覺,對稱設計簡潔明了,越看越覺得簡單中透露著大氣。 占地面積:13.16m*13.04m,158.5平方米; 建筑層高:二層; 建筑高度:10.01米(含屋頂);
別墅效果圖 設計功能:
一層戶型圖 一層戶型:堂屋、客廳、廚房、餐廳、儲藏間、臥室(帶衛生間)、臥室;
二層戶型圖 二層戶型:客廳、臥室(帶衛生間)、茶室、臥室x4、衛生間、陽臺; 別墅圖三展示:二層精美歐式別墅設計圖,不但顏值高,品質還高,建筑整體為歐式風格,立面配色較為淡雅,通過兩段式色彩搭配營造溫馨居住氛圍。 占地面積:12.76m*13.16m,154.17平方米左右;
別墅效果圖
一層平面圖
二層平面圖 二層戶型:客廳、臥室(帶衛生間)、臥室x3、衛生間、陽臺;
圖紙之家-專注農村別墅/自建房設計18年,集合國內200余位經驗豐富的設計師,被評為口碑最好的農村建筑設計公司! |

樓中樓客廳挑高二層別墅設計圖,復式別墅方案推薦
占地:122平方米
2026年新款二層半農村自建小別墅設計圖紙,占地150平方米
占地:150平方米
110平農村二層房屋設計圖,戶型特別接地氣,造價經濟還實用
占地:110.05平方米
二層別墅設計圖紙及效果圖,占地200平米,外觀精致優雅,小有情
占地:200平方米
地中海風格二層別墅設計圖及效果圖,外觀有格調
占地:125平方米
三層獨棟帶露臺房屋設計圖,含外觀圖片大全
占地:110平方米
豪華大氣三層農村房屋設計圖,對稱的主體設計大氣恢宏
占地:240平方米
獨棟兩層歐式別墅設計圖紙(效果圖+建筑施工圖)
占地:125平方米
125平方米新農村三層自建別墅施工設計圖,13x10米
占地:125平方米
預算10萬的簡單二層半別墅房屋設計圖,外觀簡單,造價低
占地:90平方米
20萬左右歐式二層小別墅設計圖,100平米和130兩個戶型
占地:多種戶型
130平米徽式古典風格的三層自建房屋別墅設計圖紙,戶型合極佳,
占地:130平米
200平方農村三層別墅房屋設計圖及效果圖,大戶型精選
占地:200平方米
農村平屋頂三層現代風別墅戶型圖,簡約實用經濟顏值高
占地:111.9平方米
一層四合院別墅,中式庭院寬綽大氣,這樣的合院養老最合適
占地:396平方米
農村三層15萬自建房圖,小戶型別墅設計方案圖
占地:60平方米
130平四間二層小洋樓設計圖,含外觀圖片
占地:130平方米
12x10米帶閣樓的農村一層半別墅設計圖,外觀洋氣
占地:110.54平方米
兄弟三層雙拼房屋設計圖,帶效果圖,戶型好
占地:256平方米
140平方米三層半新農村房屋別墅設計圖,帶車庫
占地:140平方米
推薦:10套新農村自建房設計圖,2026年最新設計
閱讀次數:4825737次
100套鄉村別墅圖片大全,2026年最新設計
閱讀次數:2492203次
6款農村蓋一層平房的設計圖,10萬元就能建起來
閱讀次數:1852637次
這11個一層農村自建房別墅火爆了朋友圈!我最喜歡戶型十!你呢
閱讀次數:750268次
農村6萬元建一層小別墅圖,你敢相信嗎
閱讀次數:567686次
農村5萬塊就能自建房,6套普通房子設計圖分享,你沒看錯!
閱讀次數:419411次
8套農村漂亮三間平房圖片,非常適合在農村修建!
閱讀次數:411197次
農村自建房化糞池怎么做?附方案及施工過程
閱讀次數:391783次
農村一層三間平房設計圖,告別土氣養老房,讓人忍不住點贊
閱讀次數:350581次
新農村二層樓房圖片造價12萬,挑一套回家建房吧!
閱讀次數:349126次
