
|
如今,新農村建房政策越來越嚴,很多地區對建房高度都有限制,對于一些人口較多、宅基地又不大的家庭,建個獨棟別墅設計根本滿足不了自己的需求,對于這種情況,該怎么辦呢?今天“圖紙之家”就通過這套戶型來告訴你一個辦法。
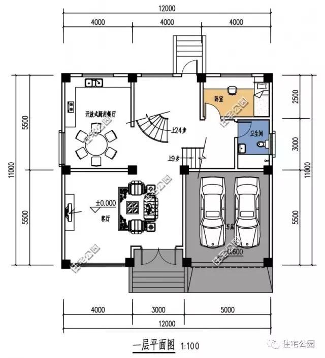
此別墅占地尺寸12.2X11.2米,占地面積137平方米,建筑面積291平方米,總高度11.02米,共設4室 3廳 4衛 1廚 1車庫 1家庭影院 1陽臺 此戶型是一個對稱的造型,給人以平衡、穩定之感。落地窗、格子型的防盜窗、對稱的坡屋頂,使別墅整體顯得洋氣、大方。那么,設計師是怎樣將優先的空間最大化利用的呢?沒錯,那就是夾層的設計。 立面圖:
大家看一下這個南立面的效果圖,在房子的右側是一個封閉式車庫,設計師將車庫設計成下沉式的,這也為上面的夾層爭取了一定的空間。設計者從結構上入手,巧妙地通過改變結構柱、層高等方式,增加利用空間。然后二層在結構柱上稍作調整,與一樓沒有完全對齊,是為了更好的利用二層空間面積進行功能區域的劃分。一個夾層的設計就這樣誕生了,設計師是不是很聰明呢?
平面布局圖:
此別墅戶型方正,布局合理、舒適。一層設有雙車庫、大客廳、開放式廚房餐廳、臥室和衛生間。在車庫的上面,有一個夾層的設計,設計師在這里設計了一個家庭影院,安靜、舒適、節約空間,不影響家人休息。
此戶型是一個旋轉樓梯的設計,從上往下看,造型很是優美。從樓梯上來是一個起居室,起居室的兩側分布著3個臥室,東側的為主臥,由于夾層的設計,地面較高,通過一個臺階進入,是一個套間設計,設有獨立的衛生間和衣帽間,私密性很好。
戶型經濟技術指標:
二層毛坯房工程預算: 此戶型建造靈活,磚混結構框架結構都可以建造,磚混的較為經濟,框架的抗震性好。
圖紙之家-專注農村別墅/自建房設計18年,集合國內200余位經驗豐富的設計師,被評為口碑最好的農村建筑設計公司! |

農村25萬別墅款式二層自建房設計圖,外觀簡約大氣
占地:多種戶型
26萬二層平頂別墅樓設計圖,客廳中空,占地120平米
占地:120平方米
獨棟別墅設計戶型圖帶外觀效果圖,雙向樓梯設計
占地:155平方米
新中式復式三層別墅設計圖紙,最美的新中式別墅
占地:130平方米
帶車庫的一層雙拼別墅設計方案,出入方便保安全,大氣優雅還長
占地:179.7平方米
中式二層對稱別墅設計圖,帶地下室設計,整體造價經濟
占地:171.6平方米
新中式農村50萬三層別墅款式圖,占地面積160平米左右
占地:150平方米
經典中式三合院設計,一層空間實用大氣,輕松實現理想家園!
占地:160.53平方米
2026戶型方正三層農村小別墅設計圖紙(含外觀圖片)
占地:150平方米
兄弟合建中式一層四合院設計圖,古樸雅致代代相傳,永不過時
占地:468.03平方米
舒適大方三層房屋設計圖紙及圖片,占地150平米,布局合理,臥室
占地:150平方米
農村五開間大平層設計圖,主體15萬就能建。
占地:182.43平方米
300平四層別墅房屋設計圖,含外觀效果圖,大面積、多臥室
占地:261平方米
農村二層帶閣樓四間別墅設計圖,外觀美觀,戶型實用
占地:175平方米
徽派自建房一層設計圖,七字型設計,獨立餐廚便捷實用
占地:171.65平方米
簡單實用新農村三層住宅房屋設計圖,時尚大氣,低調
占地:140平方米
陽臺封閉的簡約實用二層別墅設計圖,15x12.8米
占地:165平方米
農村兩層半樓房設計圖,平面功能分區明確,布置合理
占地:180平方米
面寬22米的高端三層自建房別墅設計圖,功能齊全
占地:222.47平方米
經濟實惠一層戶型圖,農村養老房舒適至上,簡約而不失溫馨
占地:147.5平方米
推薦:10套新農村自建房設計圖,2026年最新設計
閱讀次數:4825737次
100套鄉村別墅圖片大全,2026年最新設計
閱讀次數:2492203次
6款農村蓋一層平房的設計圖,10萬元就能建起來
閱讀次數:1852637次
這11個一層農村自建房別墅火爆了朋友圈!我最喜歡戶型十!你呢
閱讀次數:750268次
農村6萬元建一層小別墅圖,你敢相信嗎
閱讀次數:567686次
農村5萬塊就能自建房,6套普通房子設計圖分享,你沒看錯!
閱讀次數:419410次
8套農村漂亮三間平房圖片,非常適合在農村修建!
閱讀次數:411197次
農村自建房化糞池怎么做?附方案及施工過程
閱讀次數:391783次
農村一層三間平房設計圖,告別土氣養老房,讓人忍不住點贊
閱讀次數:350581次
新農村二層樓房圖片造價12萬,挑一套回家建房吧!
閱讀次數:349126次
